
Продається 1-кімнатна квартира, Тиса Renovation
Продається однокімнатна квартира в м Ужгород, вул. С. Мартина 4, Апарт-комплекс Тиса Renovation.
Продаж від представника забудовника без комісії агентству.
Об’єкт зданий в експлуатацію.
Будинок- чотириповерховий, стіни залізобетонні + утеплені 10 см пінопластом, дах-шатровий покритий металопрофілем, є ліфт, парковка та дитячий майданчик.
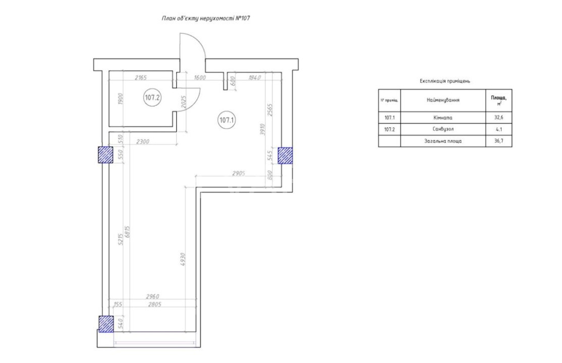
До вашої уваги пропонуємо квартиру площею 36.7 м.кв, яка знаходиться на четвертому поверсі.
Всередині квартири забудовником зроблені такі роботи: встановлені якісні вхідні двері, металопластикові вікна (три скла), чистова стяжка, цегляні перестінки, заведений силовий кабель на 10 кіловат, встановлені всі лічильники (світло, вода). Опалення автономне електричне.
Планування: кухня-студія, просторий санвузол.
Хороша локація: поряд зупинка, садочок, ТЦ Сільверленд, АТБ, ринок Краснодонців.
Хороша інвестиція як для бізнесу так і для власного проживання.
Ціна 725 дол за м.кв.
Тел.: (068)-131-57-88 офіс
Тел.: (050)-131-57-88 Михайло
Тел.: (066)-307-53-43 Христина
Iнші оголошення на сайті variant.in.ua ->>
Обери найкращий варіант – АН “Variant”








