
Продається комерційна нерухомість, ЖК Valencia
Продається комерційна нерухомість в м. Ужгород, вул. Собранецька 115А, ЖК Valencia.
Продаж від представника забудовника без комісії агенству.
Будівництво триває.
Здача в експлуатацію: третій квартал 2026р.
В даному ЖК , забудовник враховує побажання: попередніх своїх клієнтів, нові норми ДБН, сучасний стиль, бомбосховище 200 м.кв, лобі 50 м.кв із цілодобовим освітленням та інтернетом ( резервні акумулятори), подвір’ї огороджене закритого типу та озеленене, зручний паркінг, гаражі, дитячий майданчик з альтанками для відпочинку.
Одним словом буде поєднано стиль, комфорт, зручність в одному ЖК.
Будинок клубного типу:
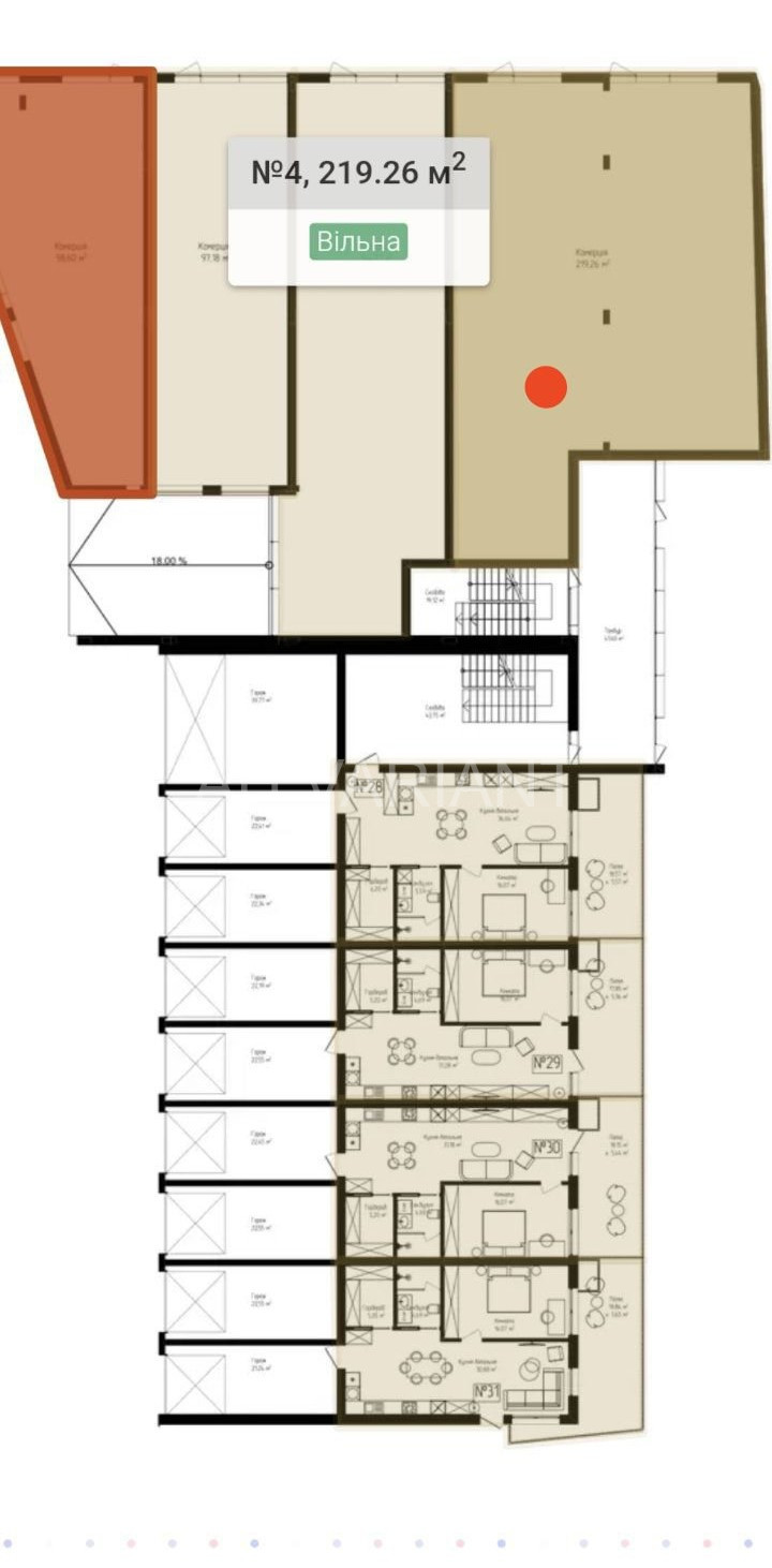
– перший поверх : паркінг, гаражі, комора, комерційна нерухомість;
– другий -четвертий жила нерухомість.
До вашої уваги пропонуємо:
– комерційну нерухомість площею 220 м кв. Приміщення фасадне виходить на центральну дорогу з великими панорамними вітринами. Є два центральні входи, це дає можливість новому власнику при потребі розділити на два приміщення.
Комплектація:
– вікна панорамні- енергозберігаючі ( три скла);
-чистова стяжка ;
– внутрішня штукатурка;
– розведені мокрі точки;
– заведений силовий кабель з потужністю 1 кіл на 1 м.кв, при потребі можна збільшити;
– інтернет кабель;
– встановлені лічильники на воду та світло;
– висота стелі -3.8 мет.
Ціна 2000 Дол м.кв.
Тел.: (068)-131-57-88 офіс
Тел.: (050)-131-57-88 Михайло
Тел.: (066)-307-53-43 Христина
Iнші оголошення на сайті variant.in.ua ->>
Обери найкращий варіант – АН “Variant”














