
Продається однокімнатна квартира, вул. Електрозаводська
Продається однокімнатна квартира від представника забудовника із виглядом на річку та парк по вул. Електрозаводська 45 (район Корятовича), ЖК Спортивний.
Здача в експлуатацію другий квартал 2026 р.
Будинок цегляний монолітно – каркасний, дев’ятиповерховий (1-й поверх комерція та офіси, 2-9 житлові). Буде ліфт, дитячий майданчик, парковка, бомбосховище згідно норм ДБН, лобі біля 50 м.кв з освітленням та інтернетом (резервні акумулятори).
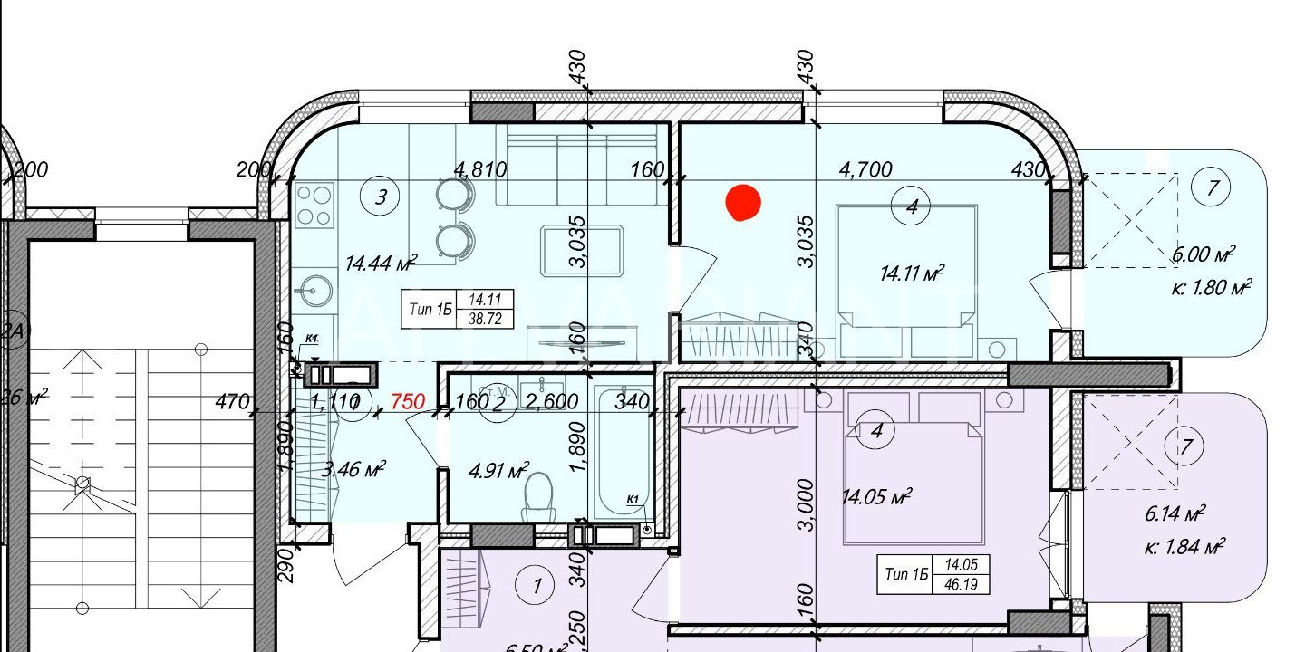
До вашої уваги пропонуємо однокімнатну квартиру площею 38.72 м.кв на третьому поверсі. Зручне та продумане планування.
В квартирі буде зроблено забудовником: чистова стяжка, встановлені міжкімнатні перестінки, стіни поштукатурені, заведено воду та електрику в квартиру без розводки, встановлені лічильники на воду та світло.
Хороша локація та розміщення будинку: парк, річка, спортивний комплекс, басейни, 10 хв пішої ходьби до площі Корятовича.
Добре підходить як для проживання так і для оренди.
Ціна.
1270 дол – 90%
1300 дол – 60%
1330 дол – 30%
Продаж від представника забудовника без комісії агентству.
Код: 33677
Тел.: (068)-131-57-88 ОФІС
Тел.: (050)-131-57-88 Михайло
Тел.: (066)-307-53-43 Христина
Iнші оголошення на сайті variant.in.ua ->>
Обери найкращий варіант – АН “Variant”























