
Продаються котеджі на початку будівництва по вул. Олени Пчілки
Продаються котеджі на початку будівництва по вул. Олени Пчілки, мік. Садовий, м. Ужгород.
Продаж від представника забудовника без комісії агентству.
Будівництво розпочато.
Здача четвертий квартал 2026 р.
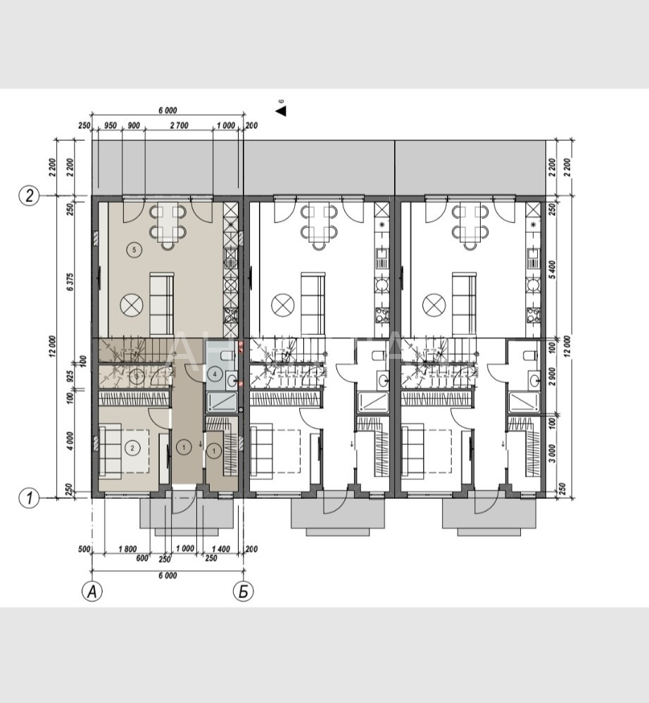
Площа 120 м.кв.
Земельна ділянка 1.5 сот.
– Характеристика будівництва:
– Зовні котеджі будуються з цегли + утеплений 10 пінопластом, дах утеплений-односкатний – покритий фальцевою покрівлею, вікна шестикамерні, якісні вхідні двері.
– Всередені стіни поштукатурені, встановлені перестінки, чорнова стяжка, бетонна сходова клітинка, заведений силовий кабель без розводки, розведені каналізаційні точки.
– по периметру від сусідів буде встановлено паркан, двір викладений бруківкою, ділянка підсипана родючим ґрунтом.
Зручне планування:
– перший поверх: хол, санвузол, комора, кухня-студія з виходом на терасу, спальня, гардероб.
– другий поверх: три окремі кімнати, гардеробна, санвузол, балкон.
Комунікації: світло (три фази-15 кіловат), вода скважина, септик.
Хороша та зручна локація, затишне місце, гарний краєвид. Добре підходить як для проживання так і для оренди.
Інвестиція в проект – це заощадження ваших коштів.
Є можливість розтермінування при внесені 50%.
Також є можливість придбати по державній програмі: є- оселя, є- відновлення.
Ціна 100 тис дол.
Код: 46463
Тел.: (068)-131-57-88 ОФІС
Тел.: (050)-131-57-88 Михайло
Тел.: (066)-307-53-43 Христина
Iнші оголошення на сайті variant.in.ua ->>
Обери найкращий варіант – АН “Variant”











