
Продається котедж, мкр-н БАМ
Продається стильний котедж в стилі хайтек, в м. Ужгород, провулок Тепличний, мік Бам.
Продаж від представника забудовника без комісії агентству.
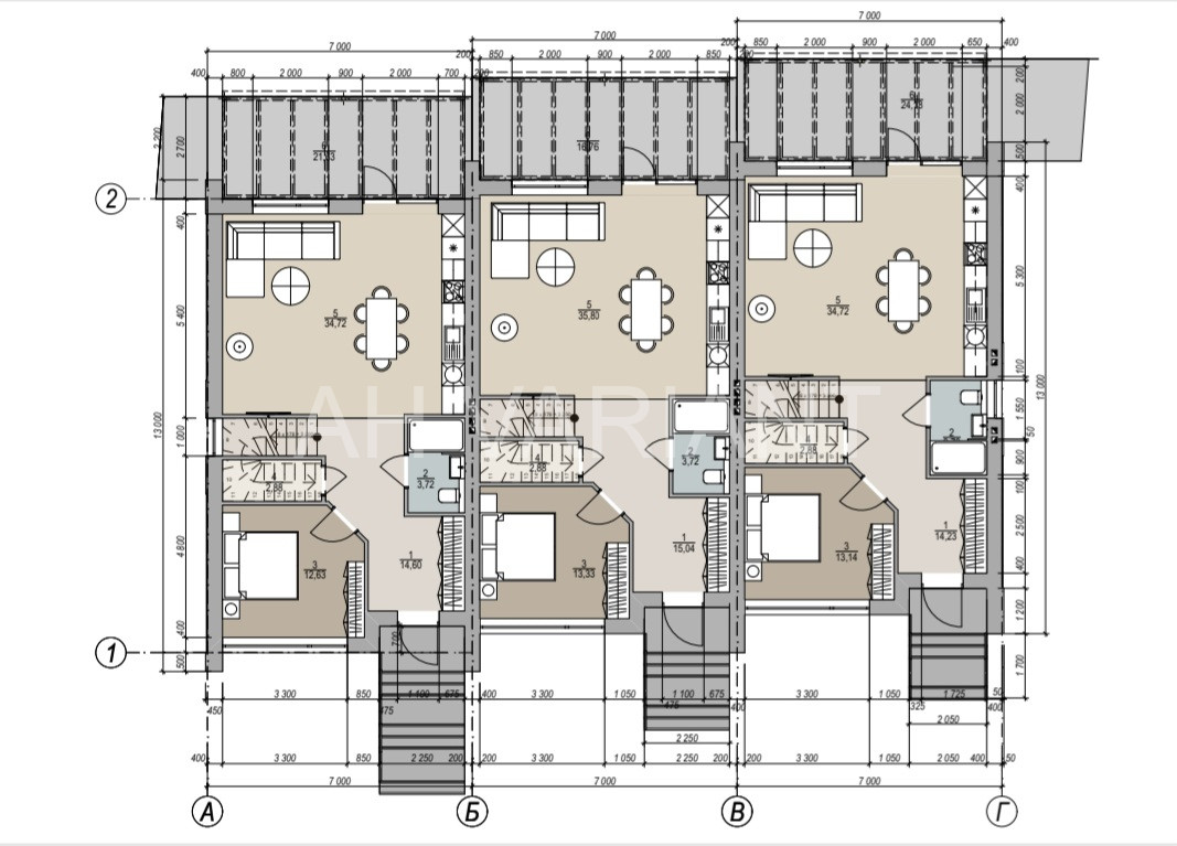
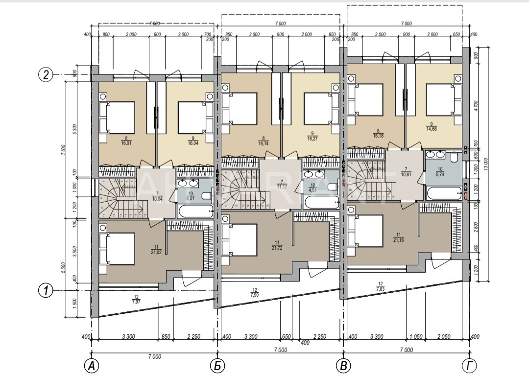
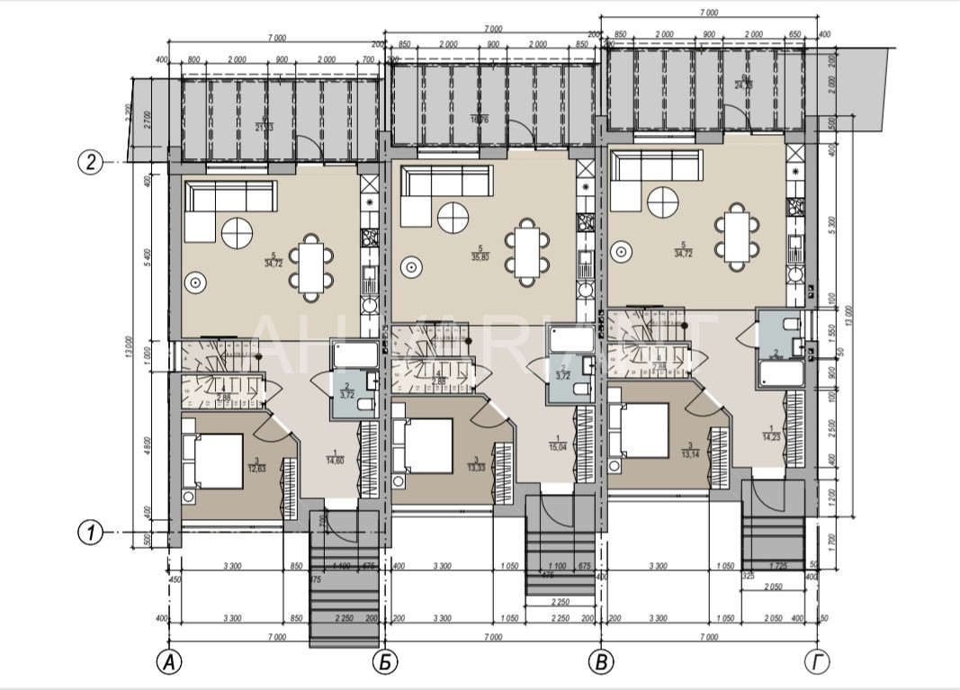
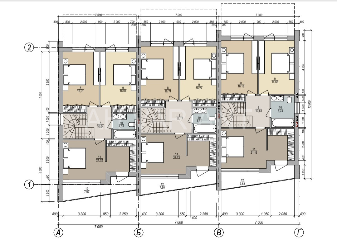
Площа котеджу 162 м². Земельна ділянка 2 сот.
Проводяться завершальні роботи.
Здача об’єкту в експлуатацію перший квартал 2026 р.
ОПИС БУДІВНИЦТВА:
– стіни – цегла 40см;
– перекриття між поверхами – бетонні плити;
– бетонні сходи між поверхами;
– дах односкатний покритий мембраною;
-внутрішні перестінки першого та другого поверху;
– внутрішня штукатурка стін;
– чистова стяжка;
– тепла підлога по цілому котеджу;
– розведена сантехніка;
– розведена електрика;
– стеля утеплений 25 см мінватою;
– простора тераса;
– балкон;
– вікна алюміневі – геолан;
– фасад утеплений 10 см мінватою;
– паркан по периметру будинку;
– фасадний паркан із хвірткою та воротами на автоматиці;
– двір викладений бруківкою та озеленений;
– центральна вода та каналізація;
– електрика три фази 15 кВ;
– газ.
Інші роботи по наповненню обговорюються та оплачуються окремо.
Зручне та продумане планування до дрібниць.
Ідеальне та затишне місце розташування, гарний краєвид вишуканий дизайн та якість будівництва -все це принесе новим власникам задоволення від покупки.
Ціна 160 тис. $.
Можна придбати по державній програмі ( є- оселя, є відновлення).
Є відеоогляд котеджу.
Тел.: (068)-131-57-88 офіс
Тел.: (050)-131-57-88 Михайло
Тел.: (066)-307-53-43 Христина
Iнші оголошення на сайті variant.in.ua ->>
Обери найкращий варіант – АН “Variant”
































