
Продається будинок, мкр-н Садовий
Продається будинок в стилі Американка, в м. Ужгород, мікр. Садовий.
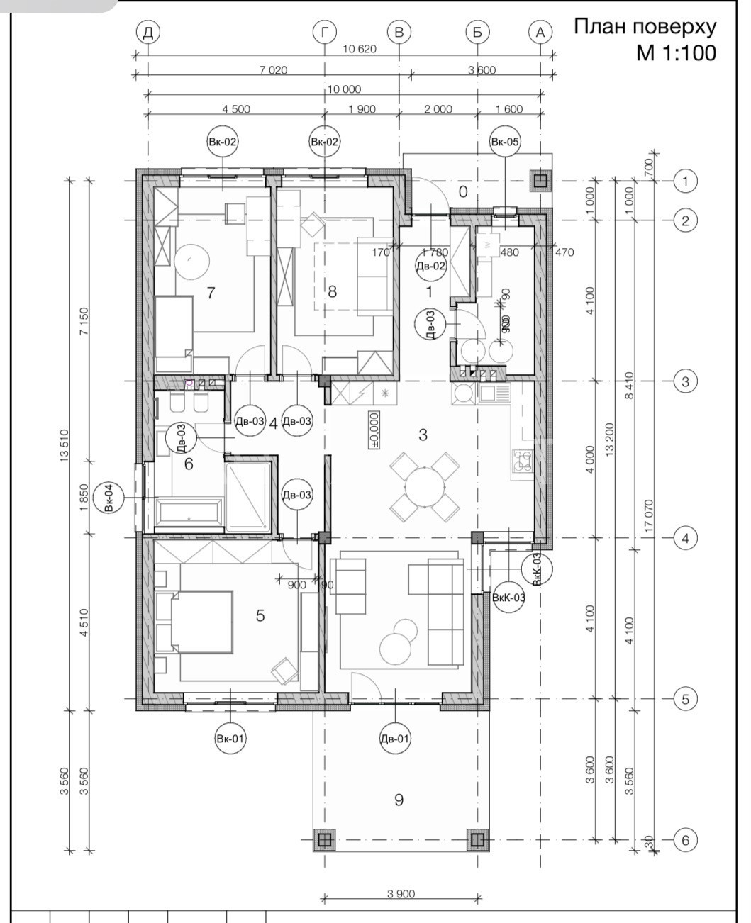
Площа будинку 130 м.кв + 20 м.кв тераса . Земельна ділянка 6.3 сот.
Здача об’єкту – 4 квартал, 2025 р.
Побудований будинок із цегли, стіни додатково утеплені 10 см пінопластом, дах покритий металочерепицею та утеплений 20 см мінеральною ватою, вікна енергозберігаючі- металопластикові, якісні вхідні двері.
Зручне планування: три окремі кімнати, простора кухня-студіо із виходом на терасу, два санвузли та технічне приміщення.
В середені будинку розведена сантехніка, електрика, тепла підлога в ( коридорі, кухні- студіо та санвузлі), чистова стяжка, внутрішні стіни та перегородки поштукатурені і пошпакльовані, встановлений ( електрокотел, бойлер, радіатори).
По периметру ділянки встановлений паркан, фасадний паркан із воротами на автоматиці та каліткою, двір викладений бруківкою та підсипаний родючим грунтом із озелененням.
Комунікації: світло 15 Квт, скважина 35 м, септик з переливом.
Хороша локація та затишне місце.
Переписка мінімальна.
Ціна 115 тис. дол.
Тел.: (068)-131-57-88 офіс
Тел.: (050)-131-57-88 Михайло
Тел.: (066)-307-53-43 Христина
Iнші оголошення на сайті variant.in.ua ->>
Обери найкращий варіант – АН “Variant”





























