
Продається котедж, вул. Петра Угляренка
Продається стильний одноповерховий котедж в м. Ужгород, мік. Садовий, вул. П. Угляренка.
Земельна ділянка 2.5 сот.
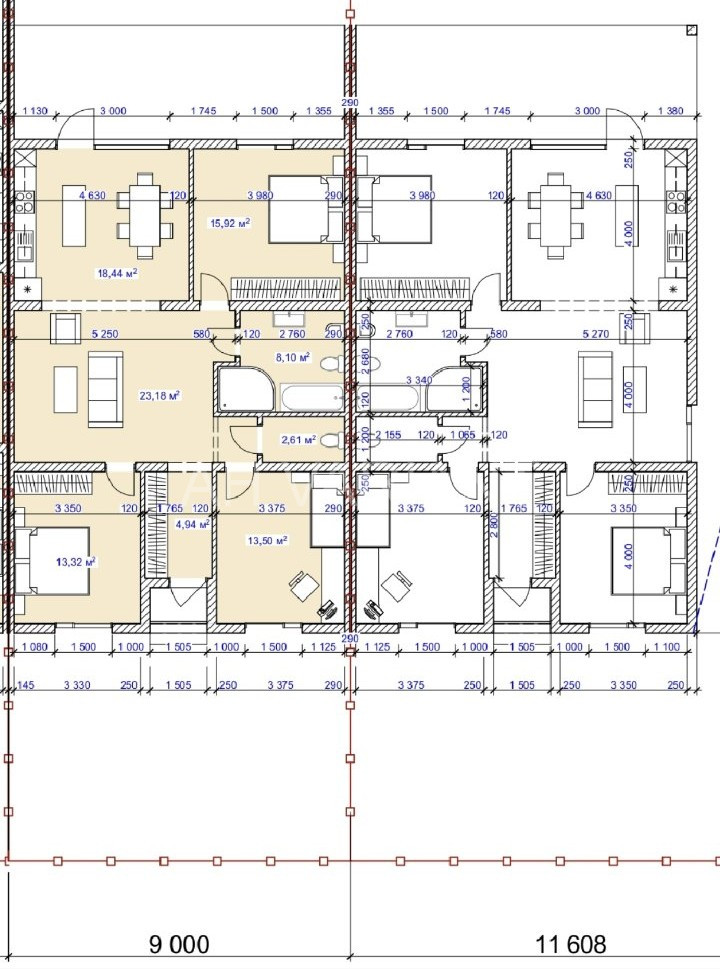
Площа будинку 105 м.кв.
Комунікації міські: центральна каналізація, центральна вода, світло (три фази, 15 кіловат).
Характеристика будівництва:
– Зовні котедж побудований з цегли, утеплений 10 см пінопластом, вікна енергозберігаючі – шестикамерні, дах покритий металочерепицею та утеплений 20 см мінватою, якісні вхідні двері.
– Всередині перестінки з цегли, стіни поштукатурені, заведений силовий кабель без розводки, заведена каналізація без розводки, чорнова стяжка.
– Подвір’я викладено бруківкою, підсипано чистовим грунтом, встановлений паркан від сусідів та буде встановлений паркан фасадний з калікою та воротами.
Дуже зручне та продумане планування: прихожа, три окремі кімнати, вітальня, гардеробна, санвузол, кухня з виходом на терасу.
Хороша локація та затишне місце для комфортного проживання, а також для здачі об’єкта в оренду.
Переписка мінімальна.
Є відео огляд об’єкту.
Ціна 99 тис дол.
Код: 34902
Тел.: (068)-131-57-88 ОФІС
Тел.: (050)-131-57-88 Михайло
Тел.: (066)-307-53-43 Христина
Iнші оголошення на сайті variant.in.ua ->>
Обери найкращий варіант – АН “Variant”















