
Продаються квартири, ЖК 44 AVENUE
Продаються квартири, ЖК 44 AVENUE, м. Ужгород, вул. Мукачівська 44.
44 AVENUE – розміщений на території 1 гектару. Це перший житловий комплекс в Україні, що підтримує підключення до сонячних панелей. Також завдяки системі “розумний дім” ви зможете керувати опаленням, домофоном і шлагбаумом прямо зі смартфона. Буде встановлено безшумний ліфт і відеонагляд для забезпечення вашого комфорту та безпеки.
Жити в 44 AVENUE – означає бути в центрі подій. ЖК розташований у самому серці міста, поруч із історичними пам’ятками, мальовничою набережною та престижними закладами освіти. У пішій доступності – школи, садочки, лікерні, фітнес-зал, магазини та кафе. Також на території ЖК є сучасне бомбосховище та підземний паркінг. Ви отримуєте не житло, а унікальну атмосферу міського життя з доступом до всього необхідного.
Будівництво 1 черги ведеться.
Здача об’єкту в експлуатацію 4-квартал 2026 р.
Характеристика будівництва:
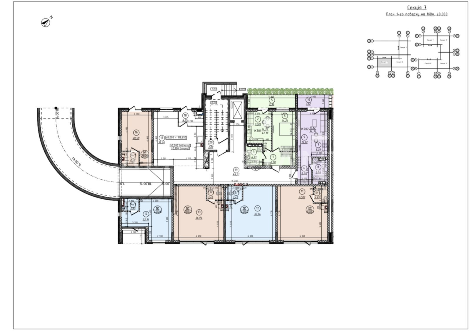
Зовні будинок 7-поверховий, побудований по монолітно-каркасній технології з використанням червоної цегли, фасад вентильований із травертину, утепленний мінватою, панорамні енергозберігаючі вікна.
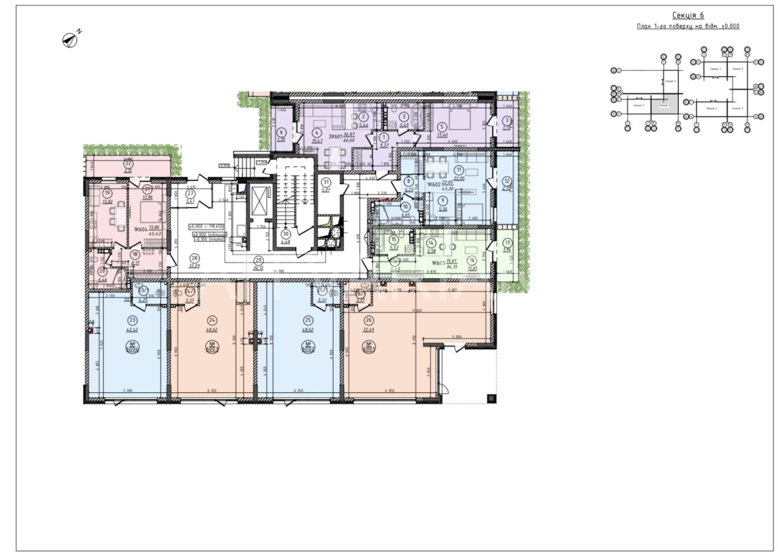
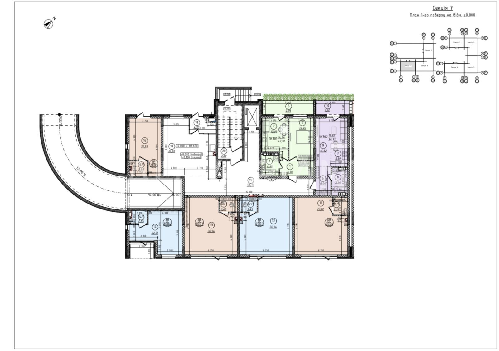
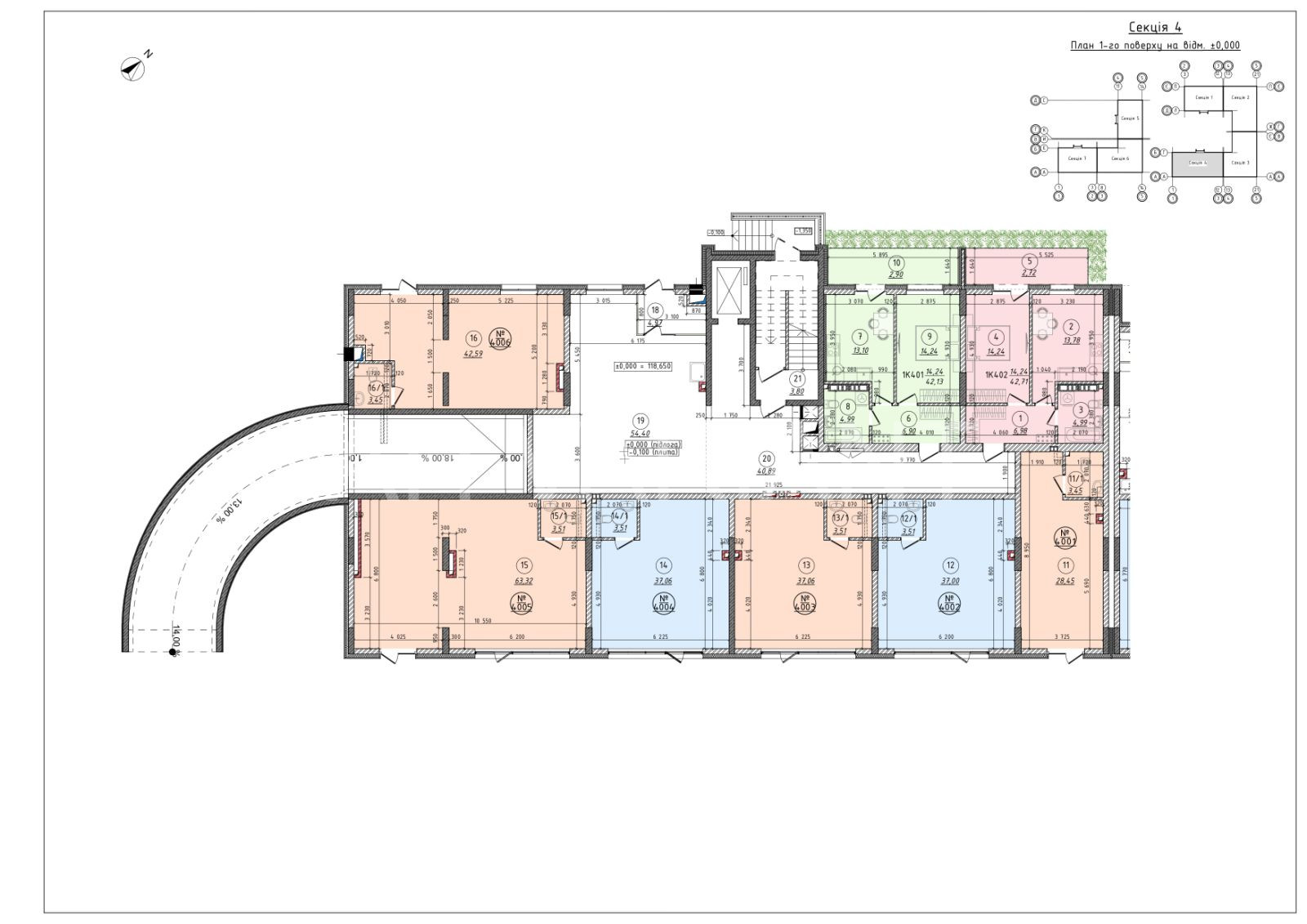
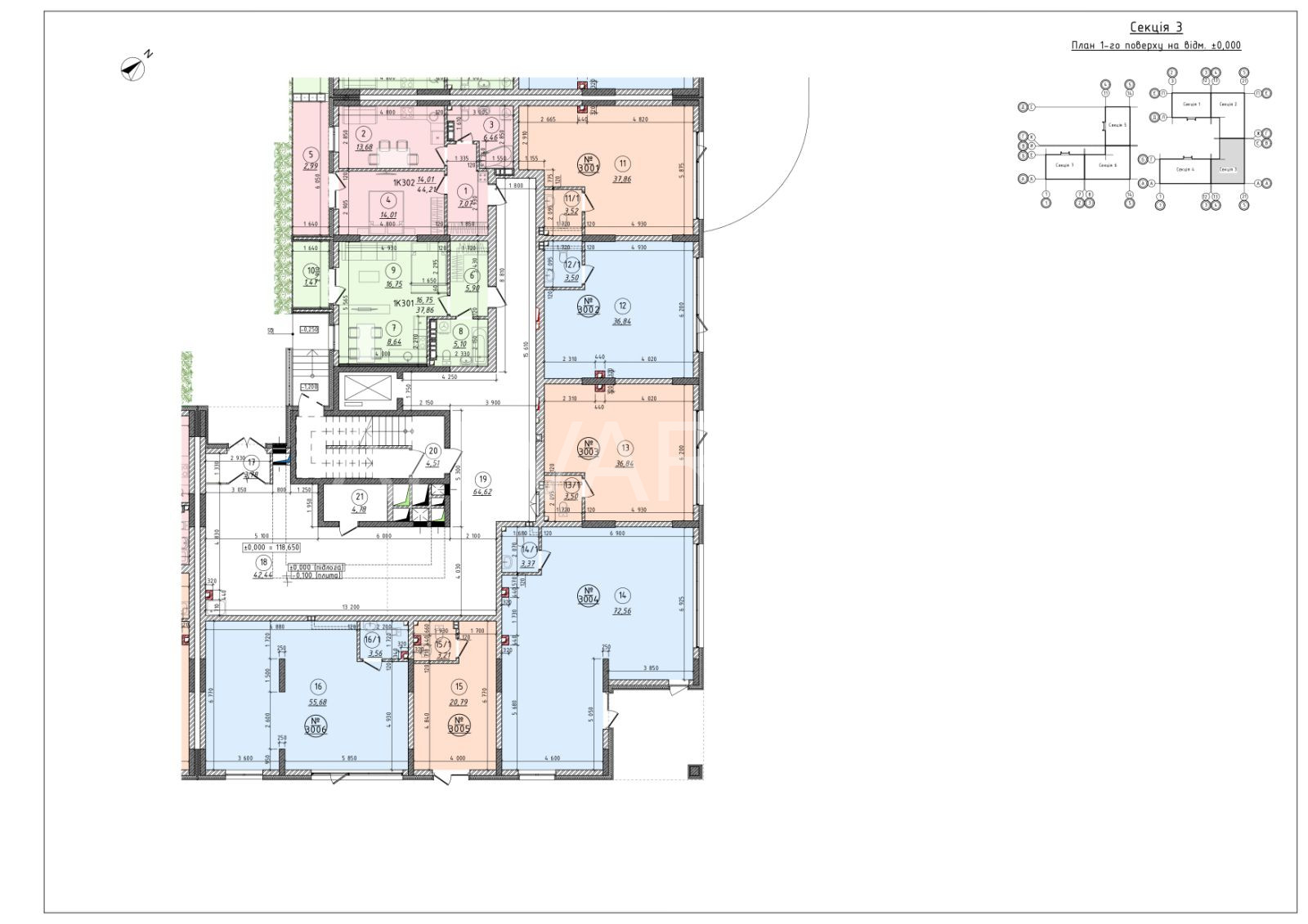
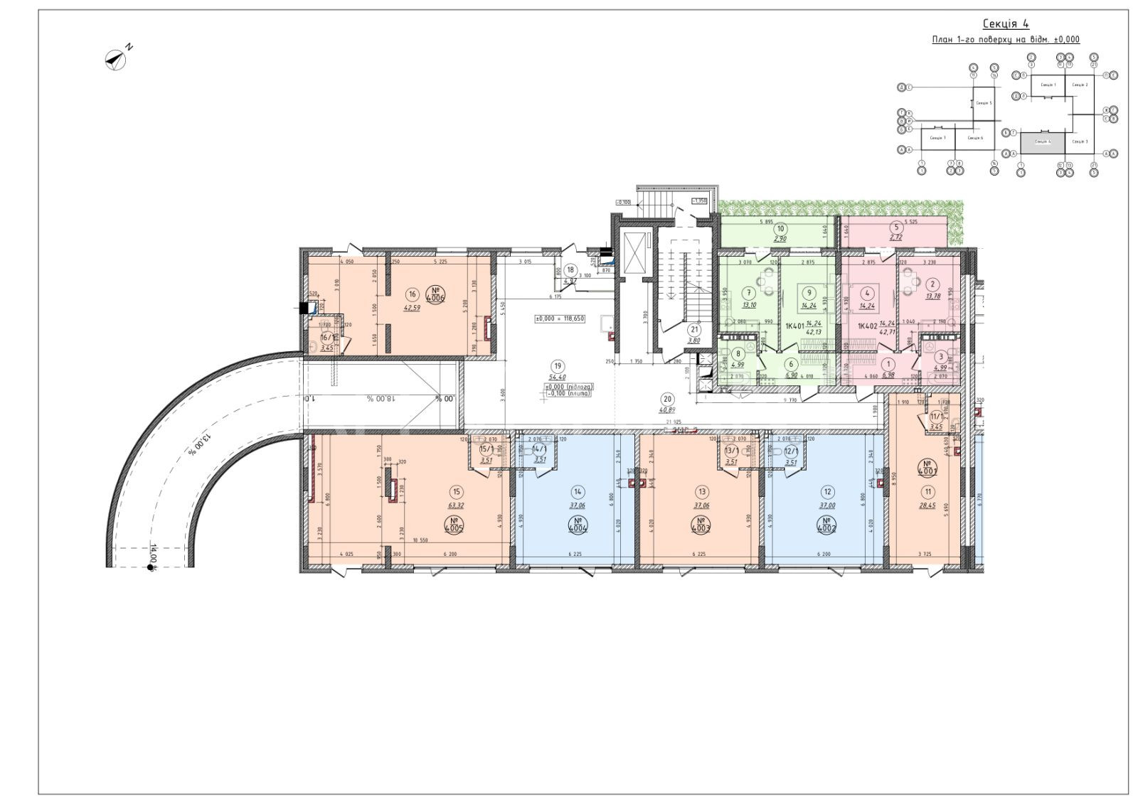
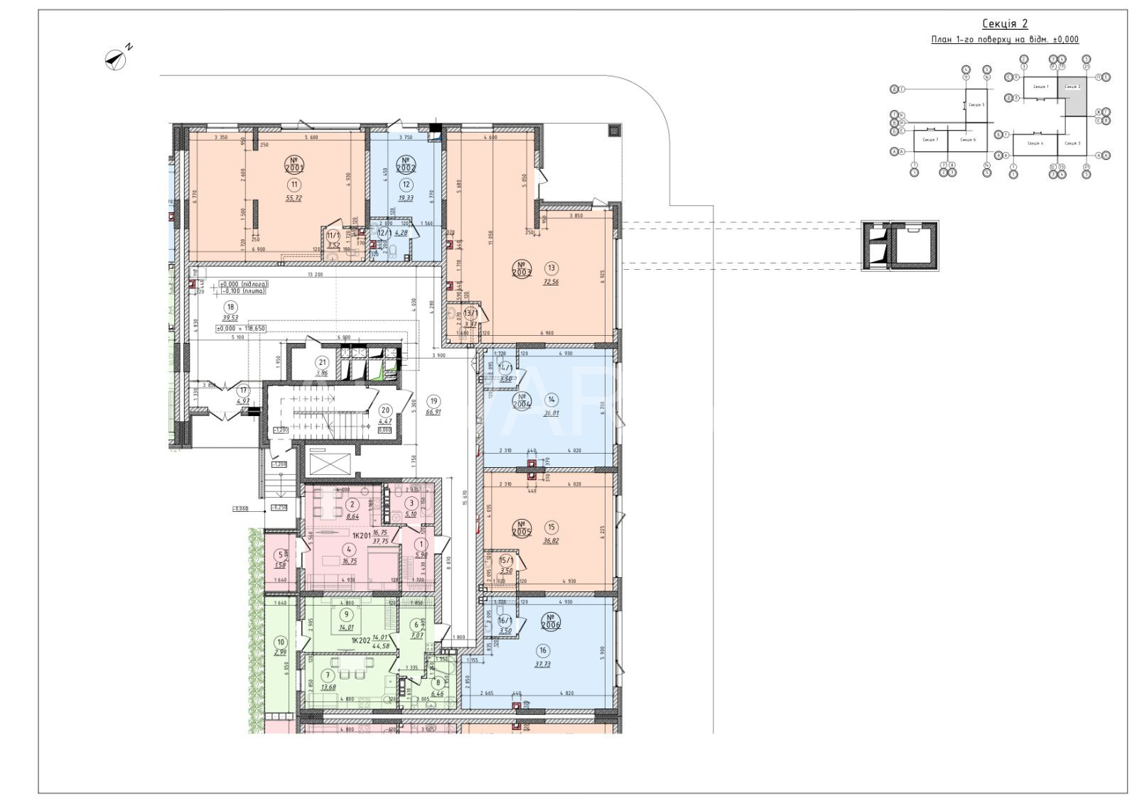
1 поверх – комерція, 2-7 житлові.
Всередині забудовником надається чистова стяжка, електрокотел + батареї, стіни поштукатурені, розведена сантехніка, заведений силовий кабель без розводки, якісні вхідні двері.
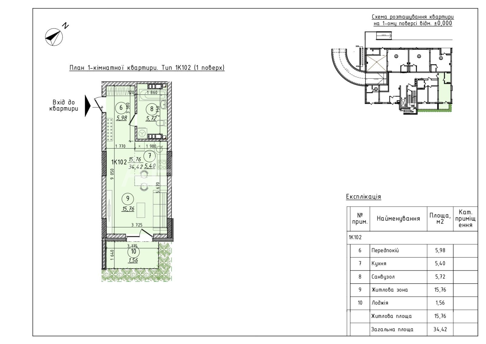
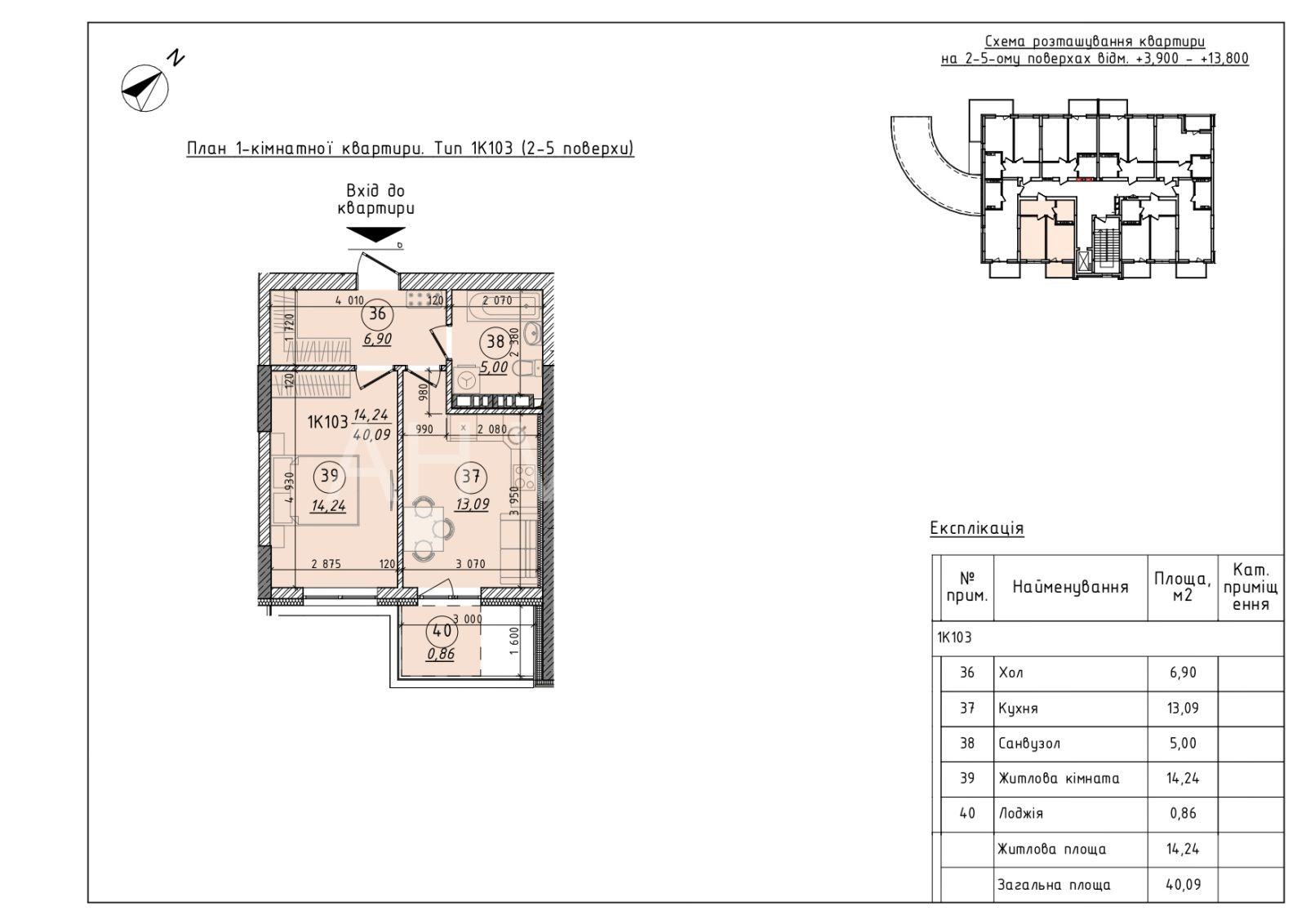
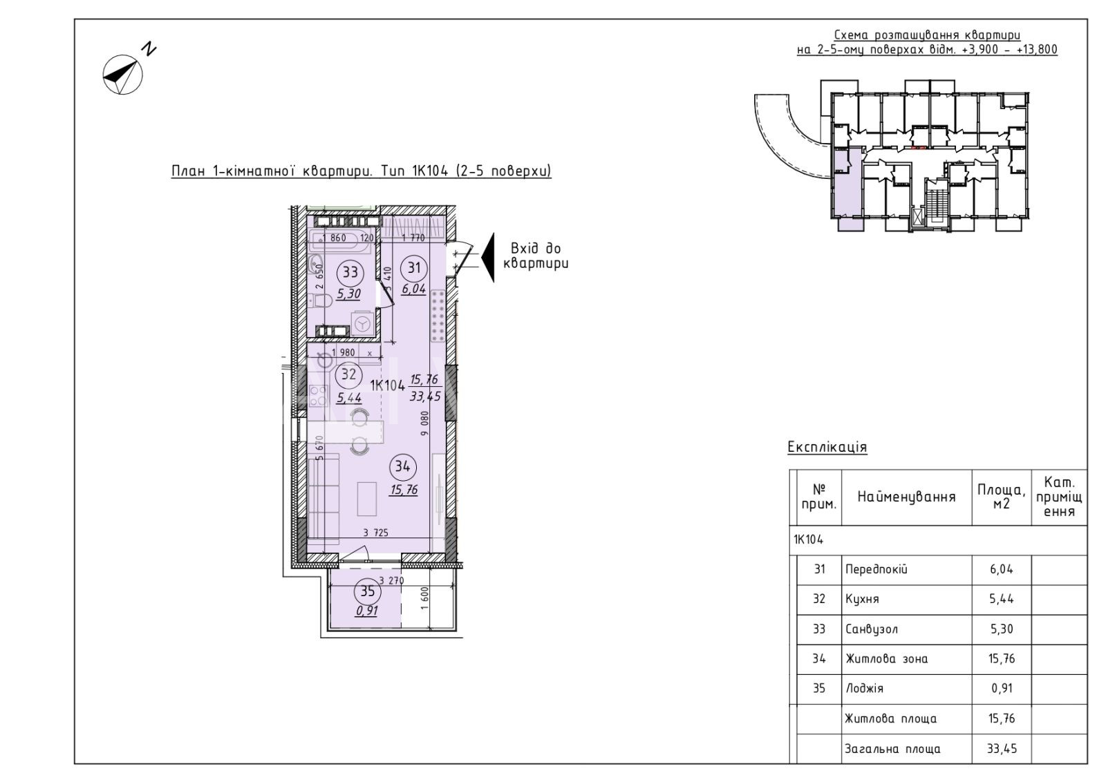
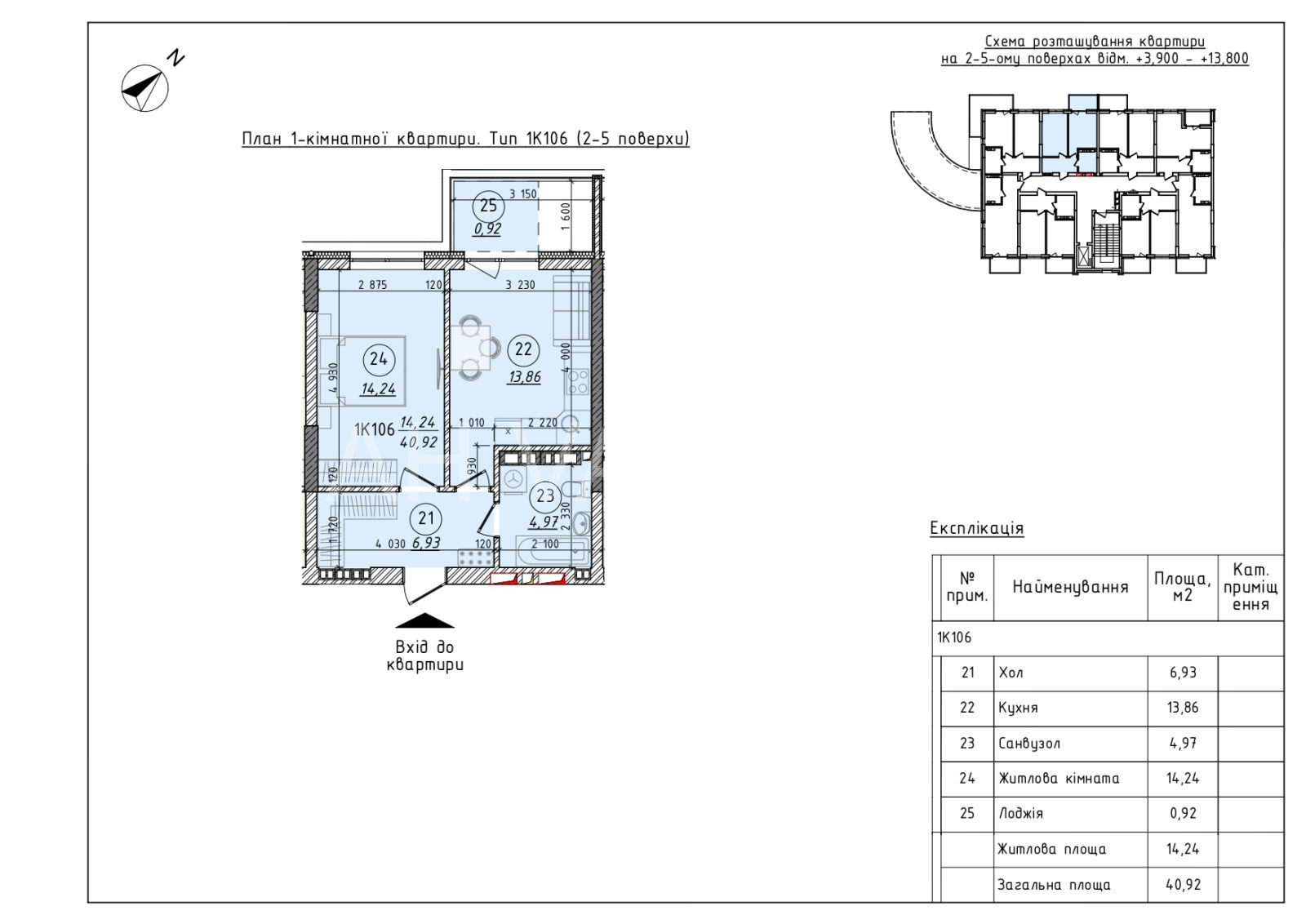
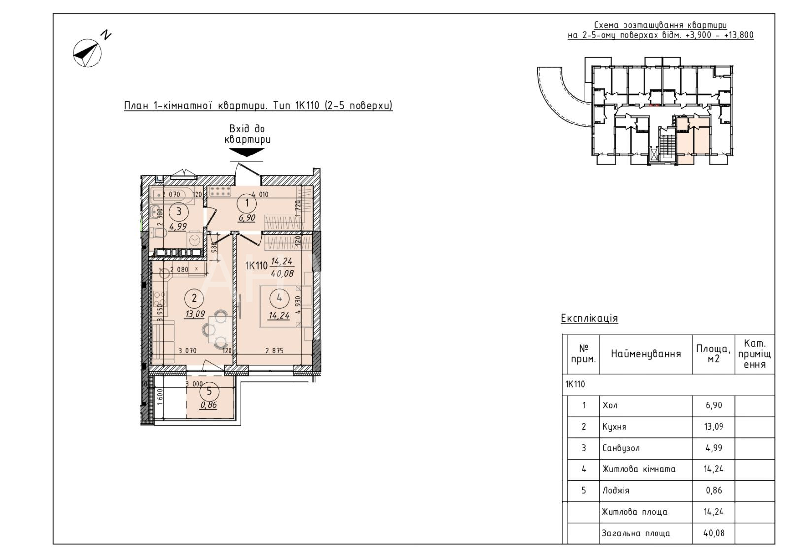
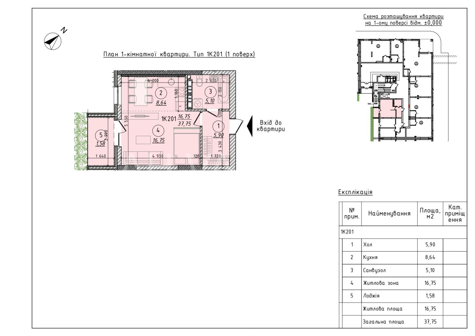
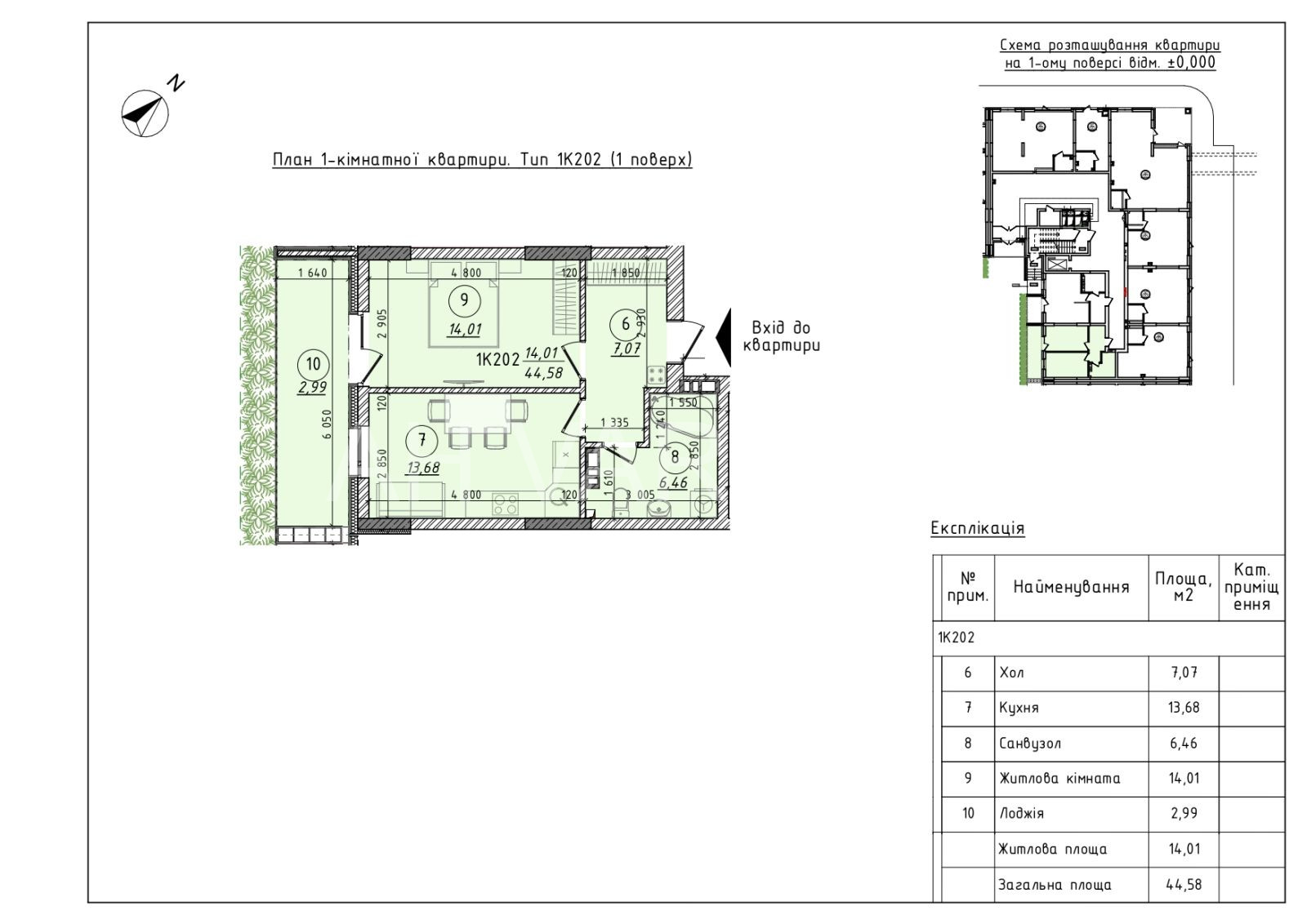
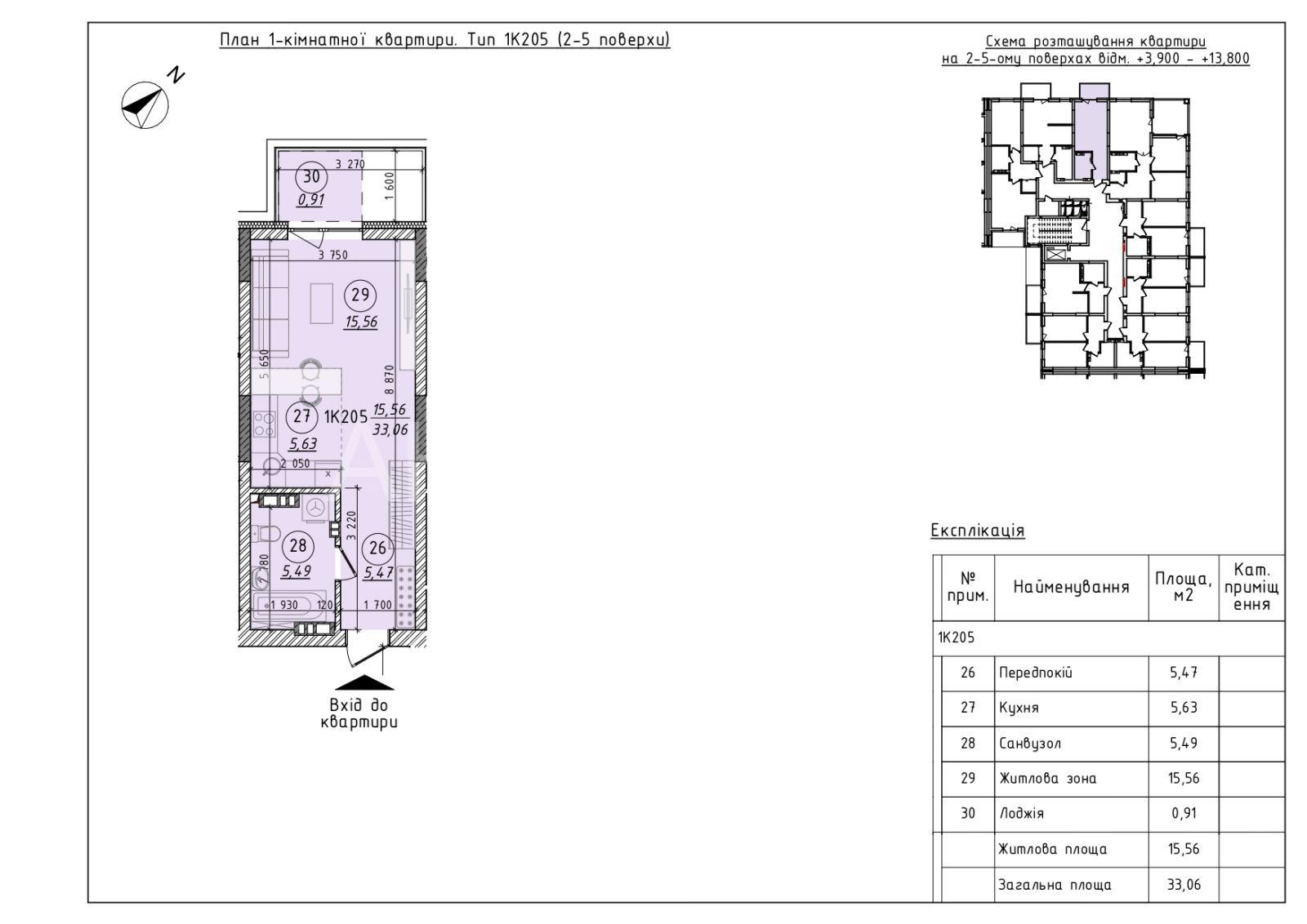
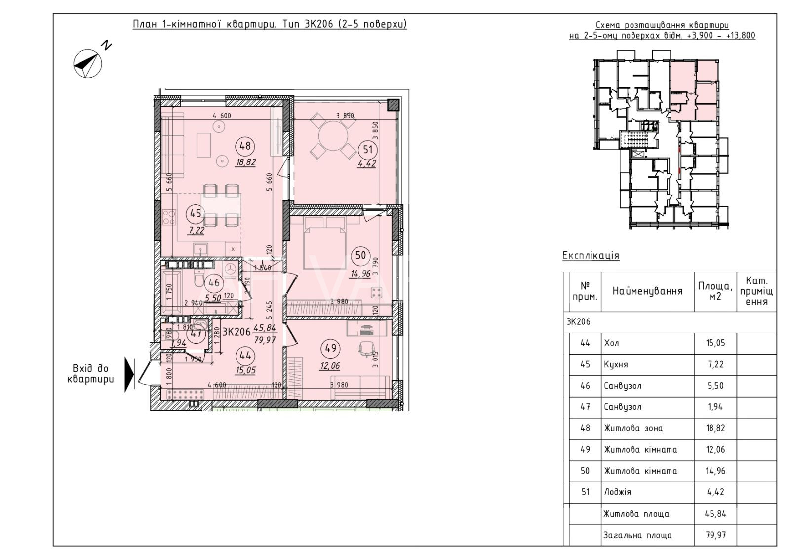
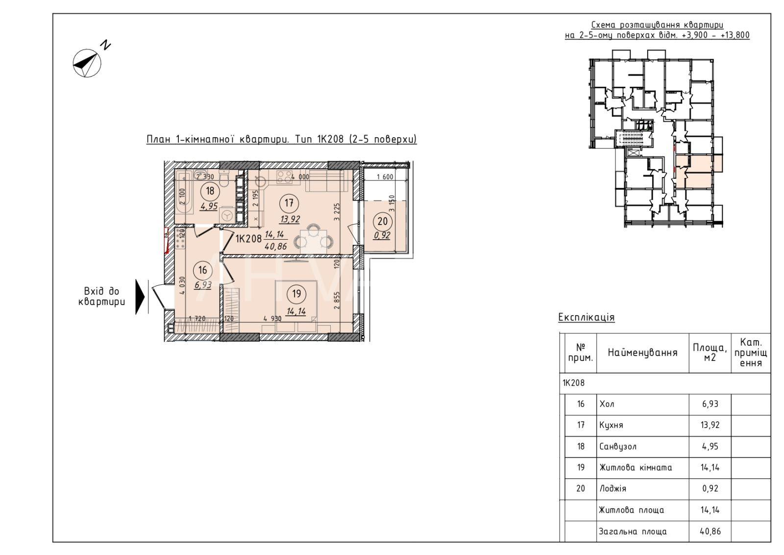
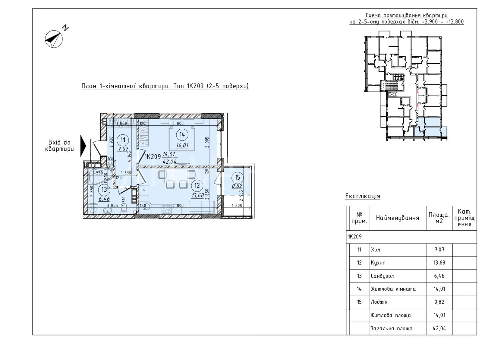
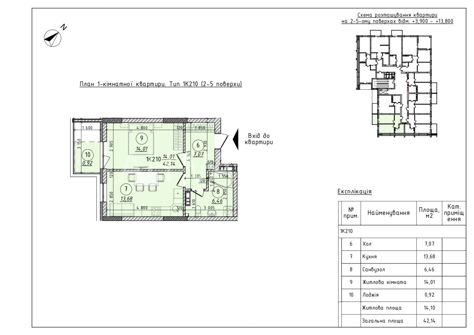
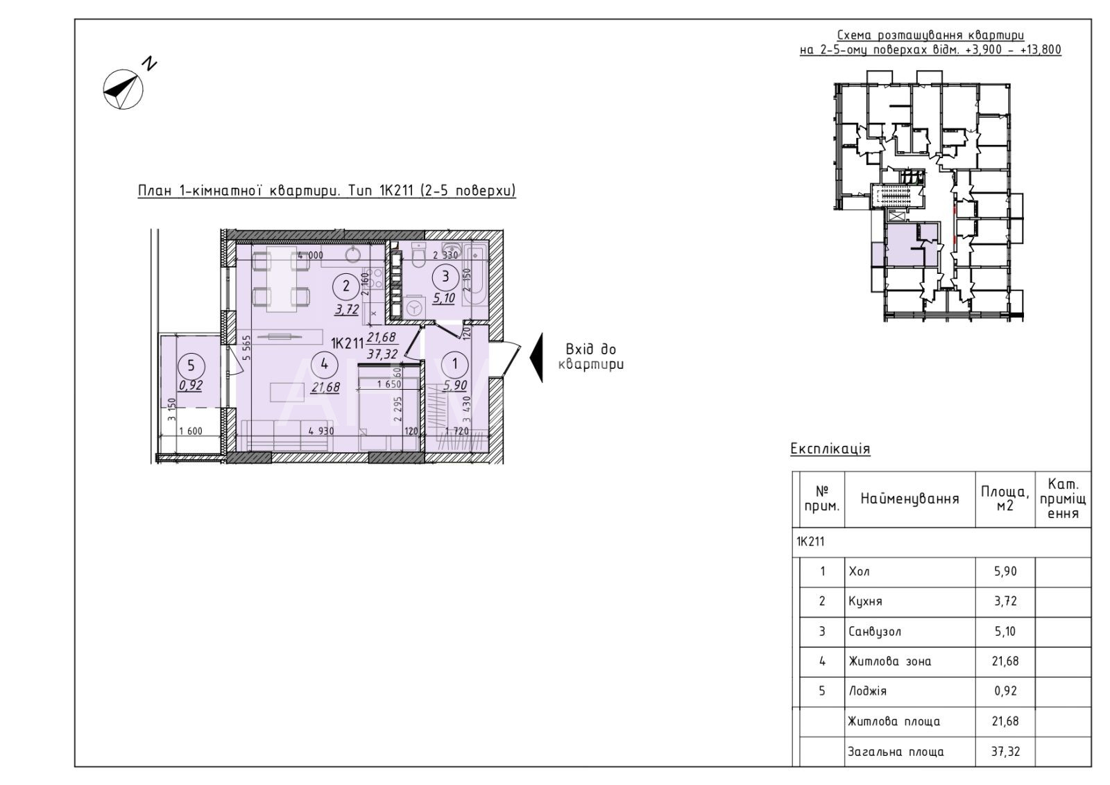
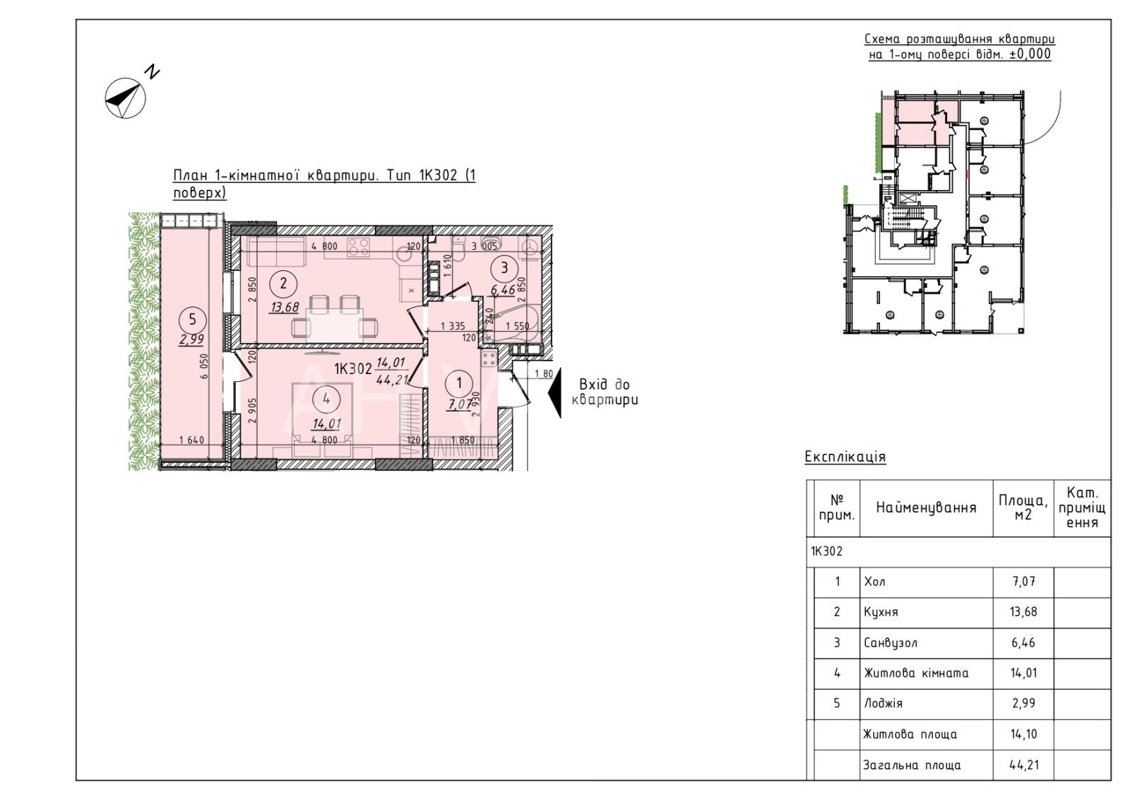
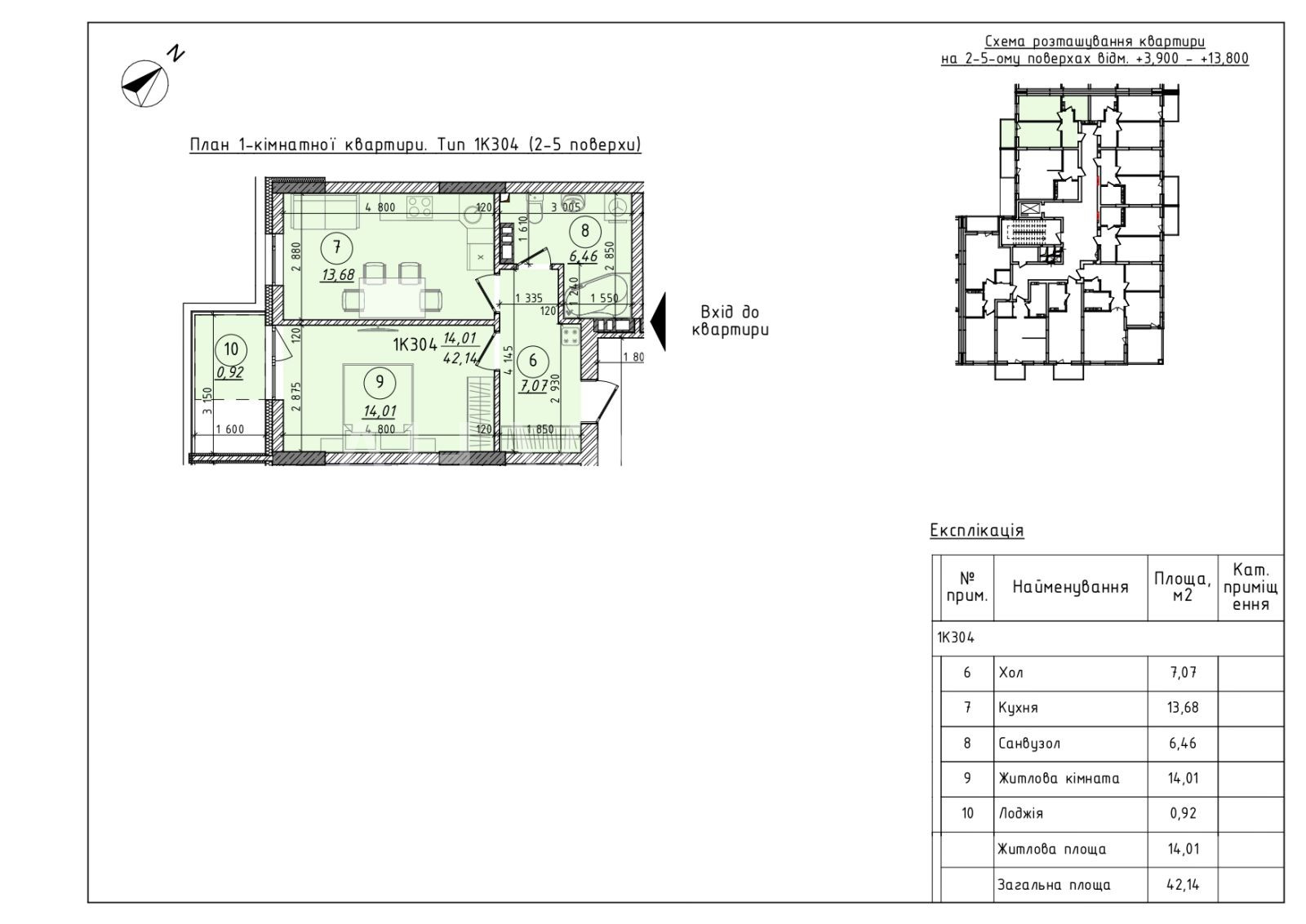
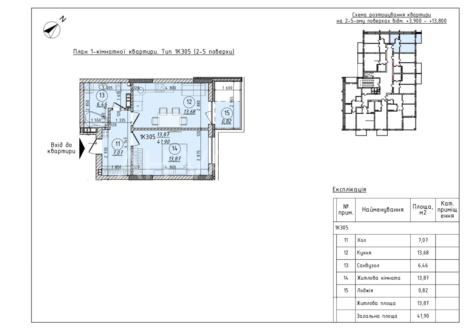
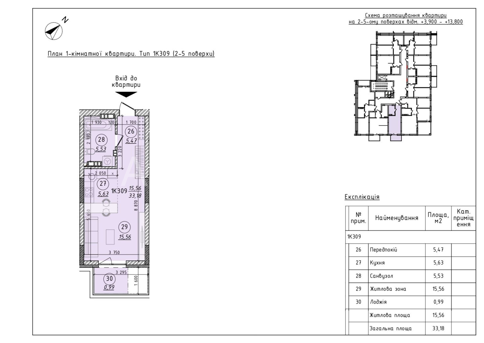
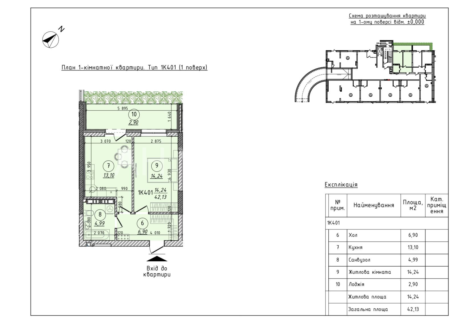
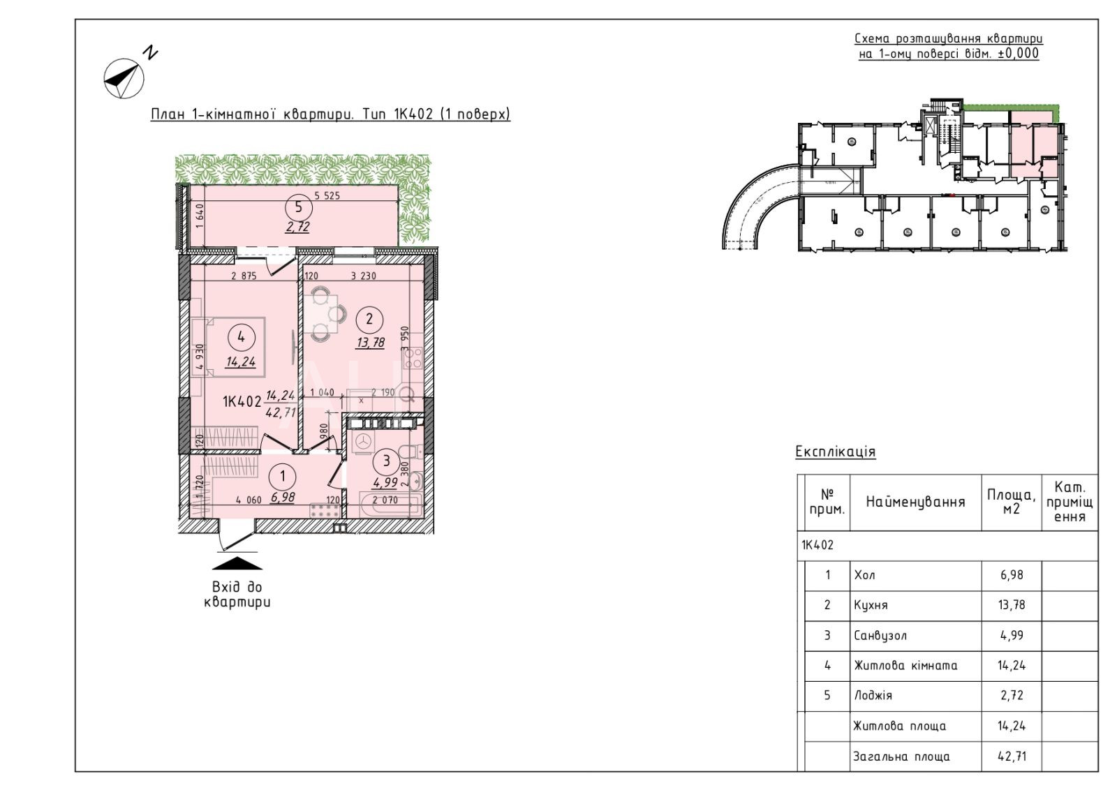
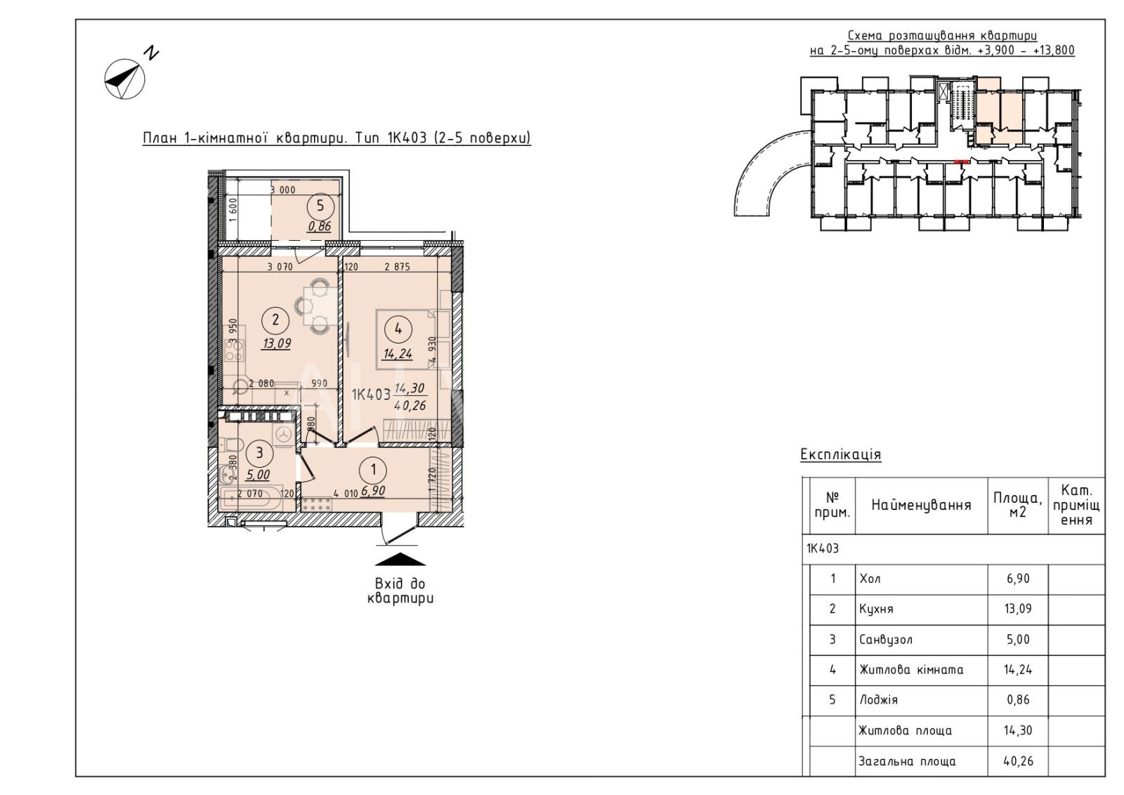
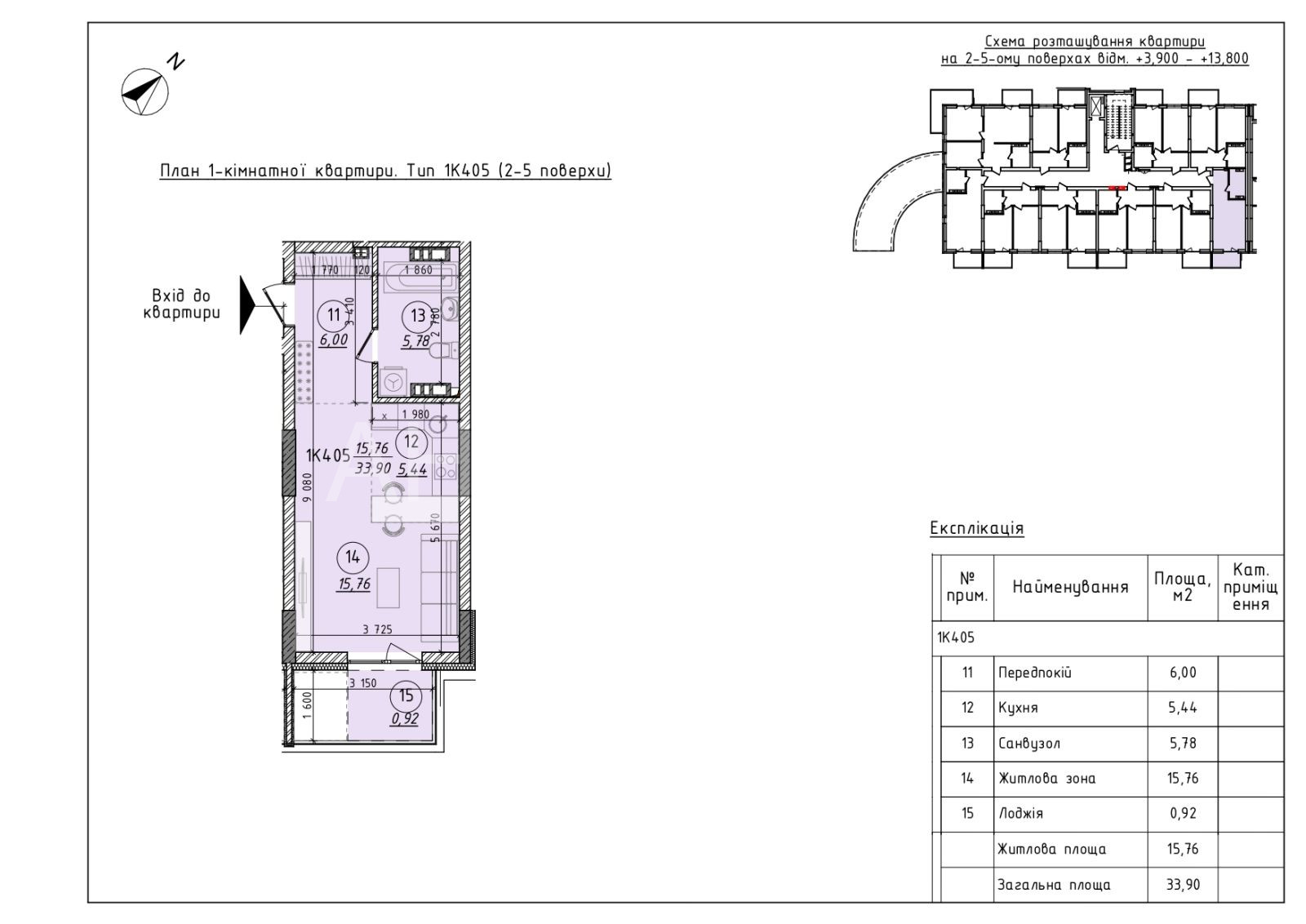
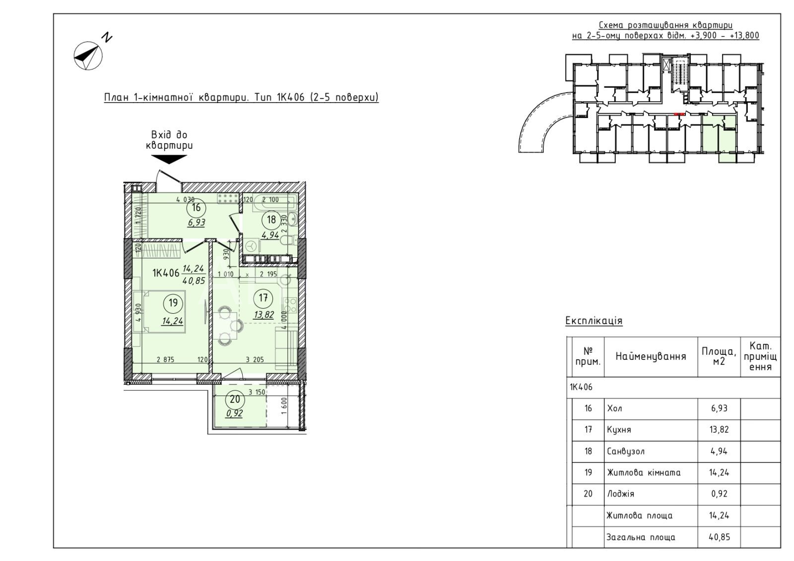
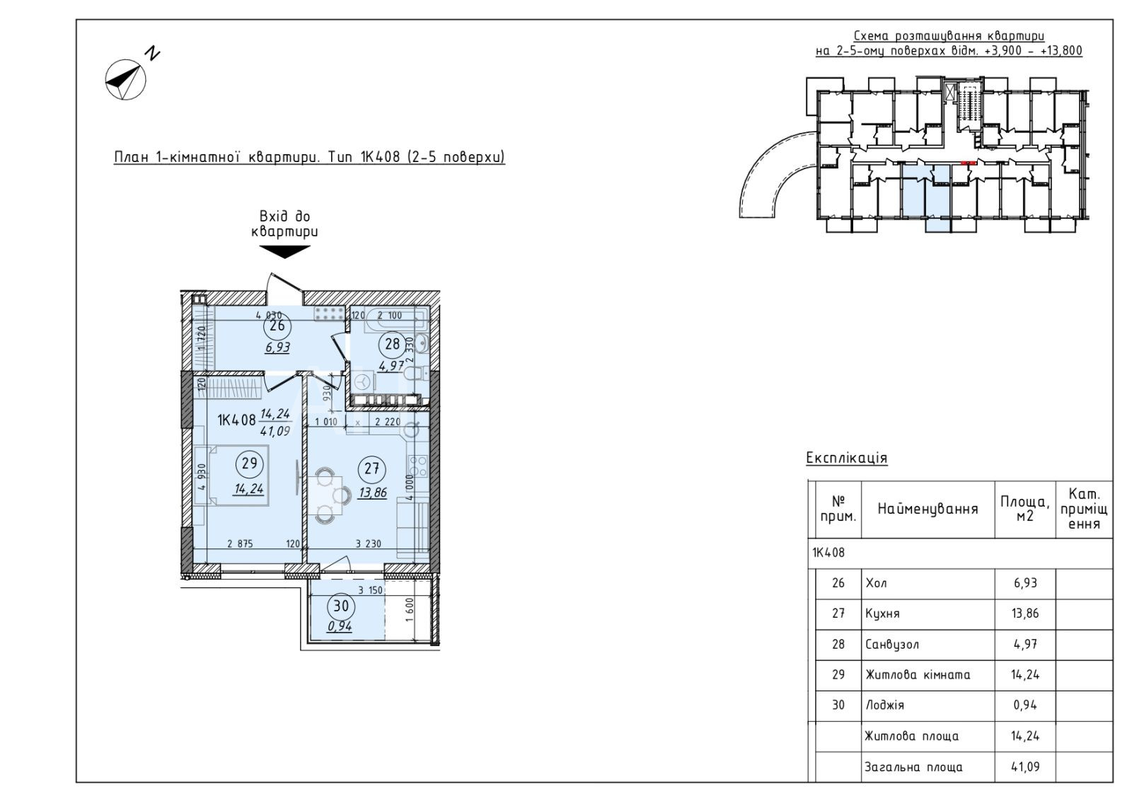
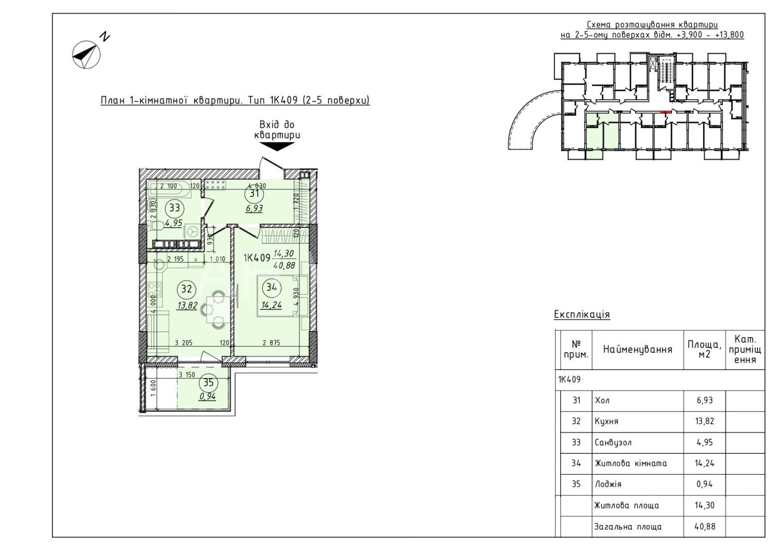
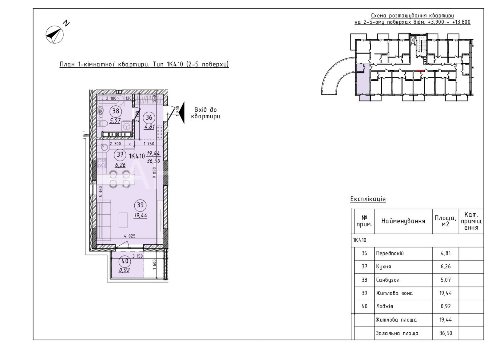
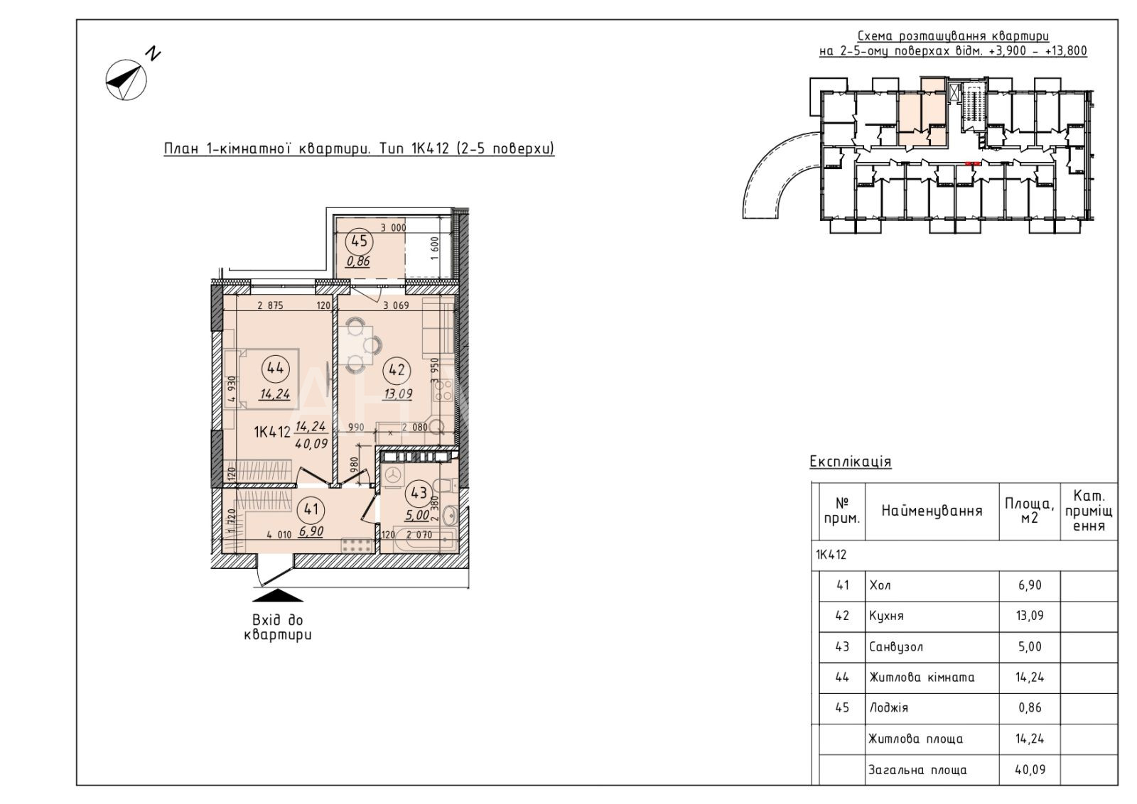
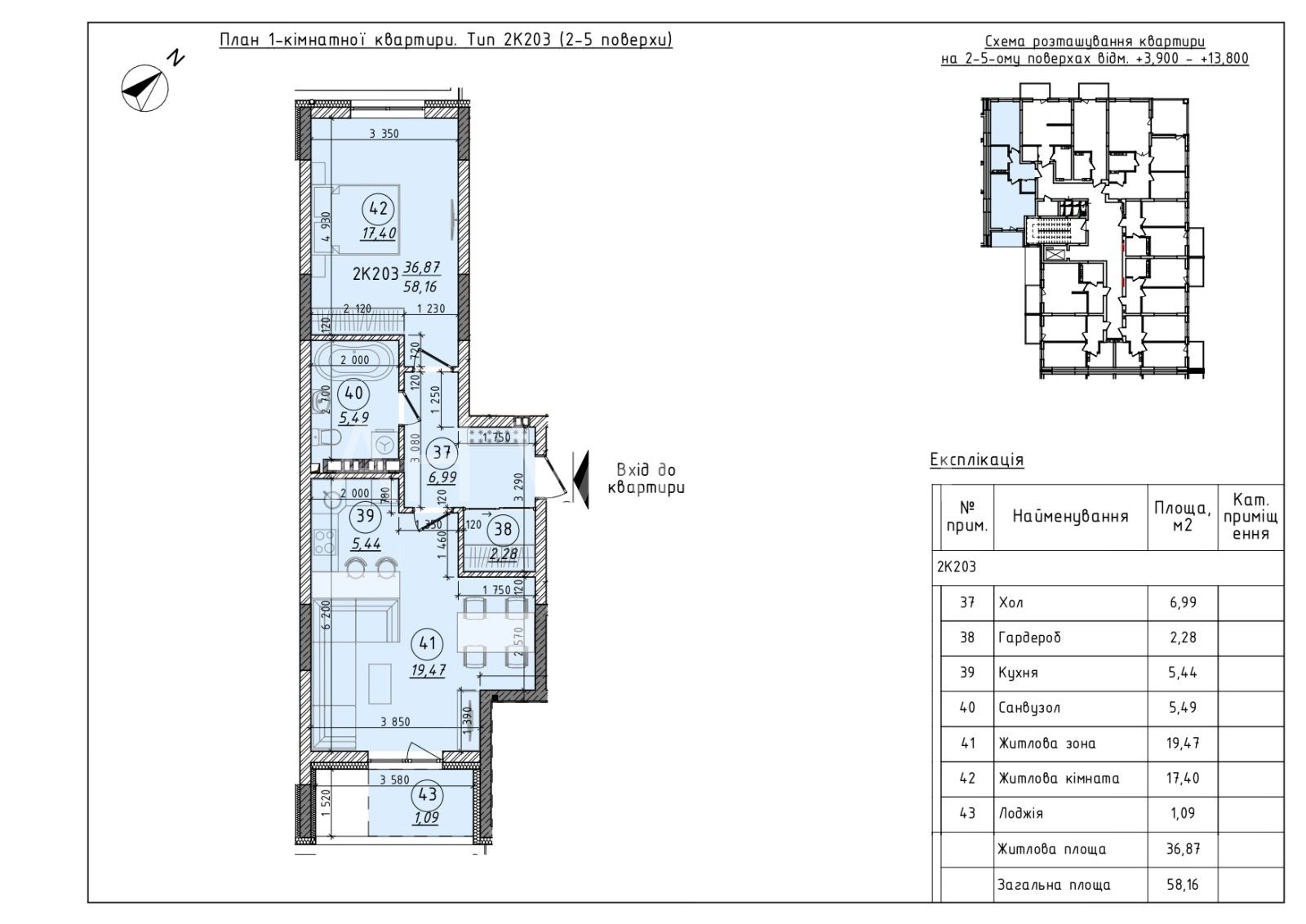
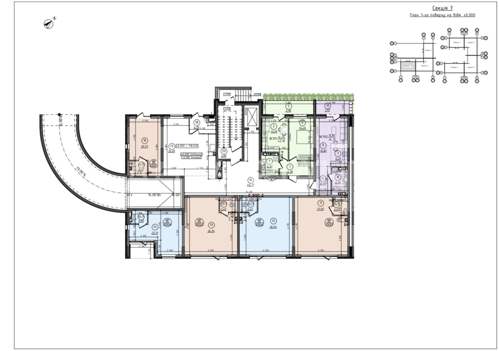
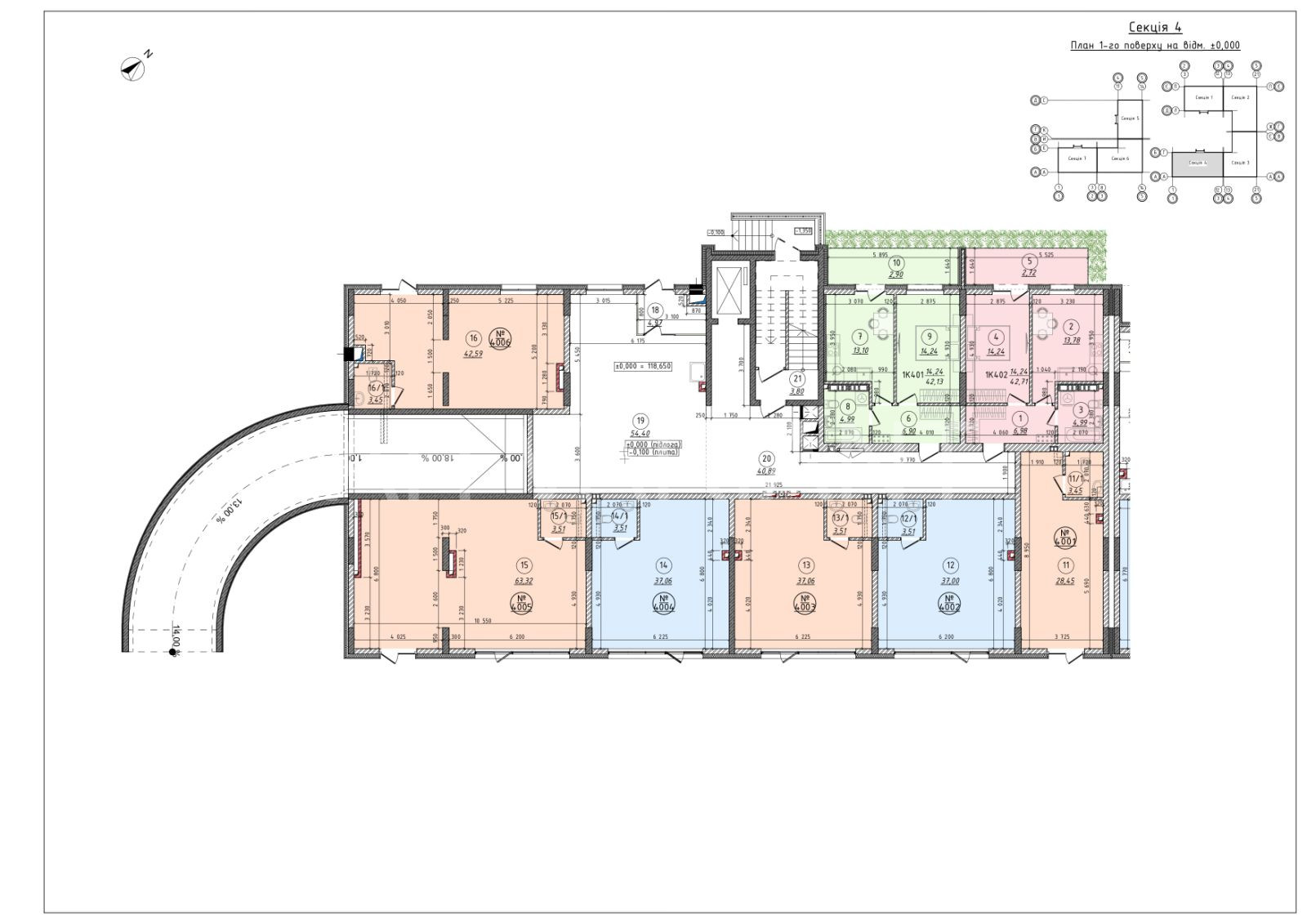
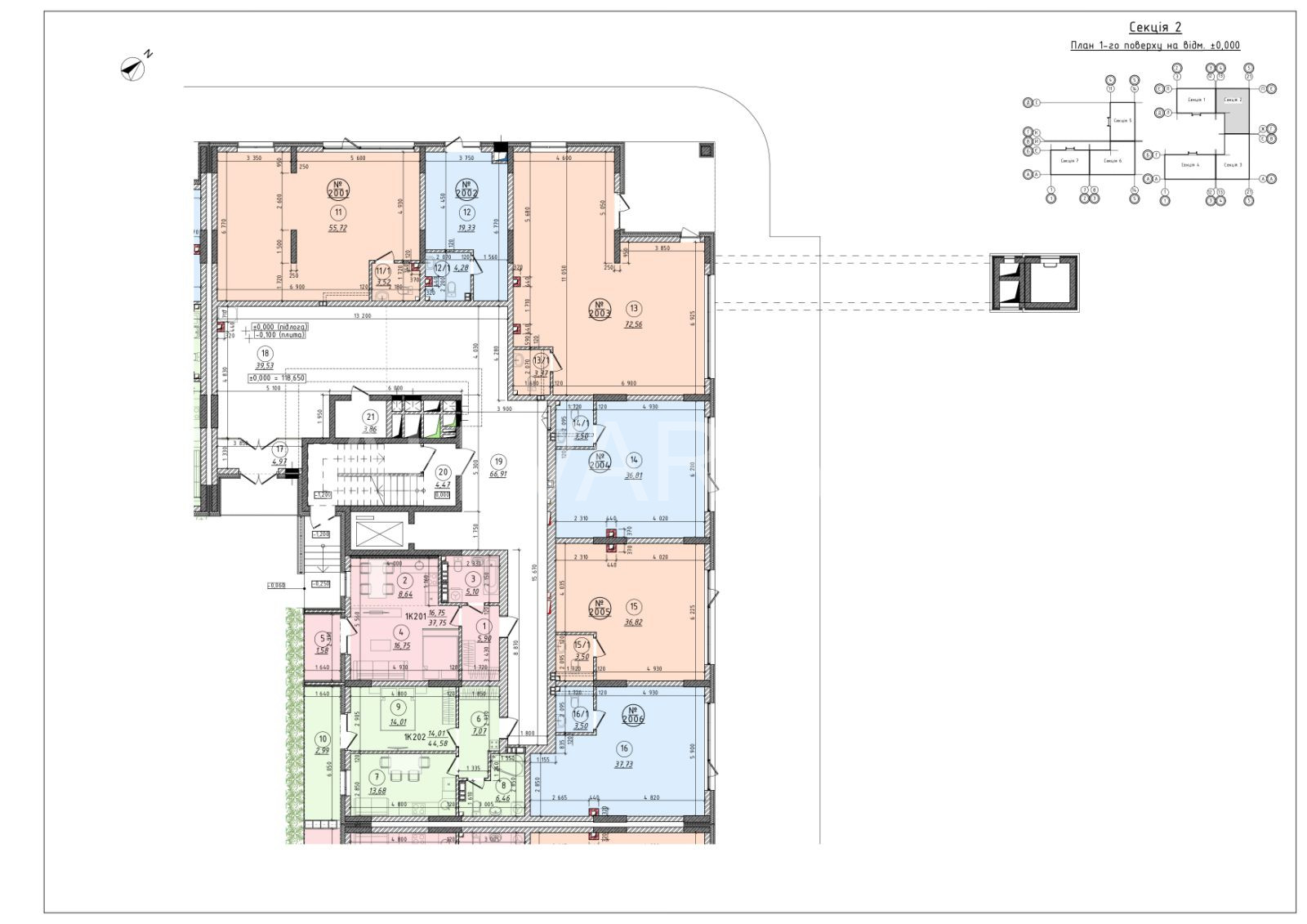
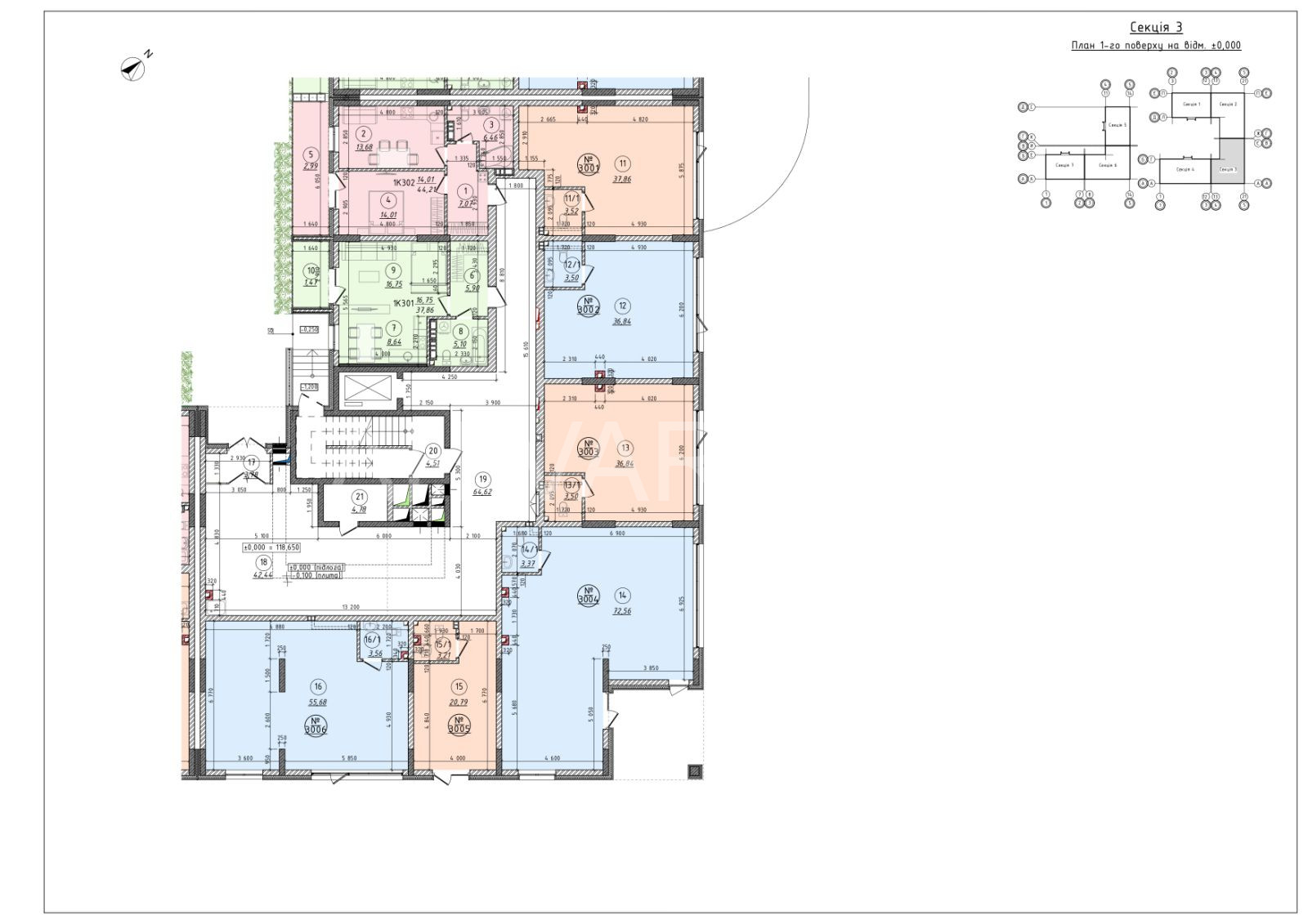
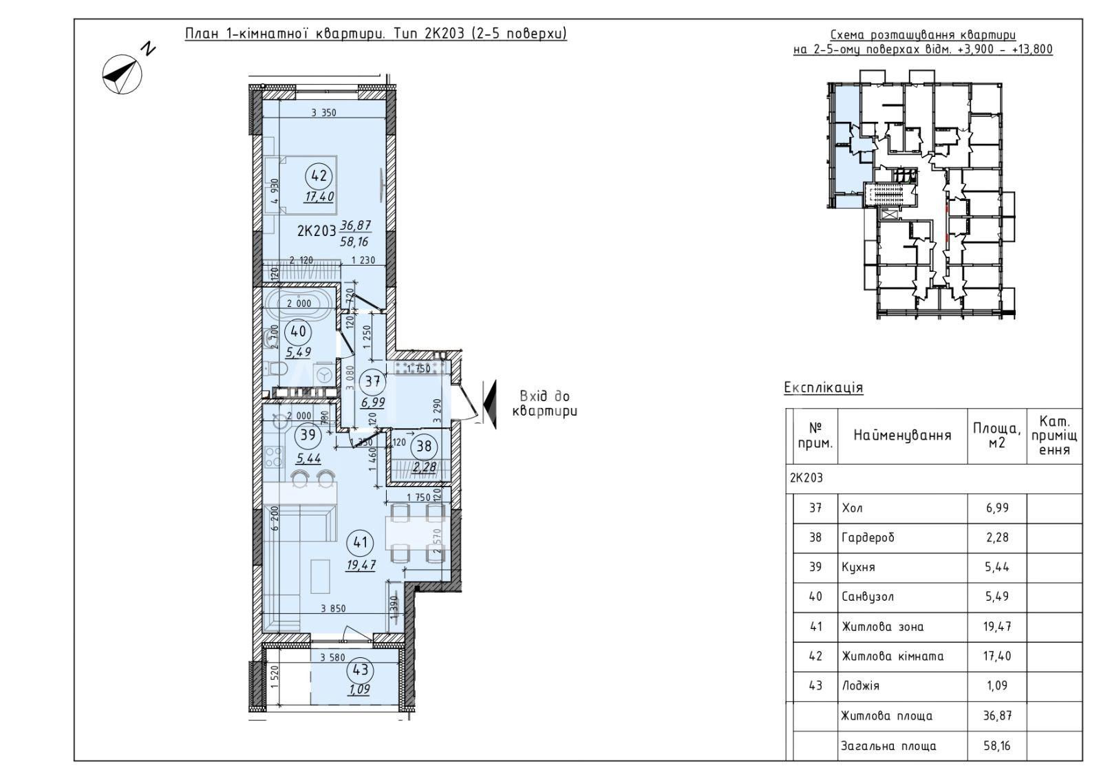
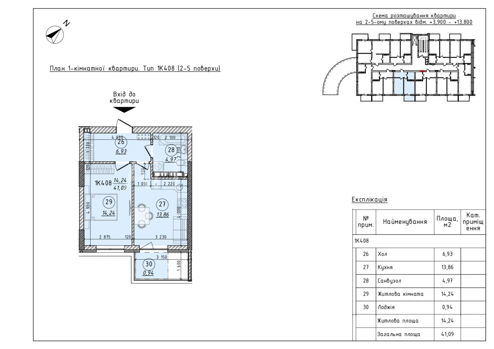
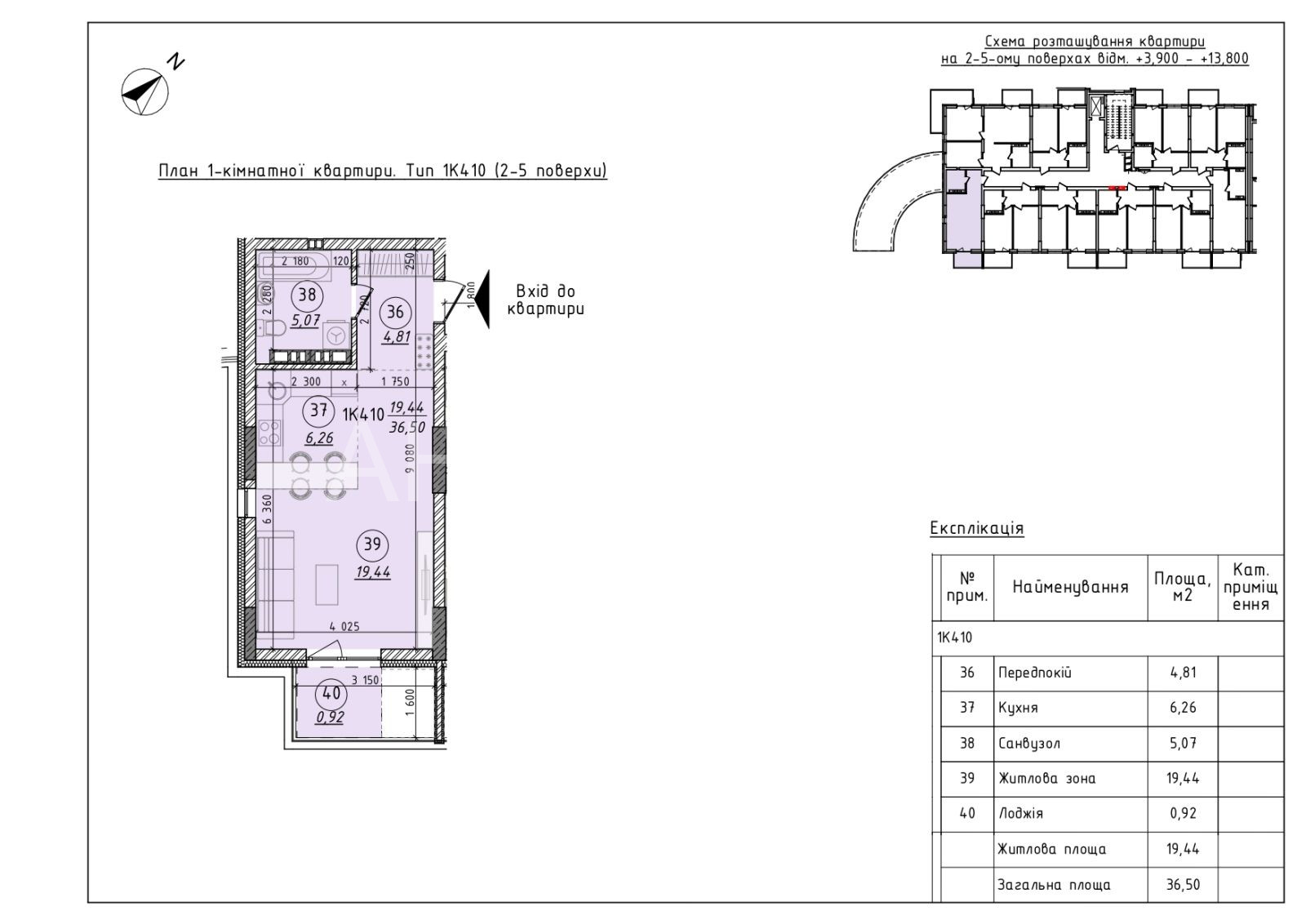
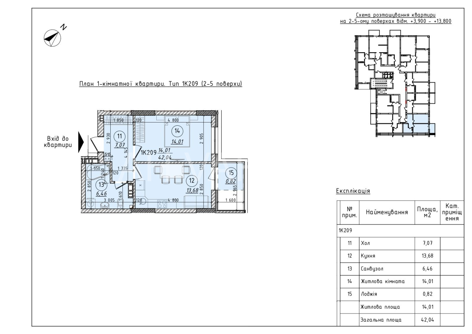
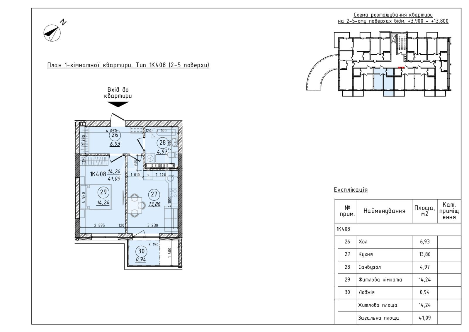
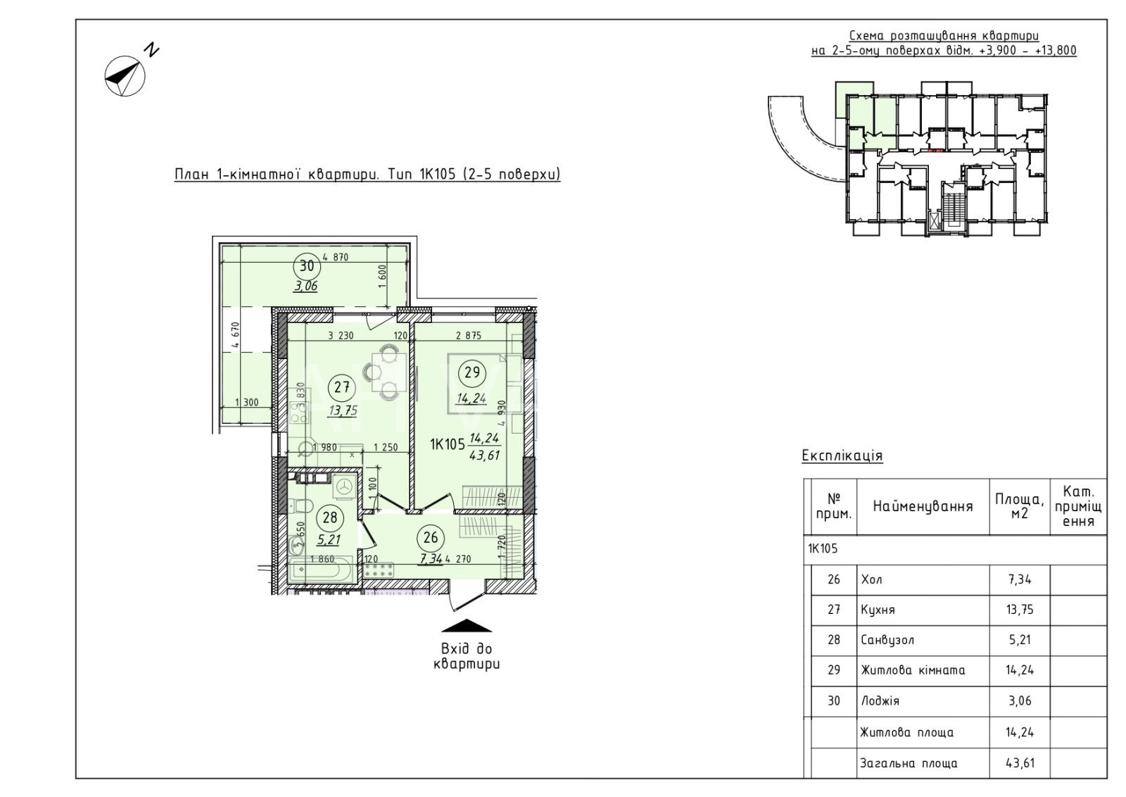
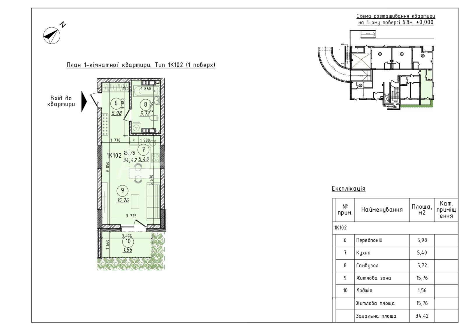
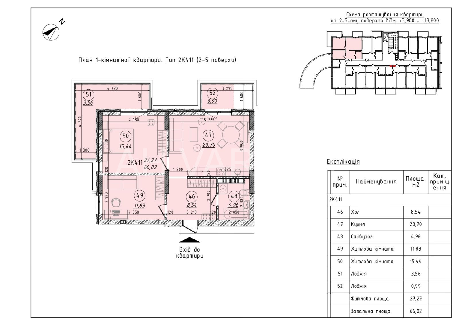
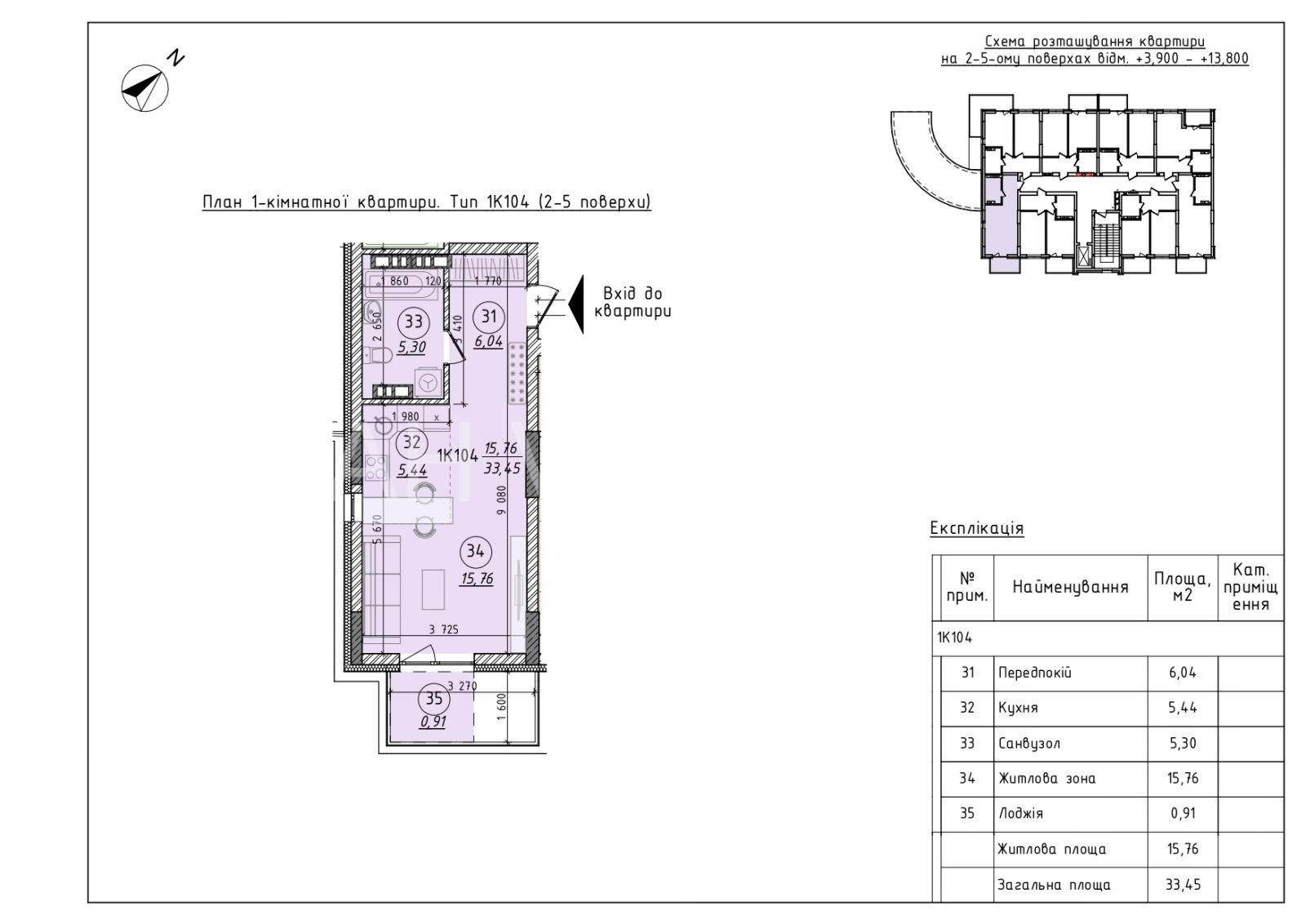
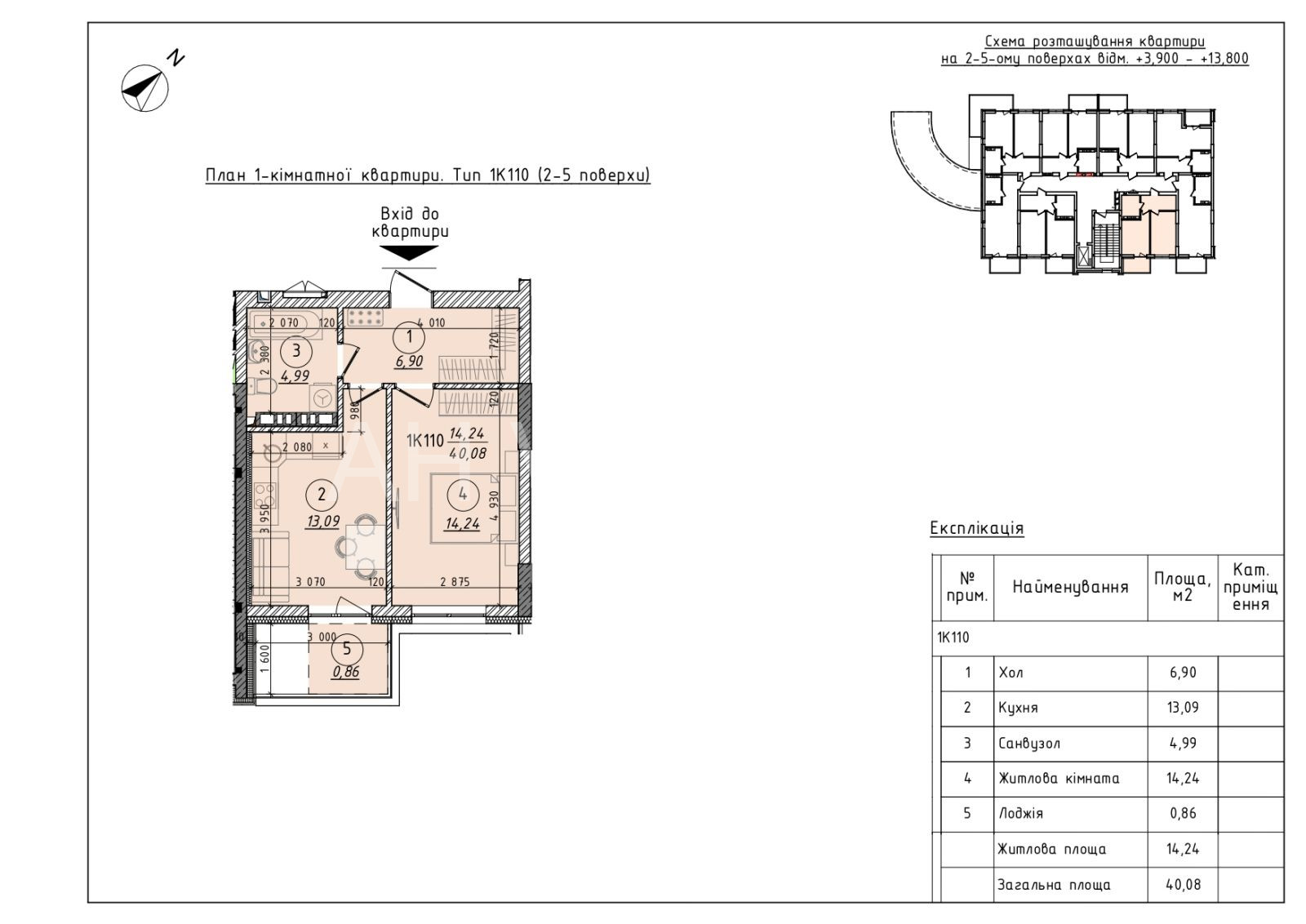
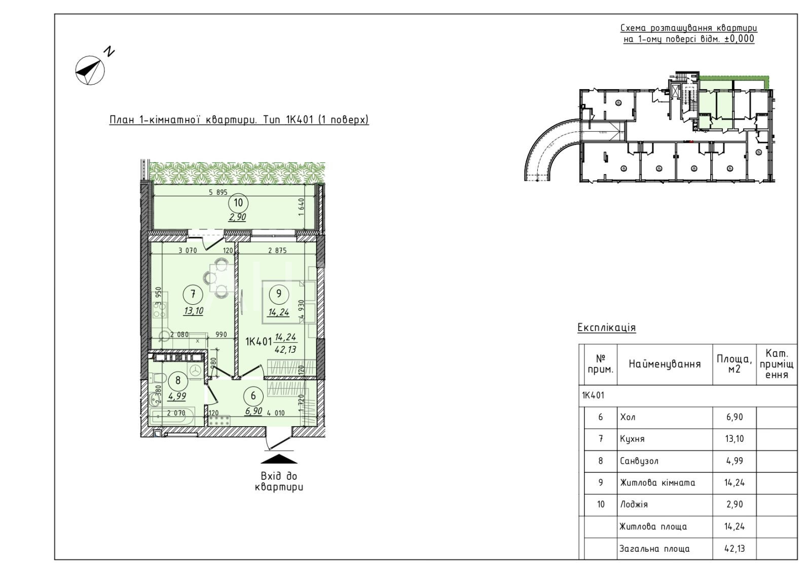
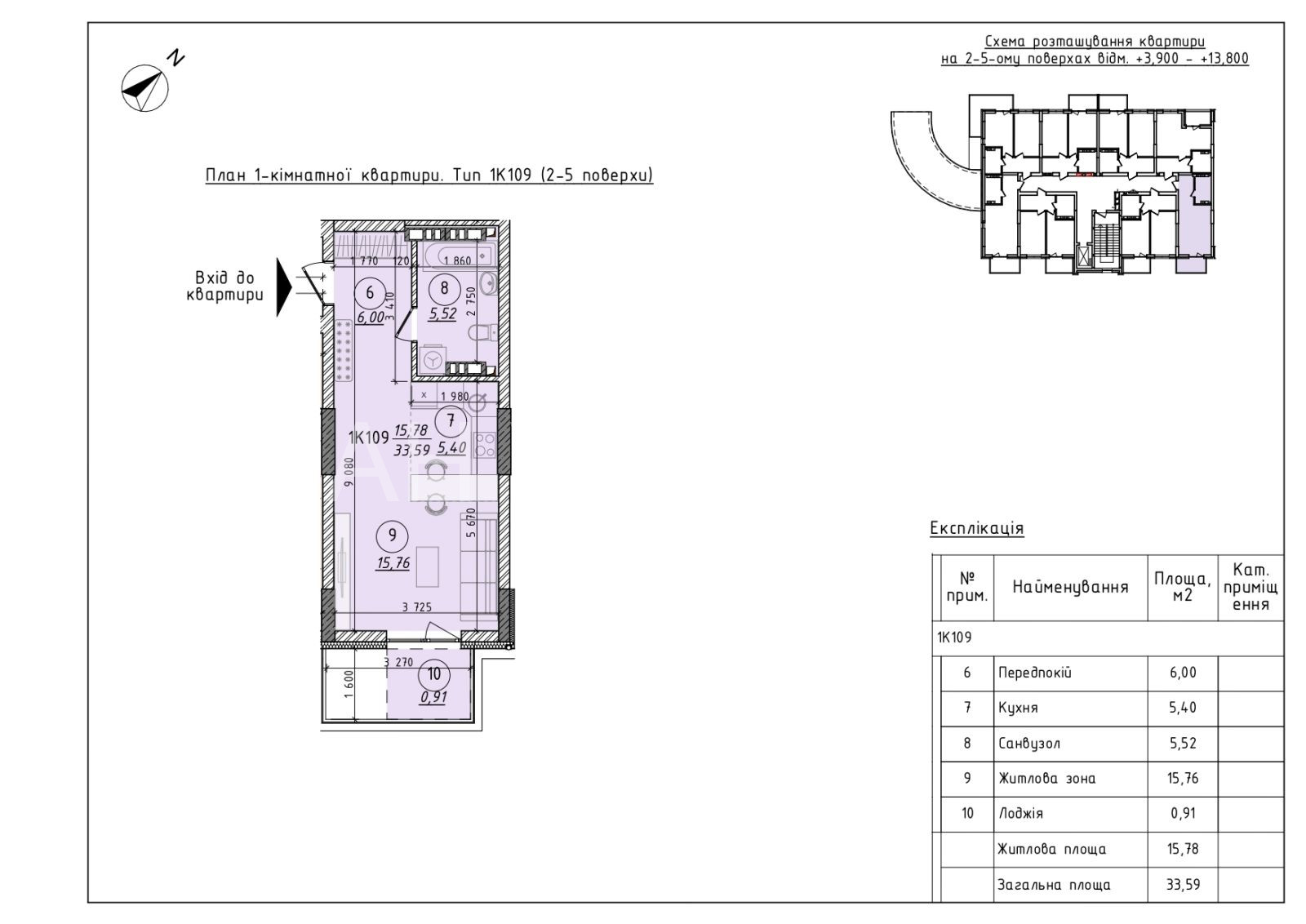
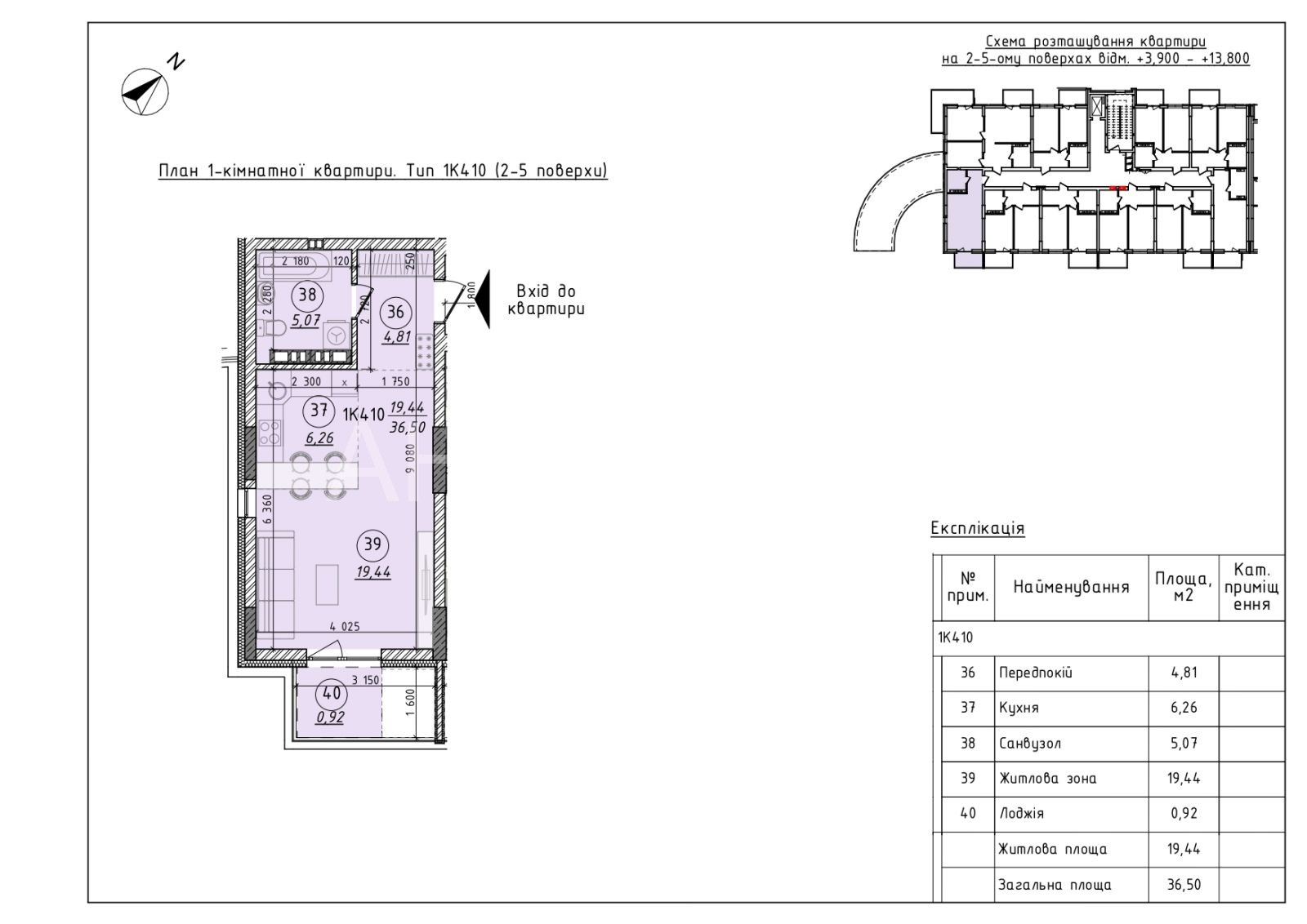
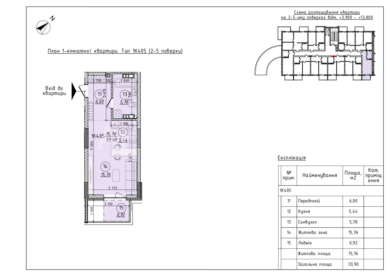
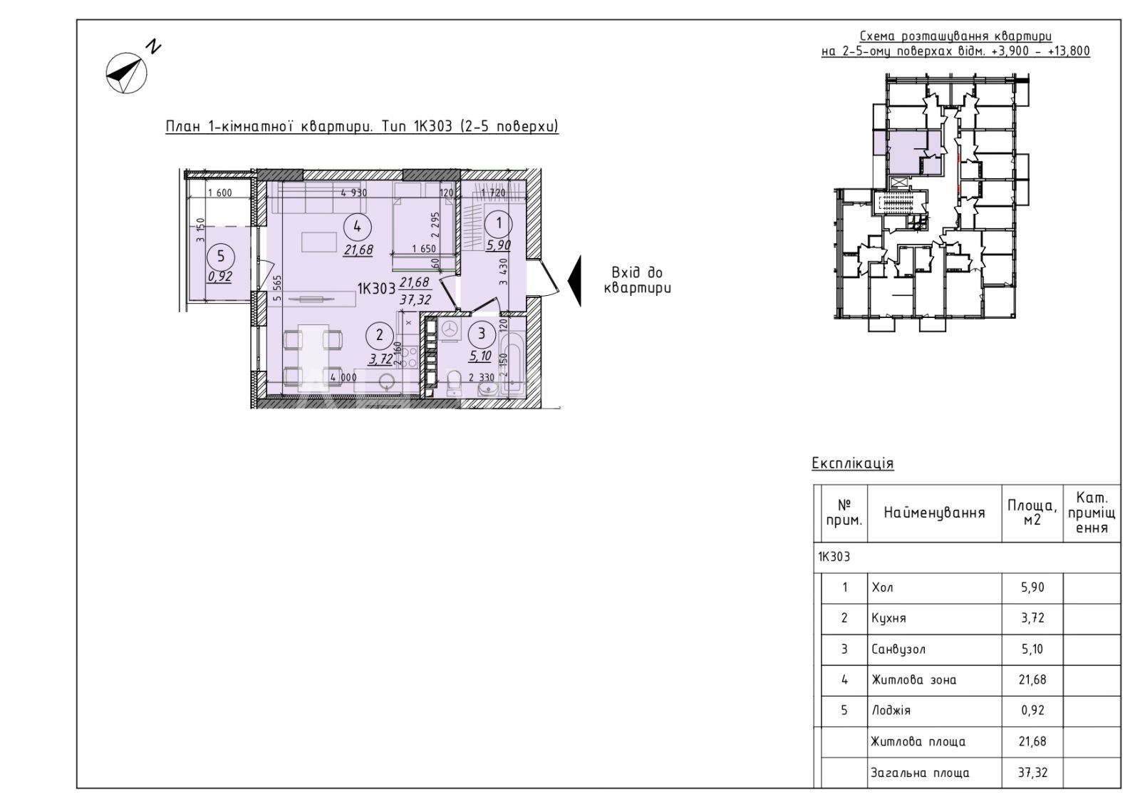
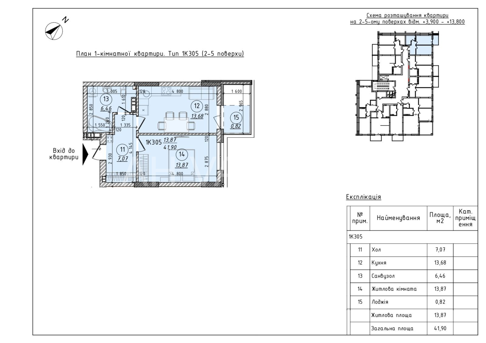
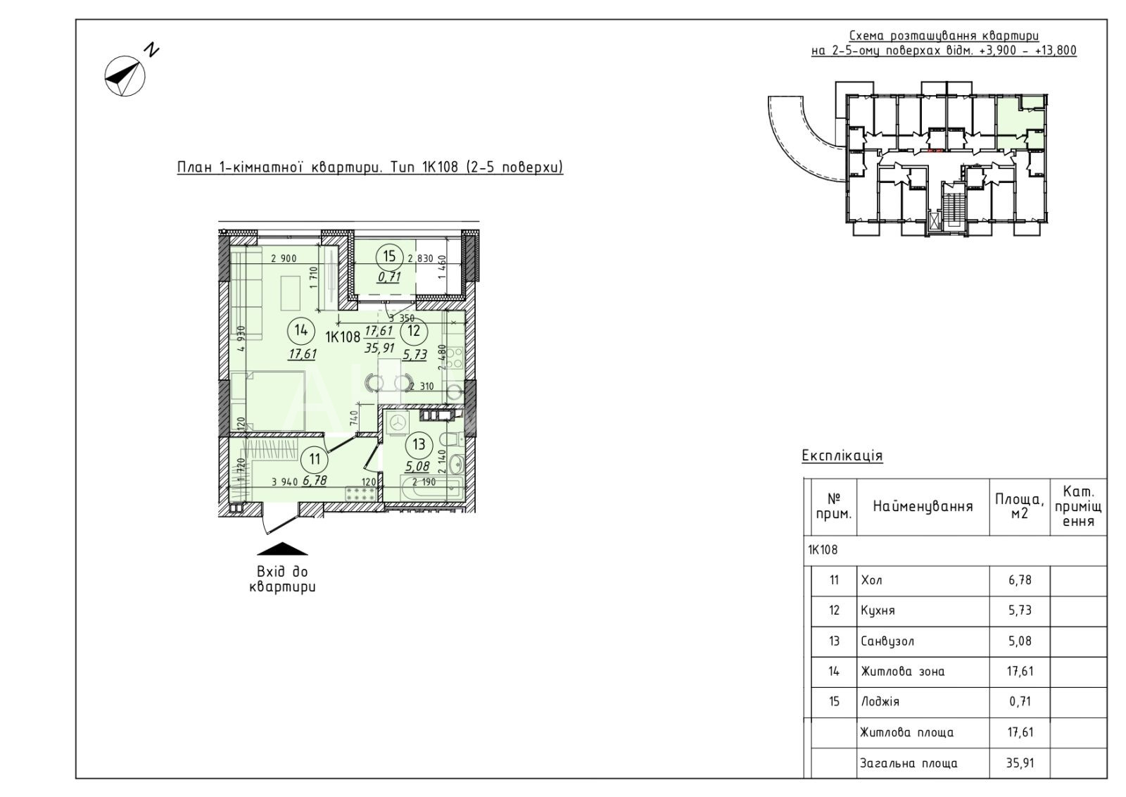
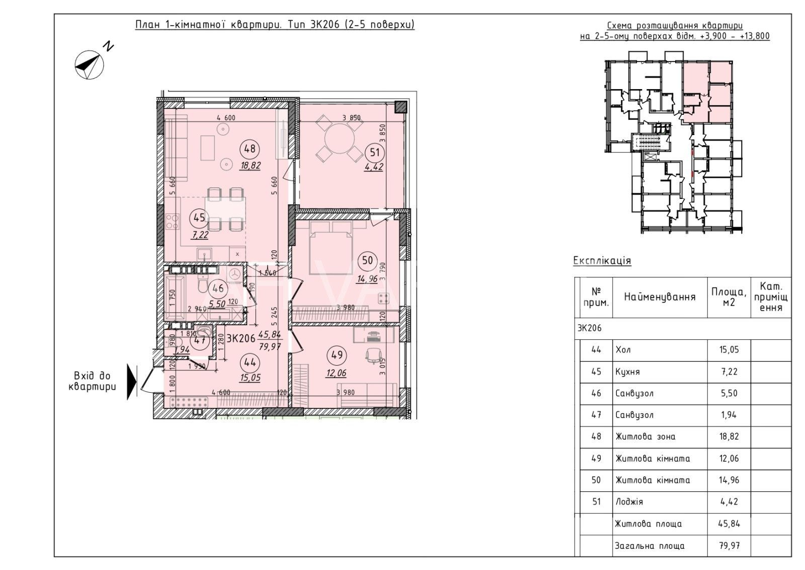
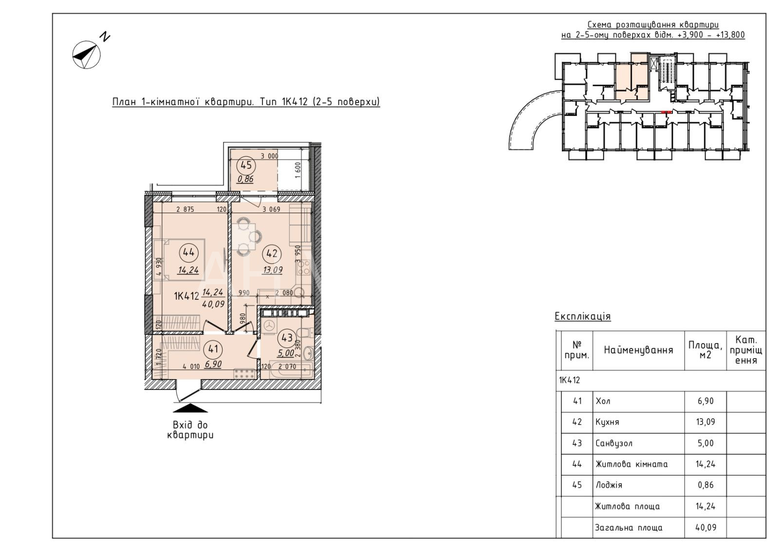
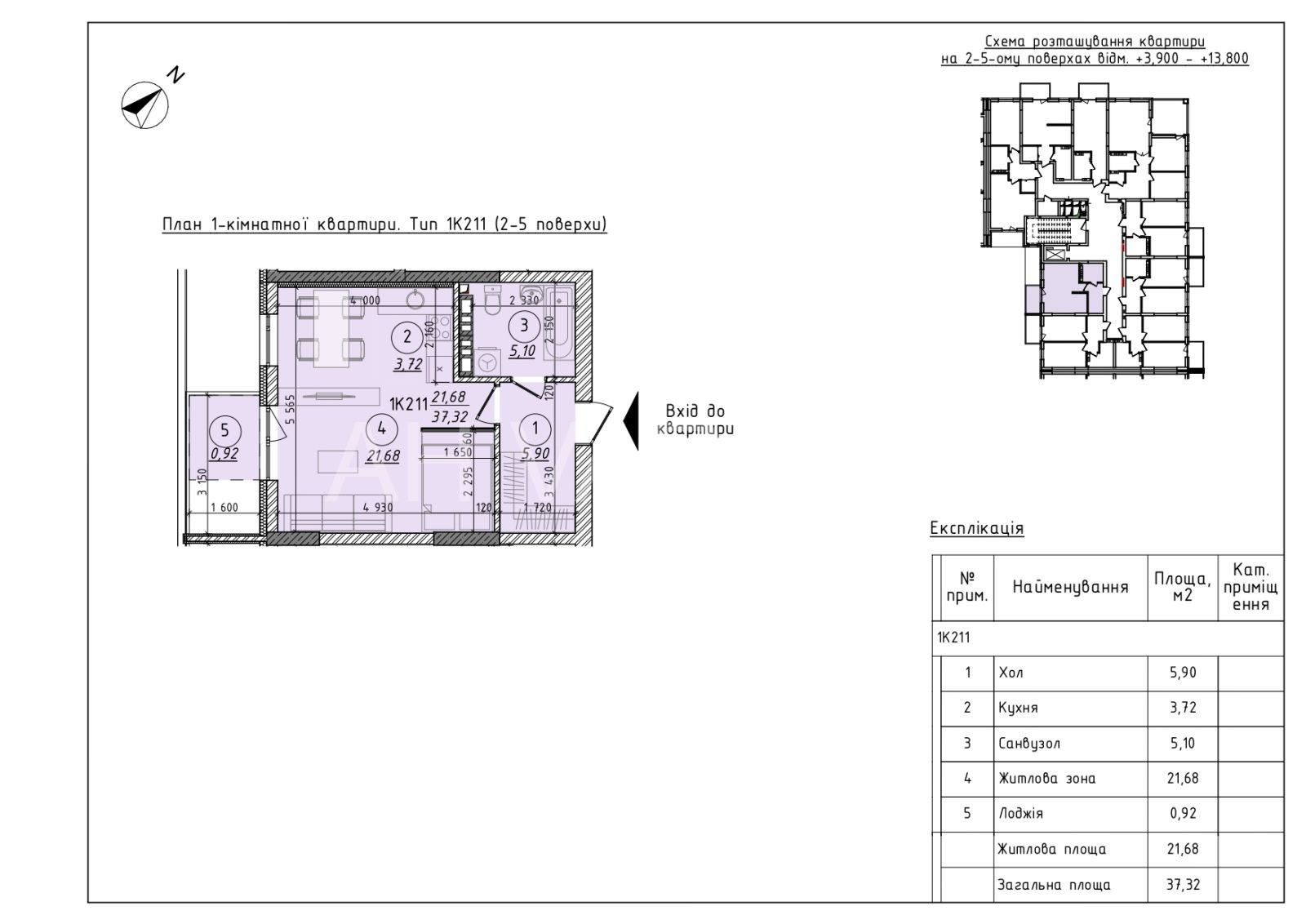
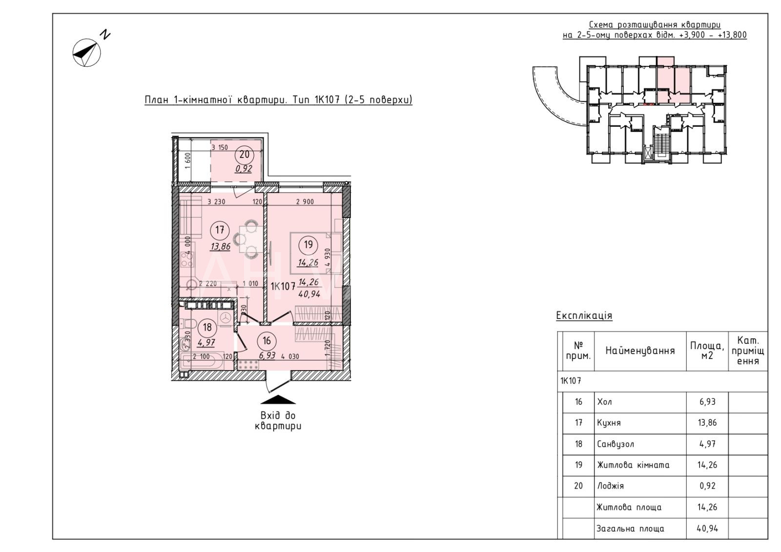
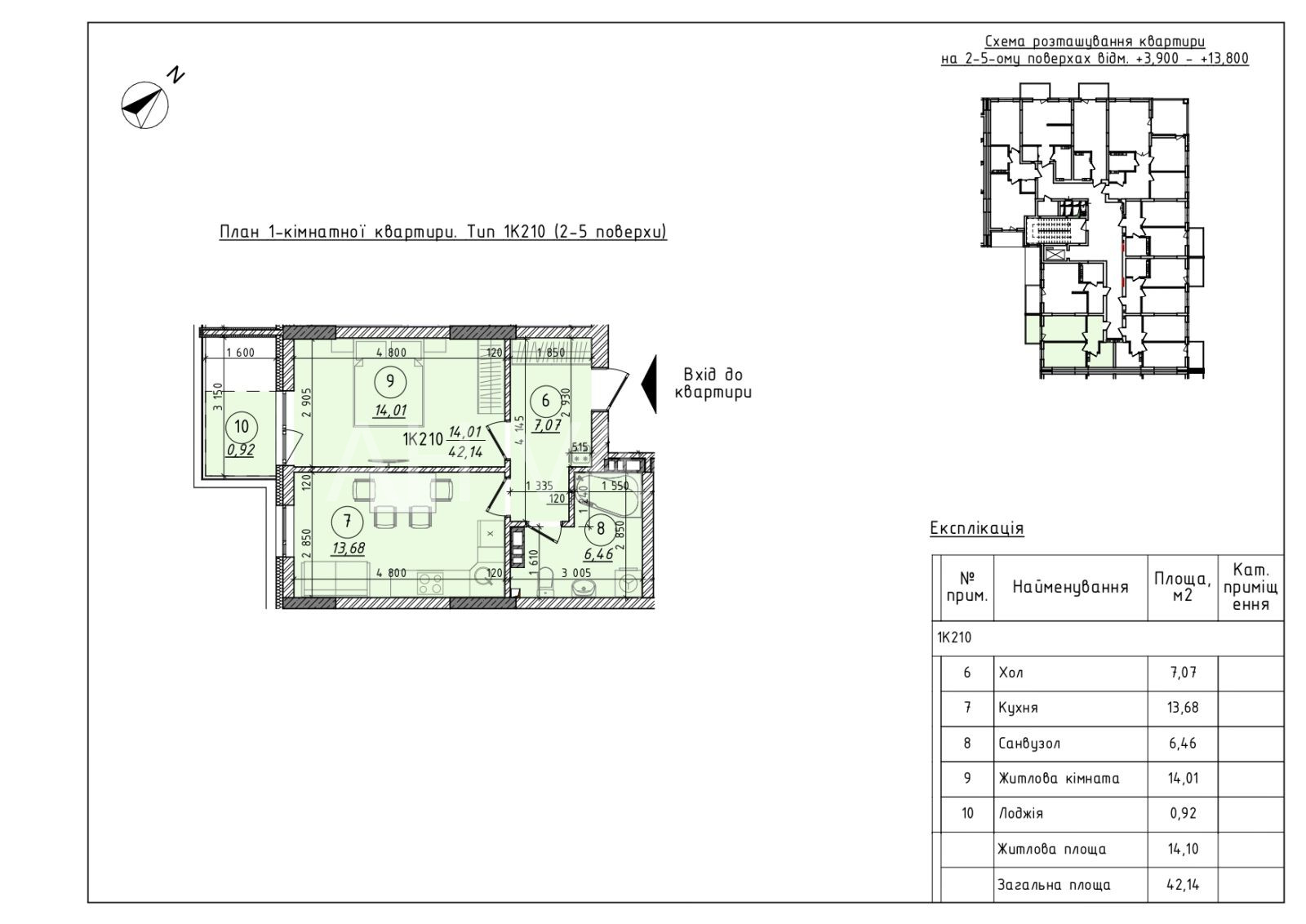
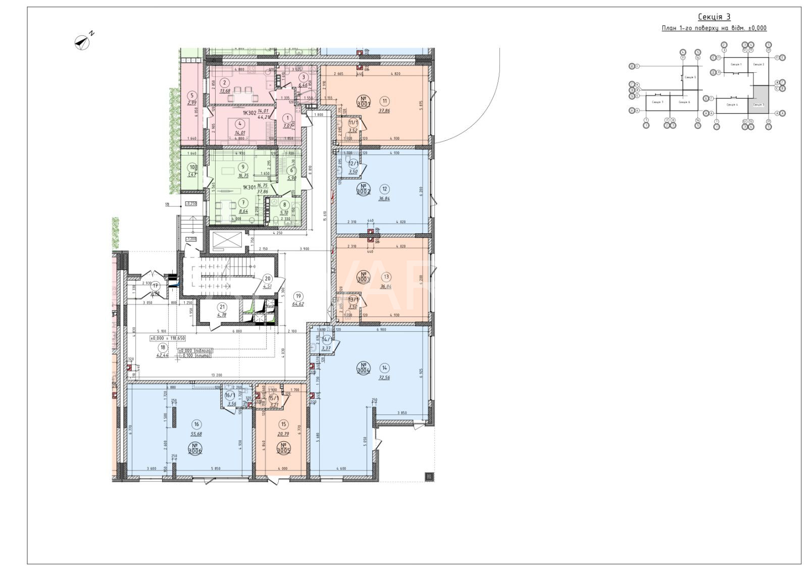
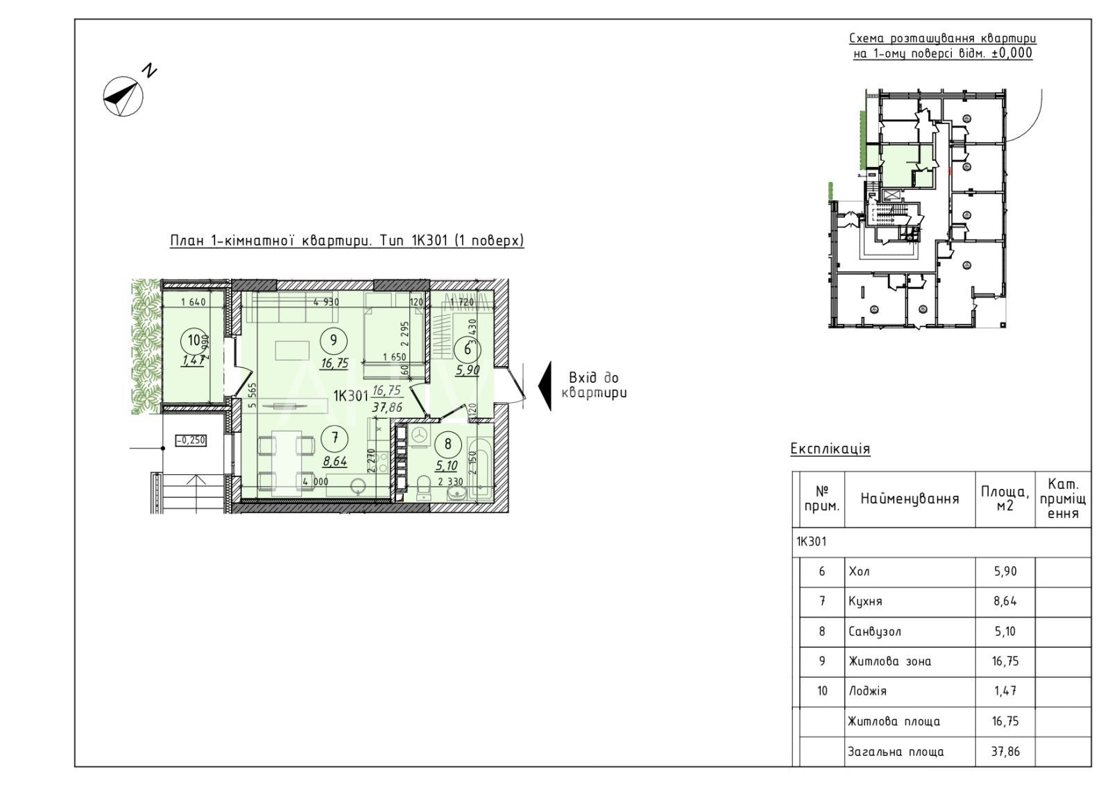
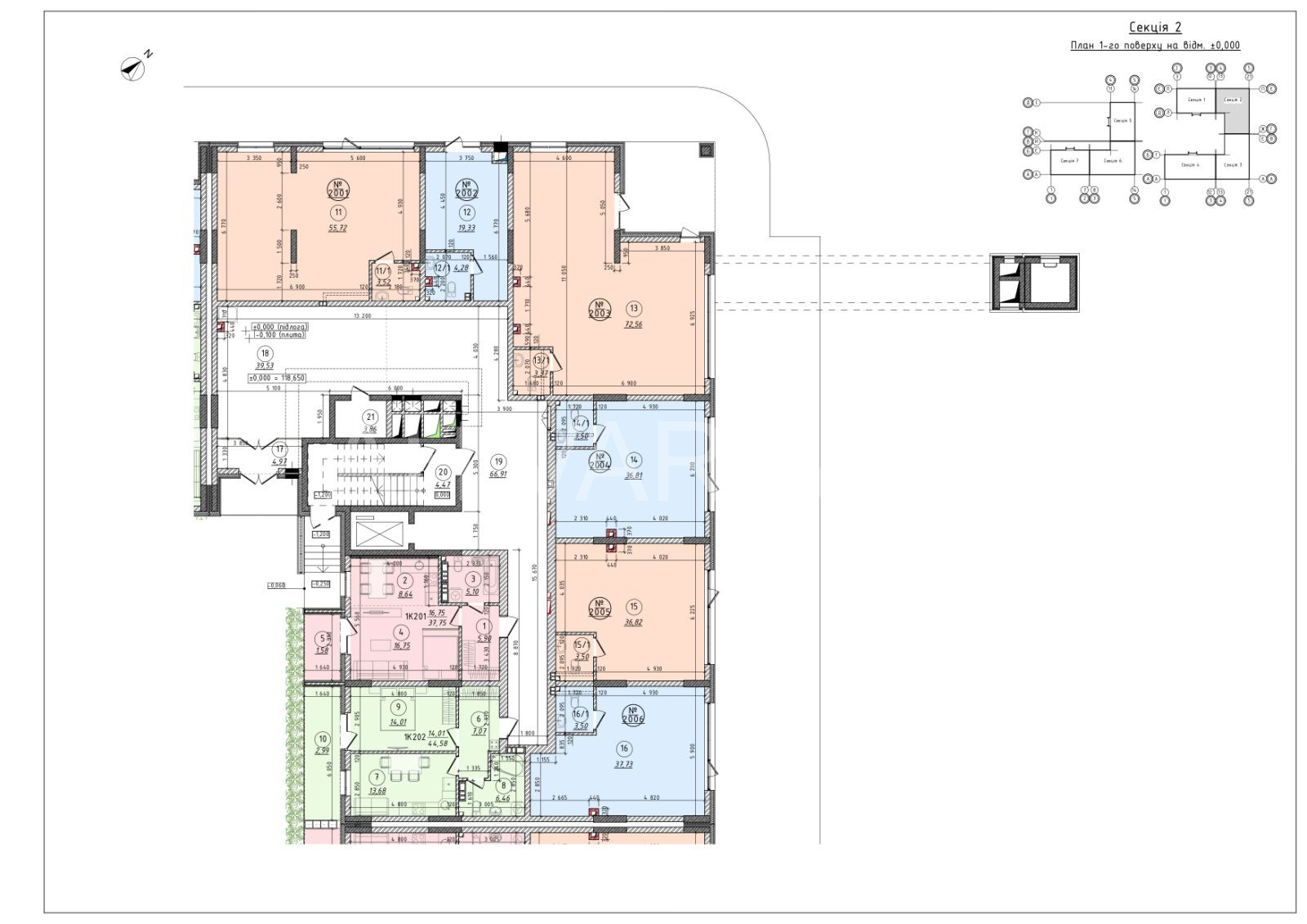
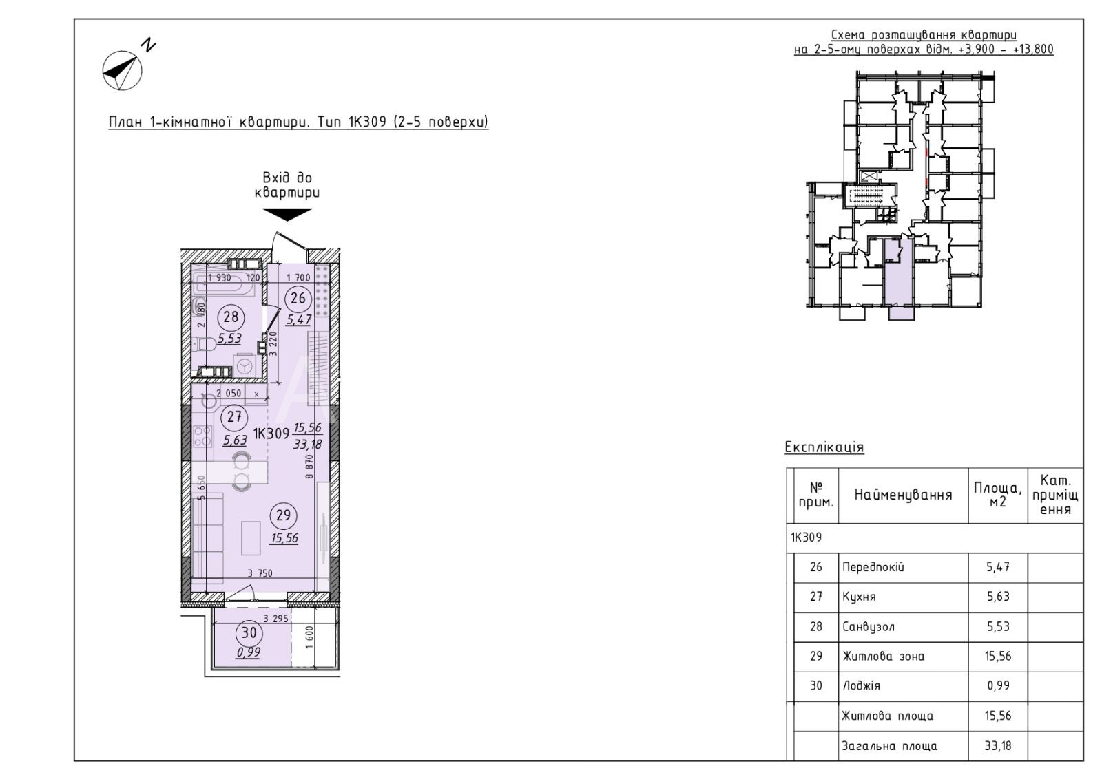
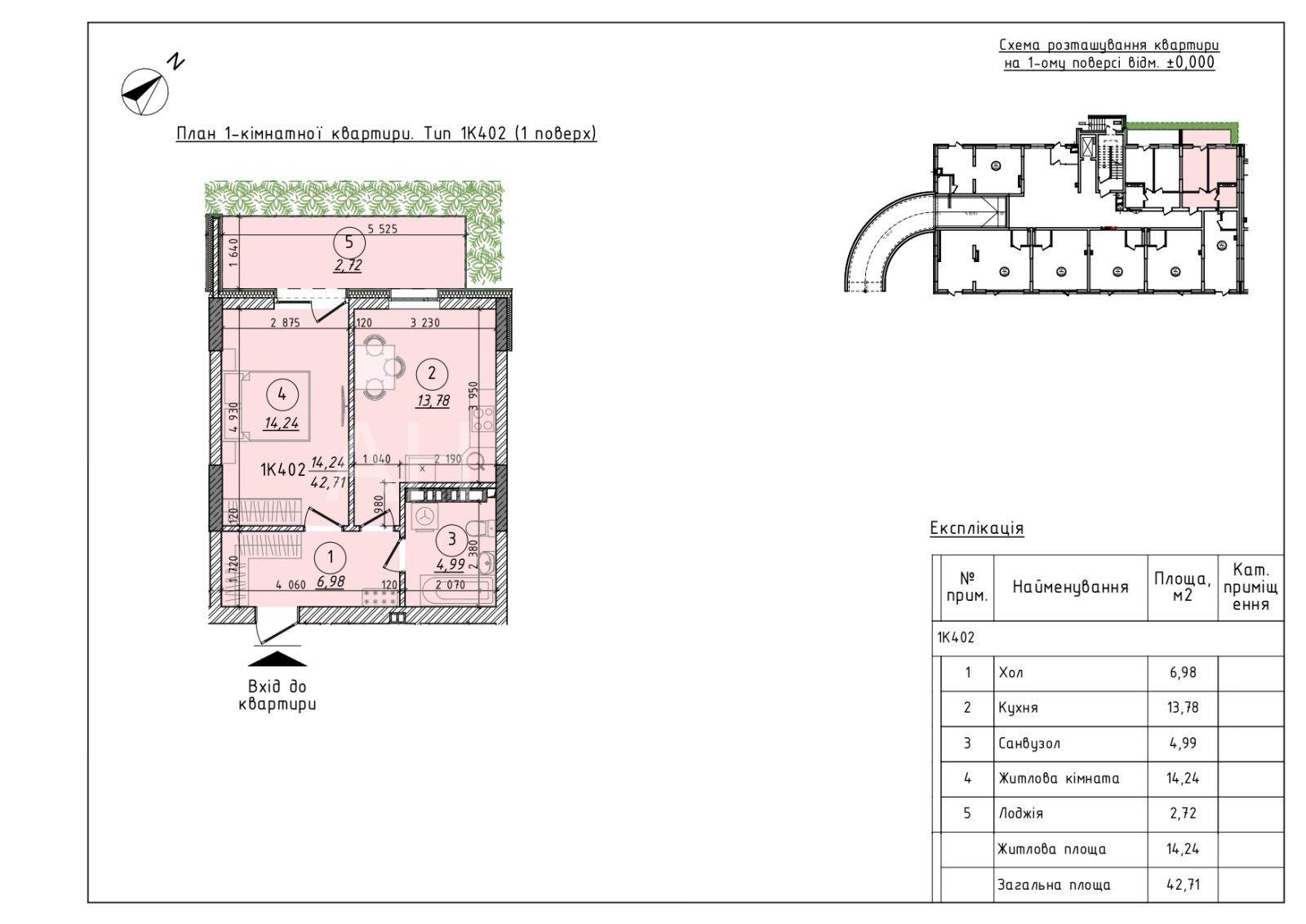
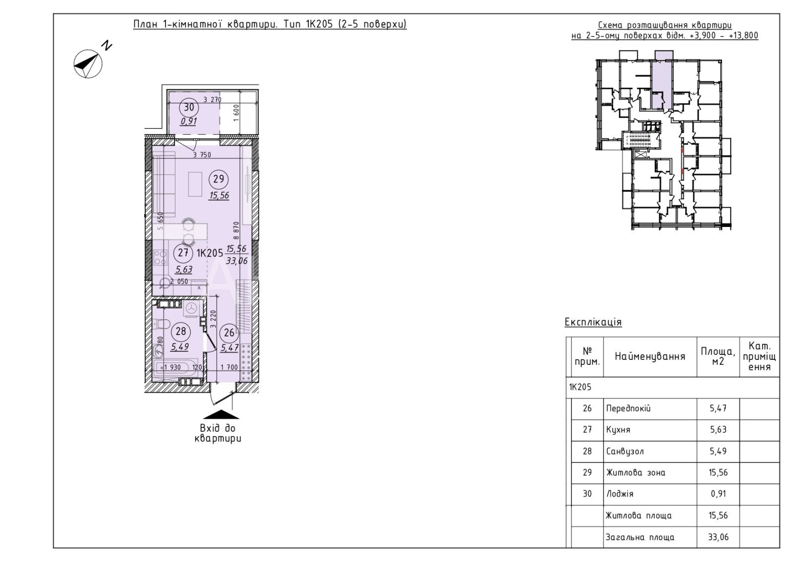
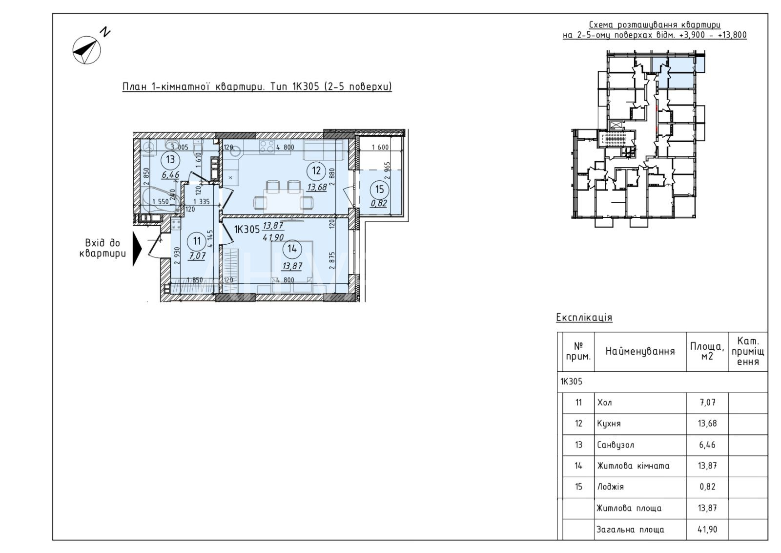
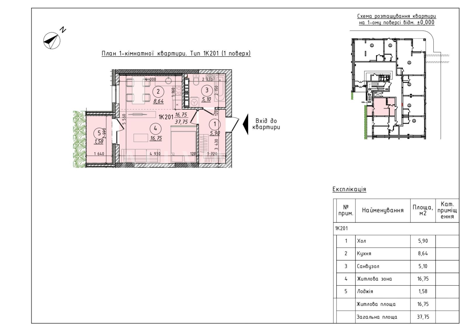
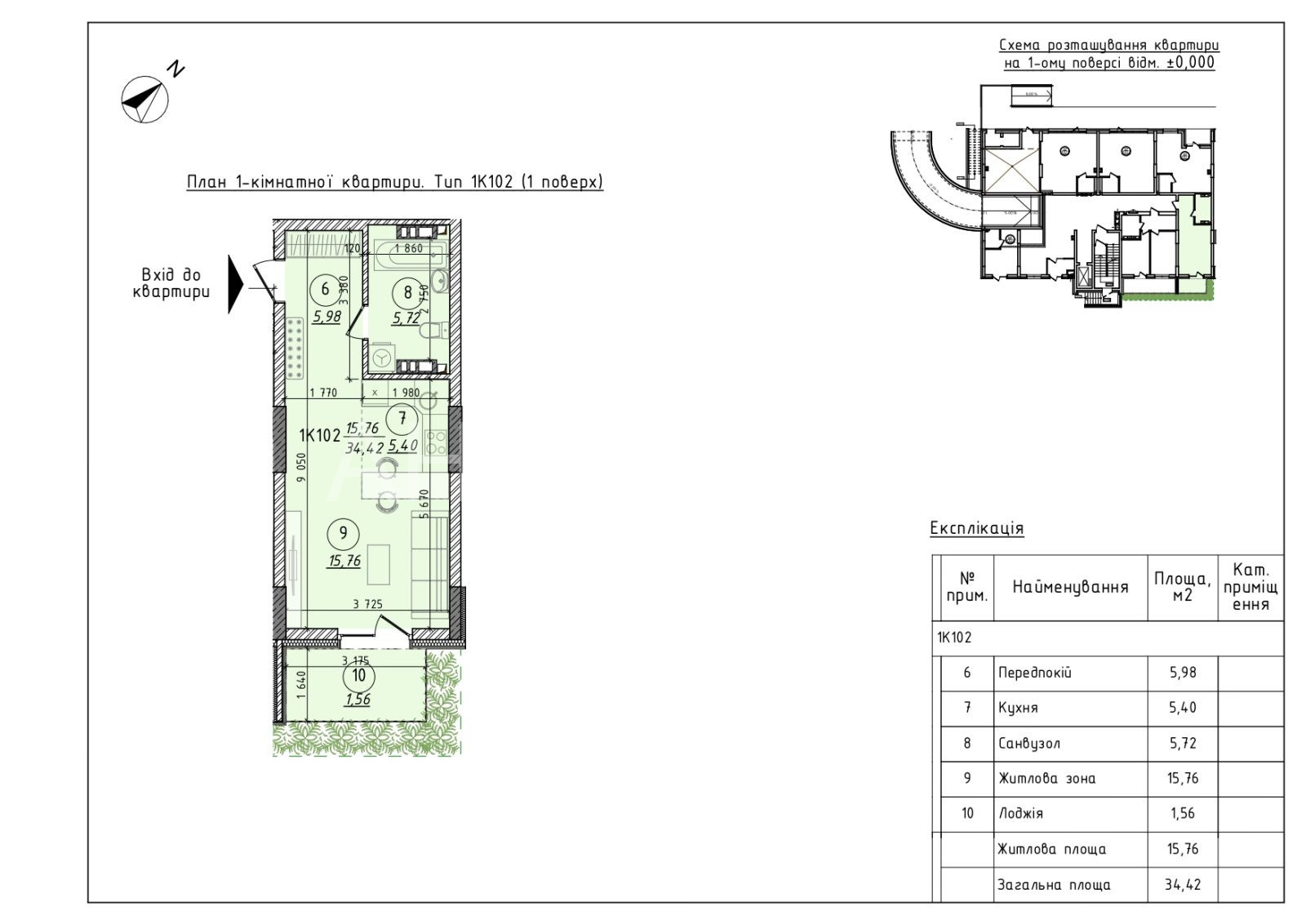
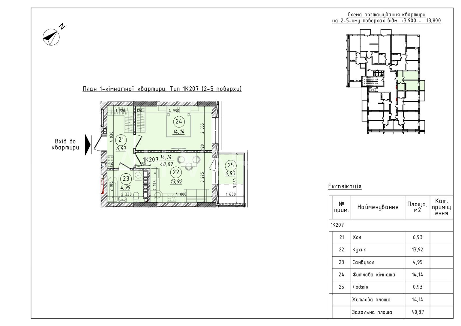
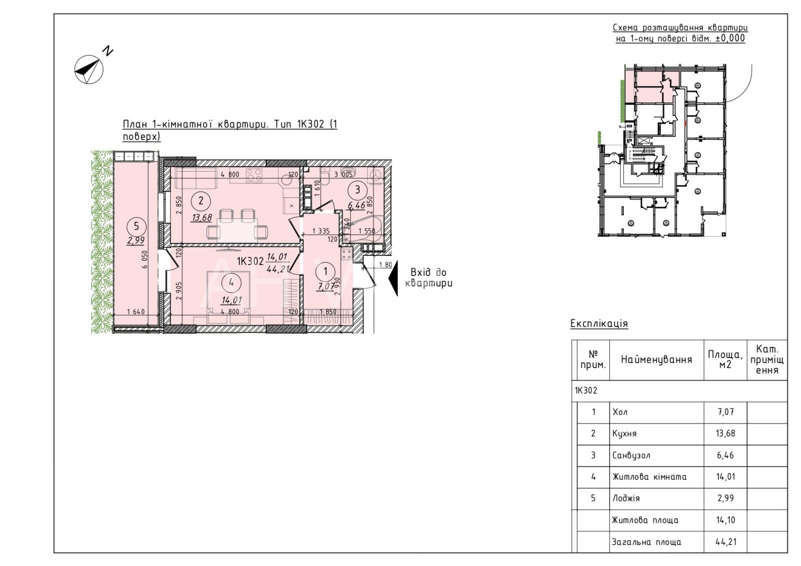
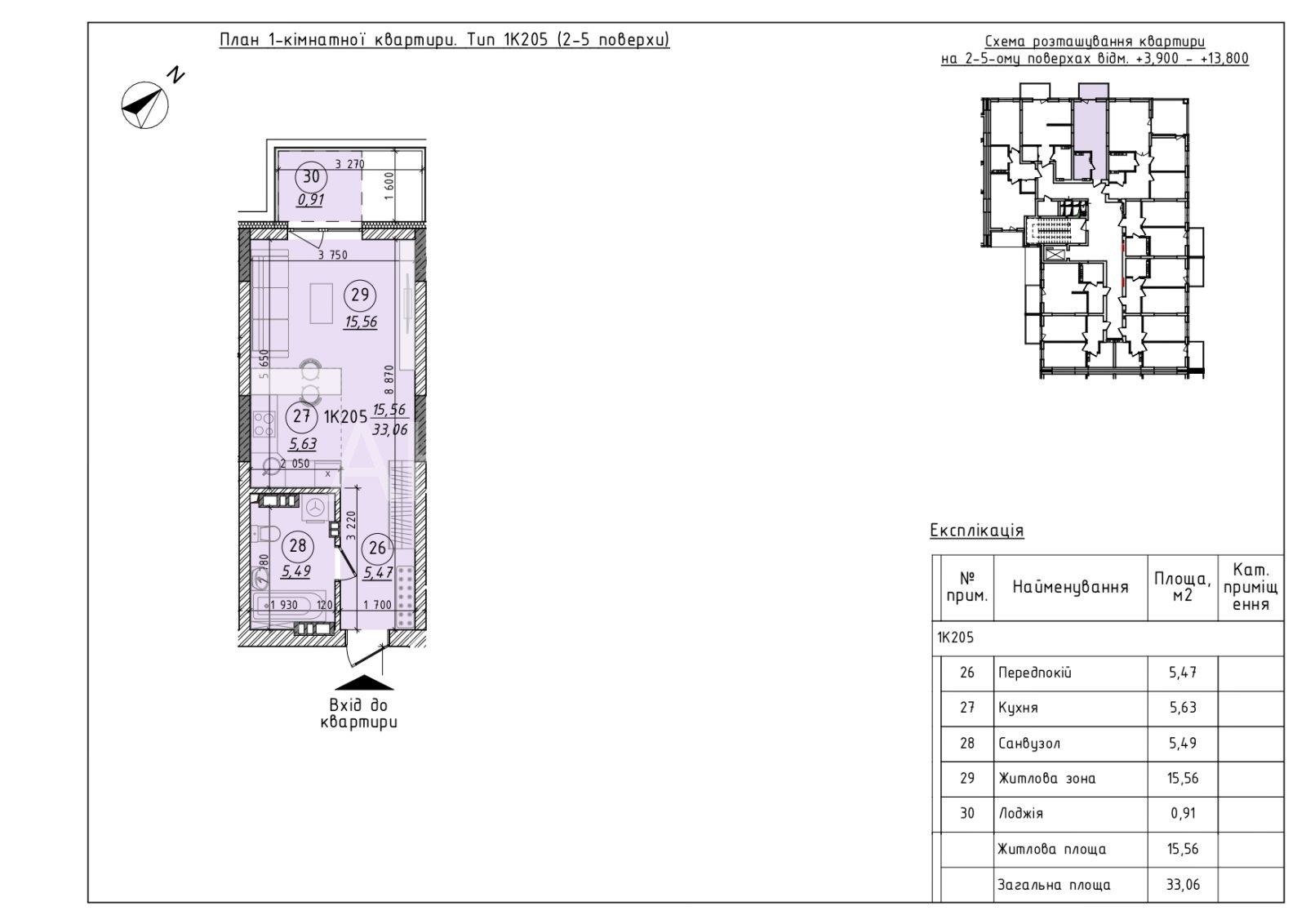
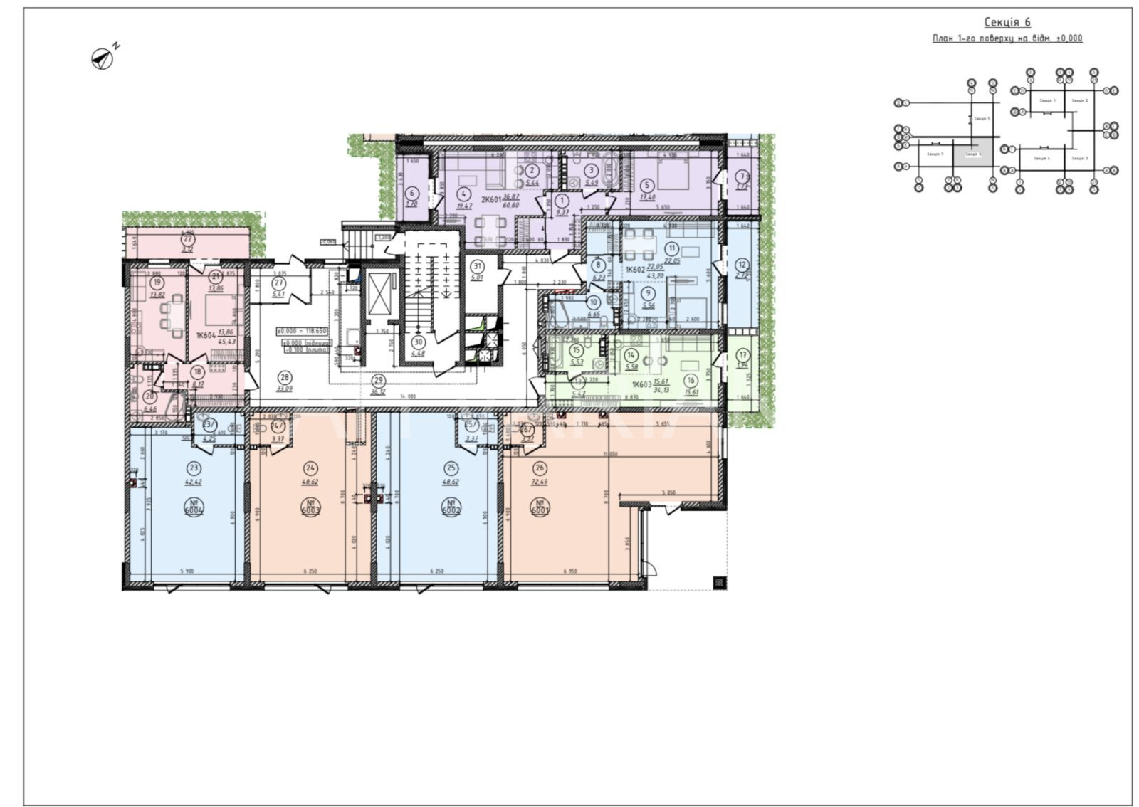
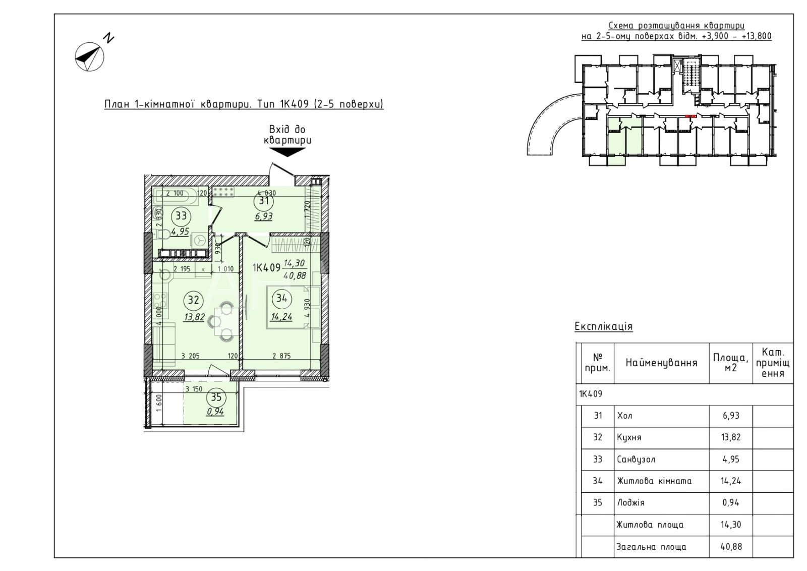
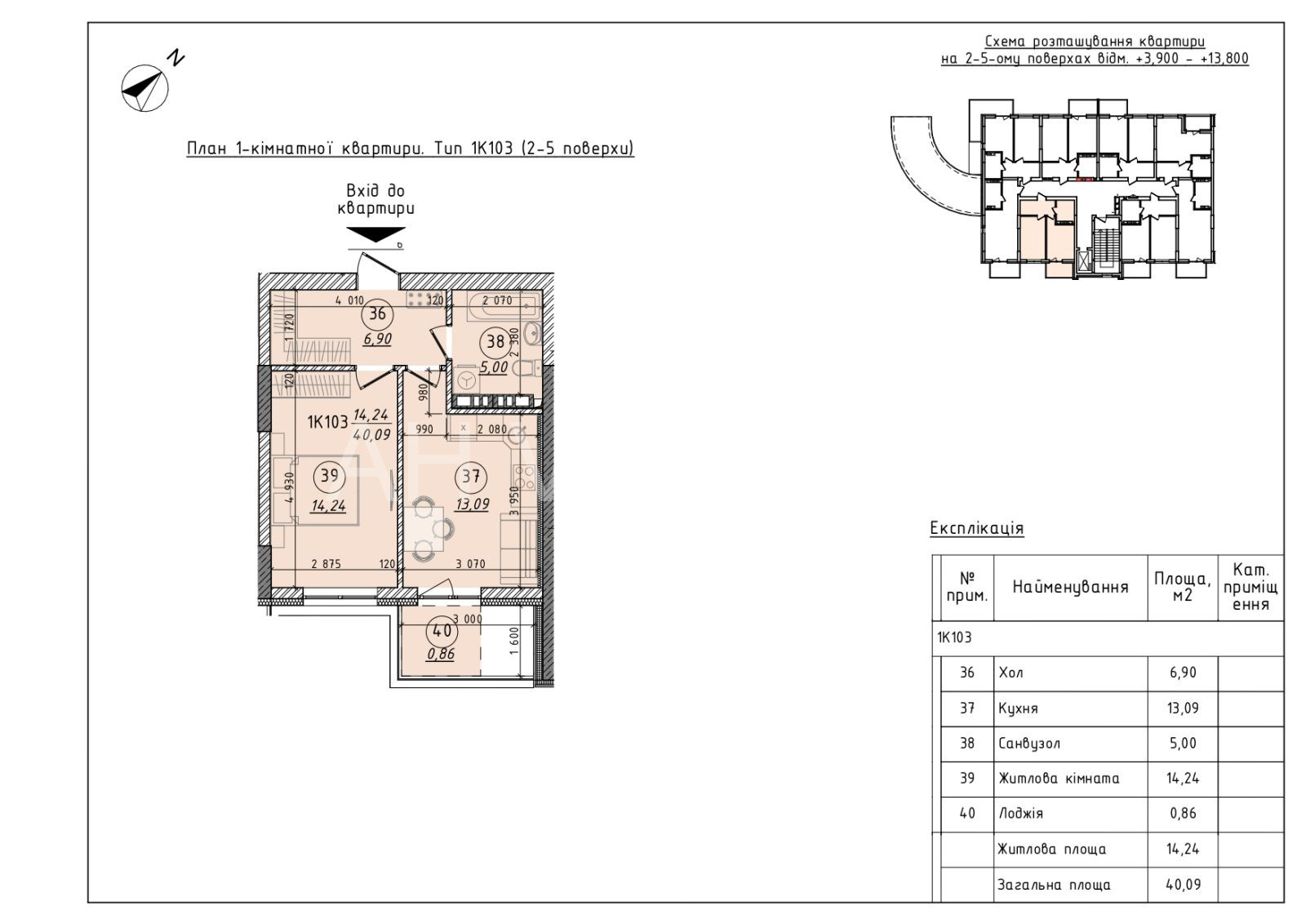
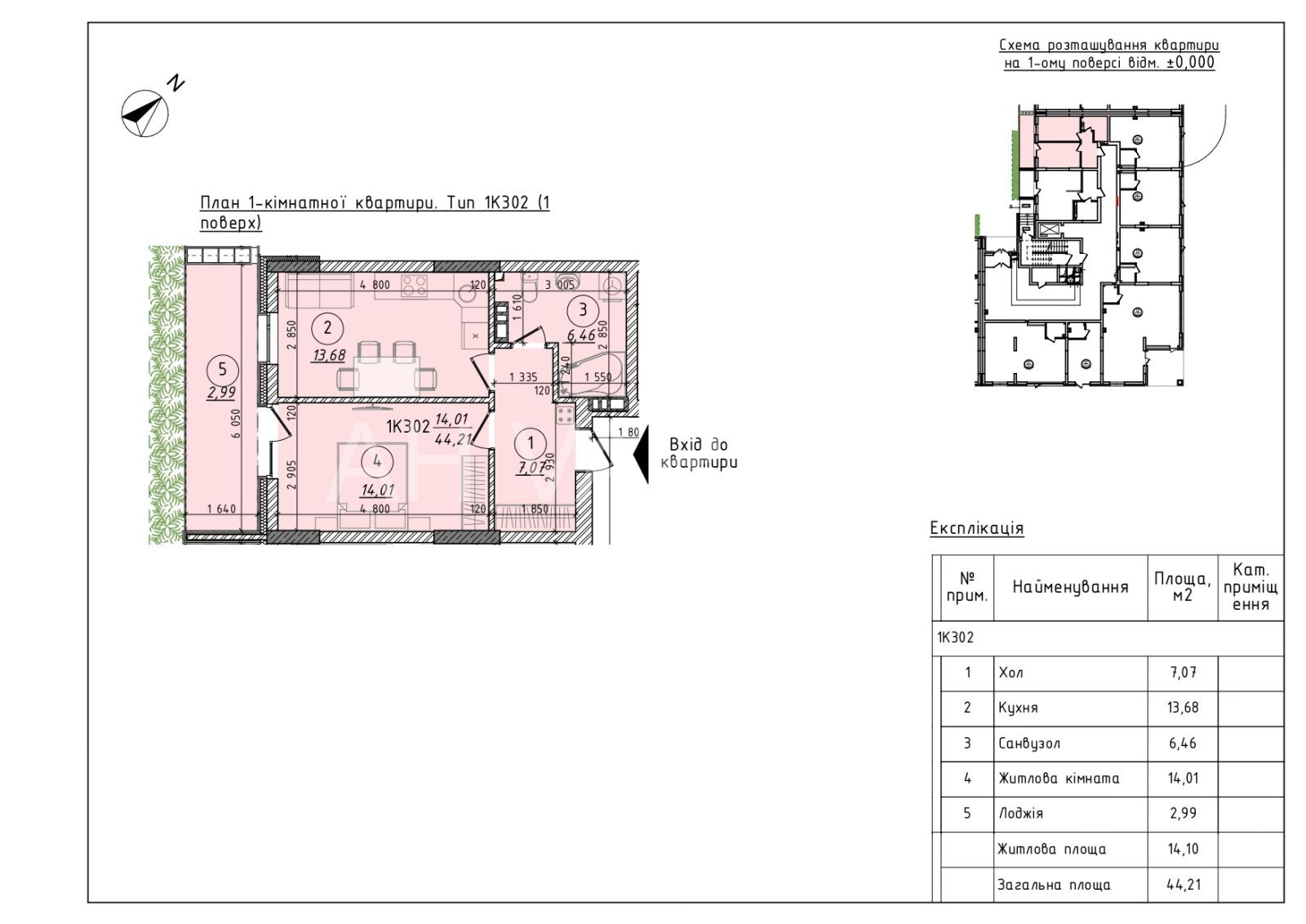
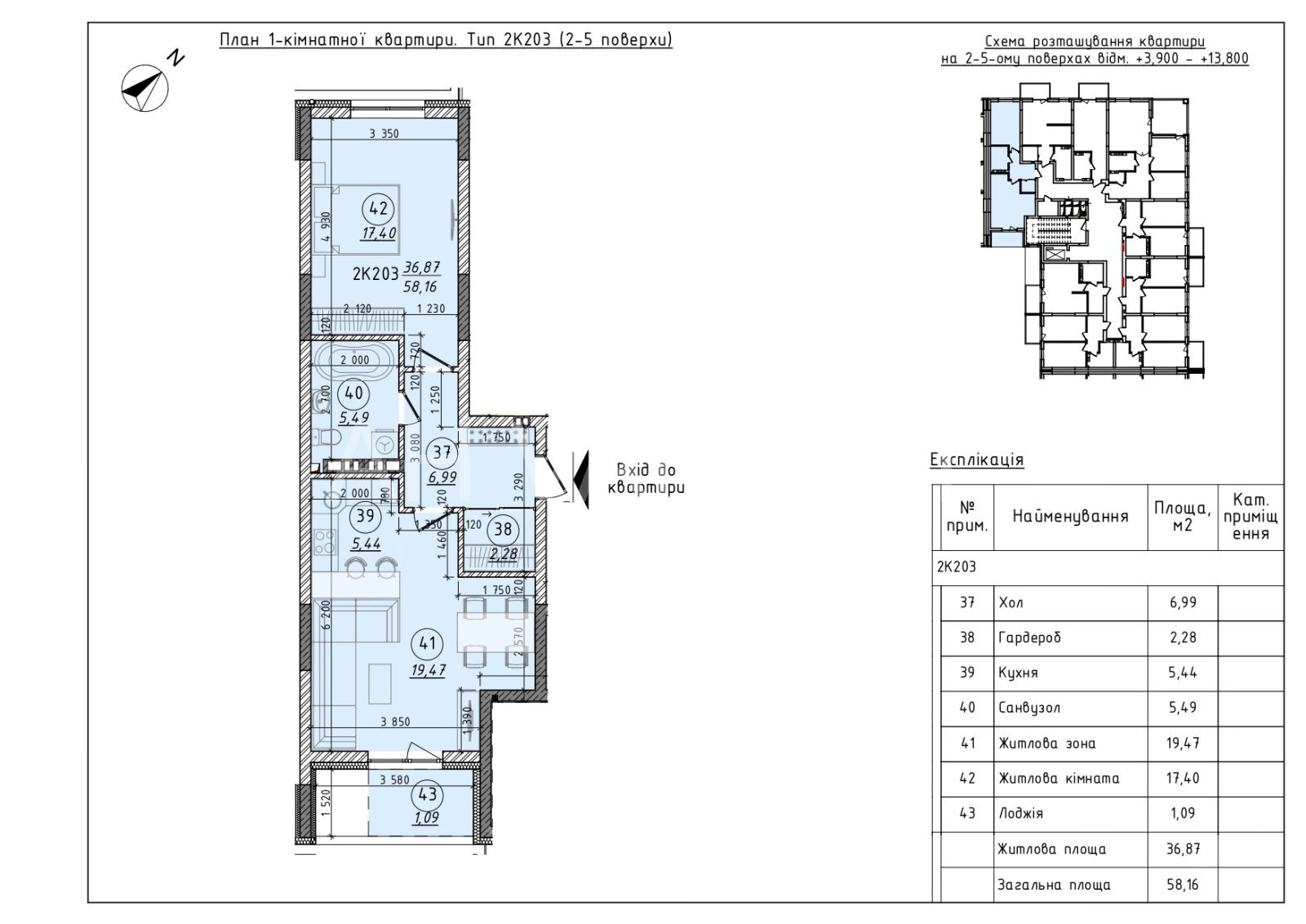
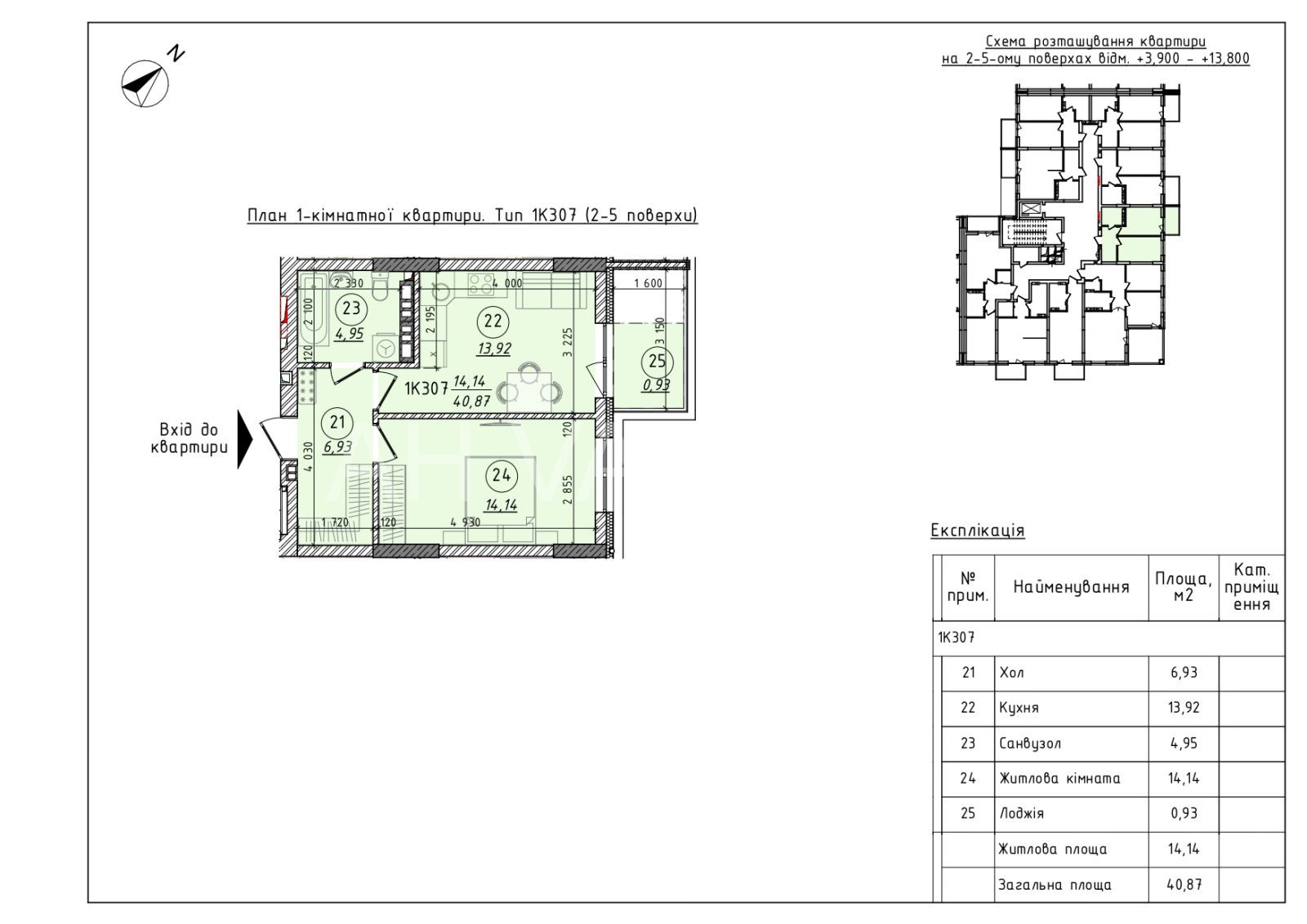
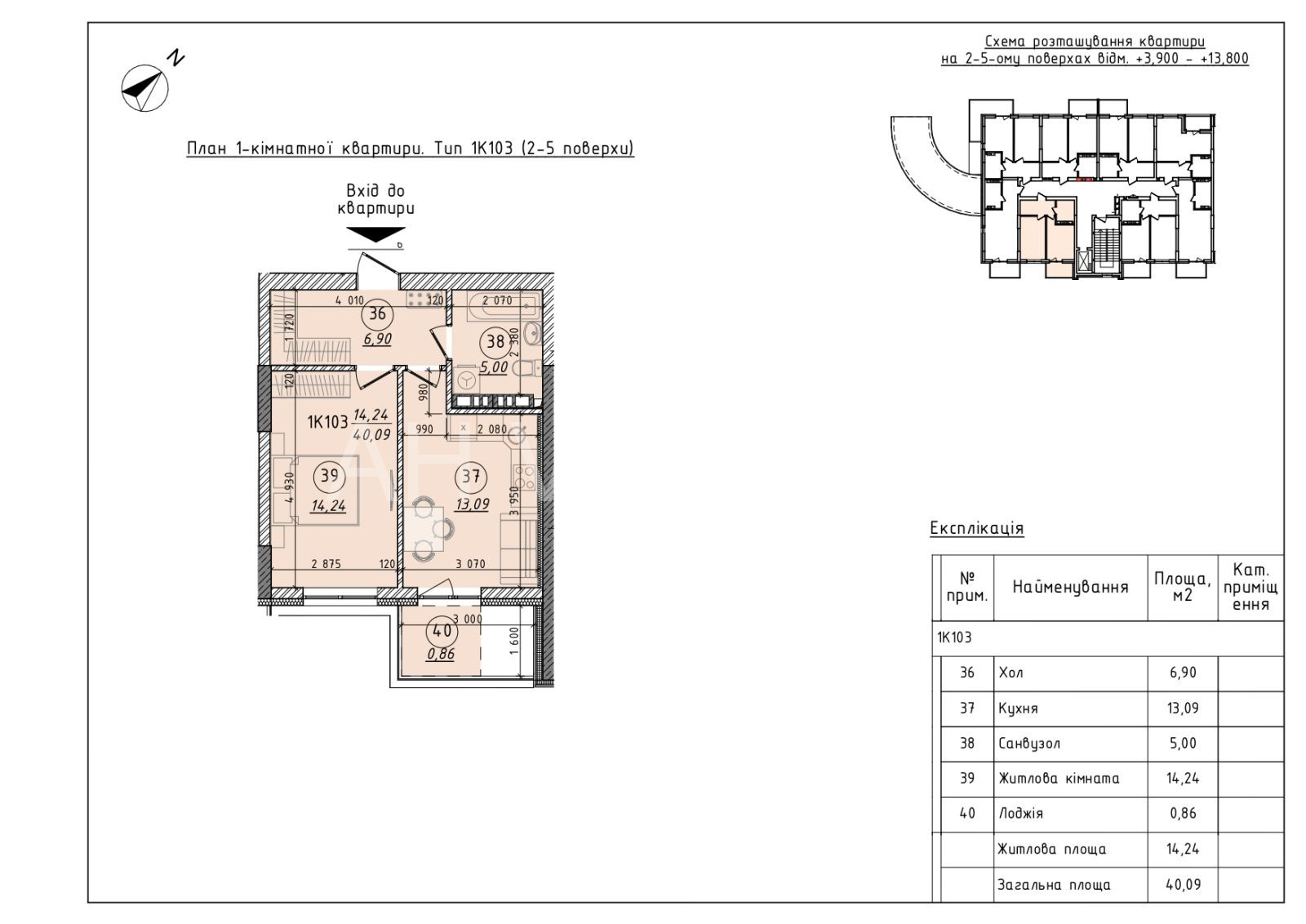
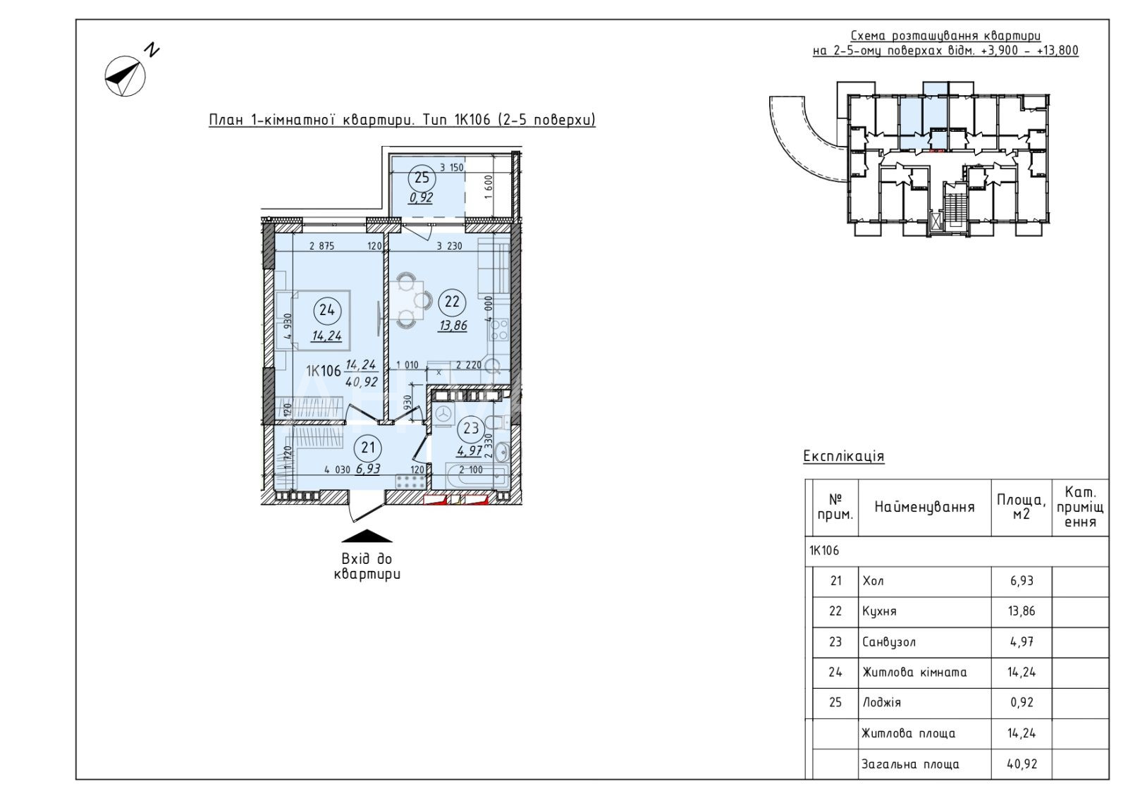
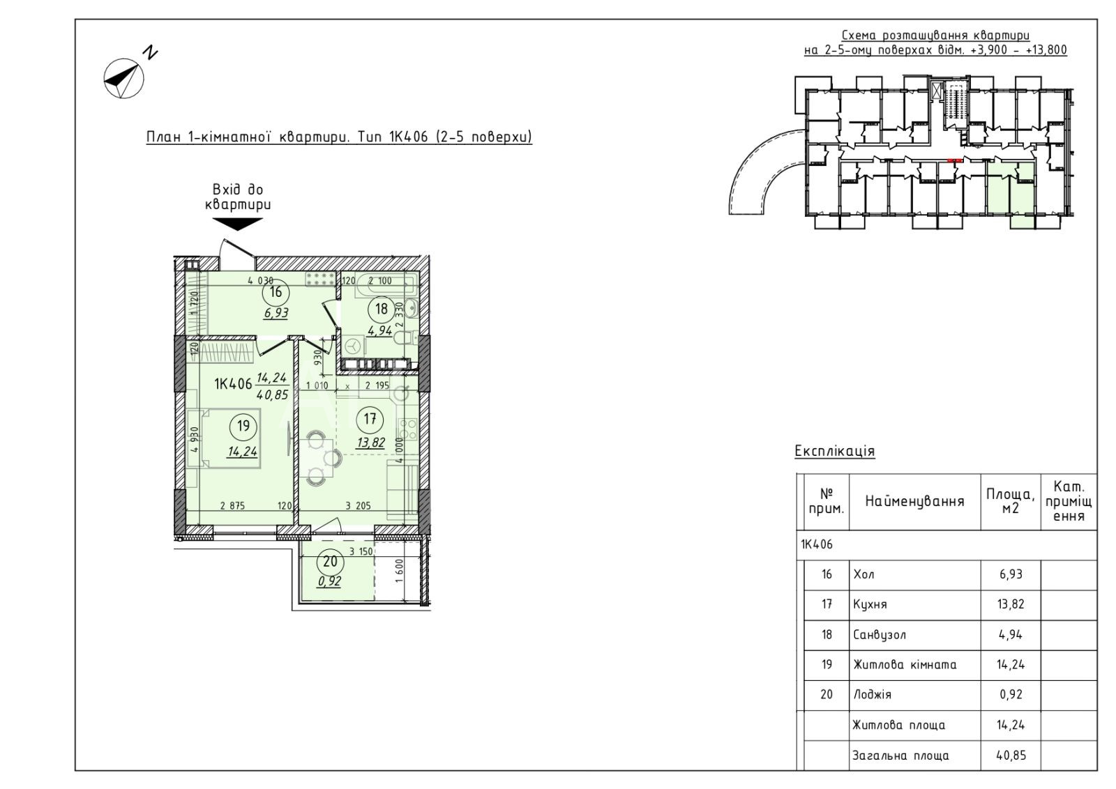
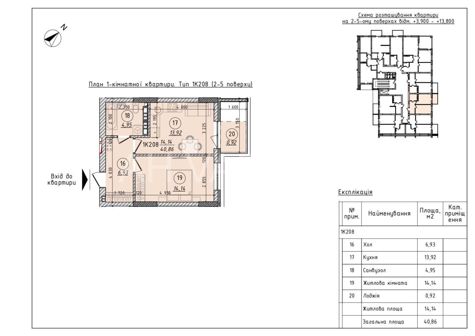
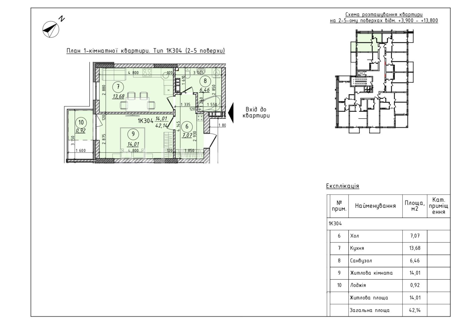
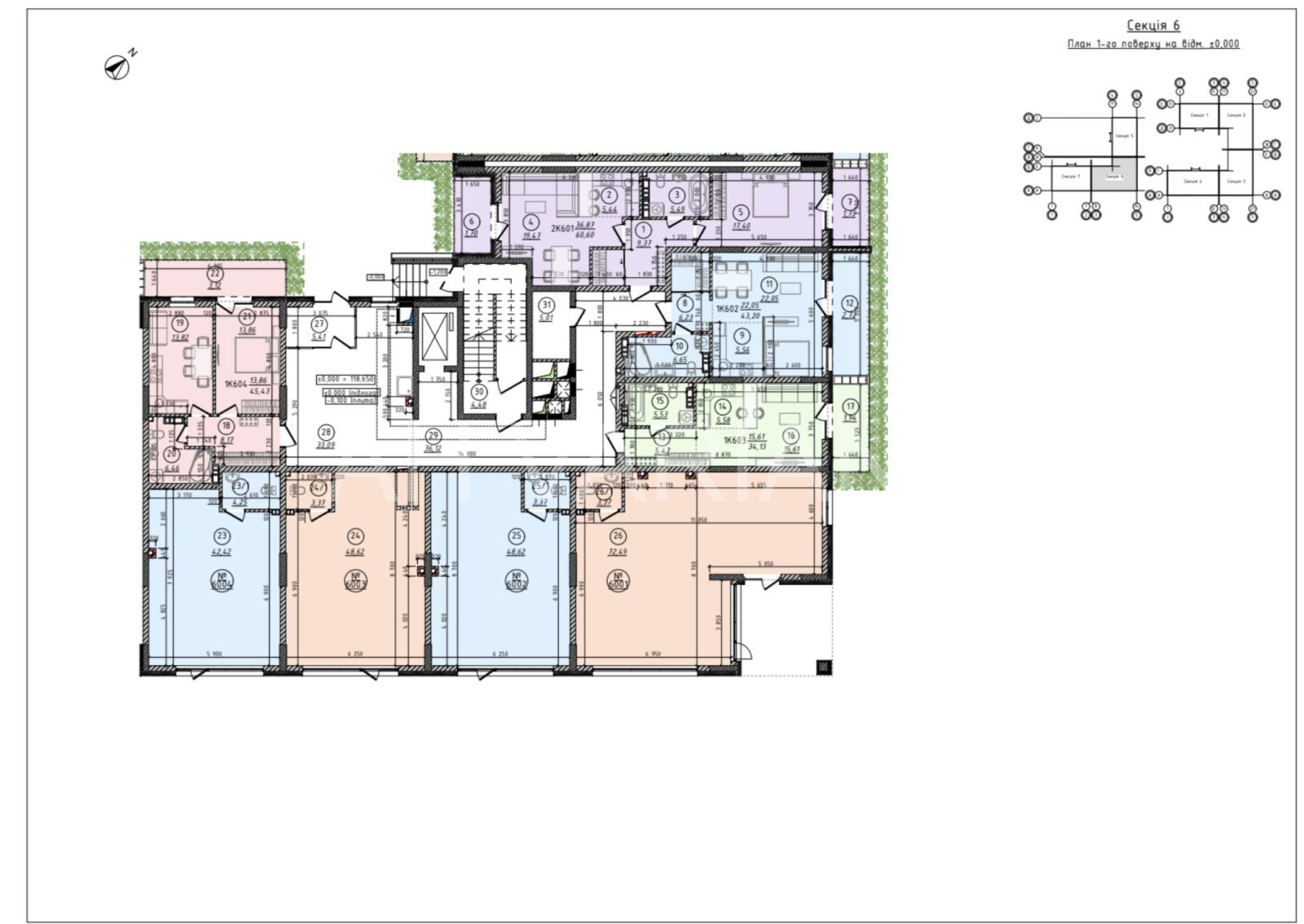
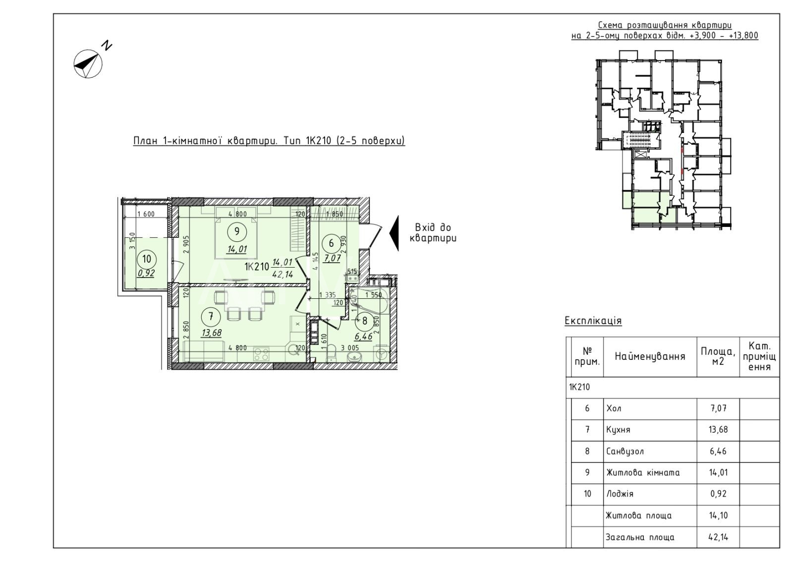
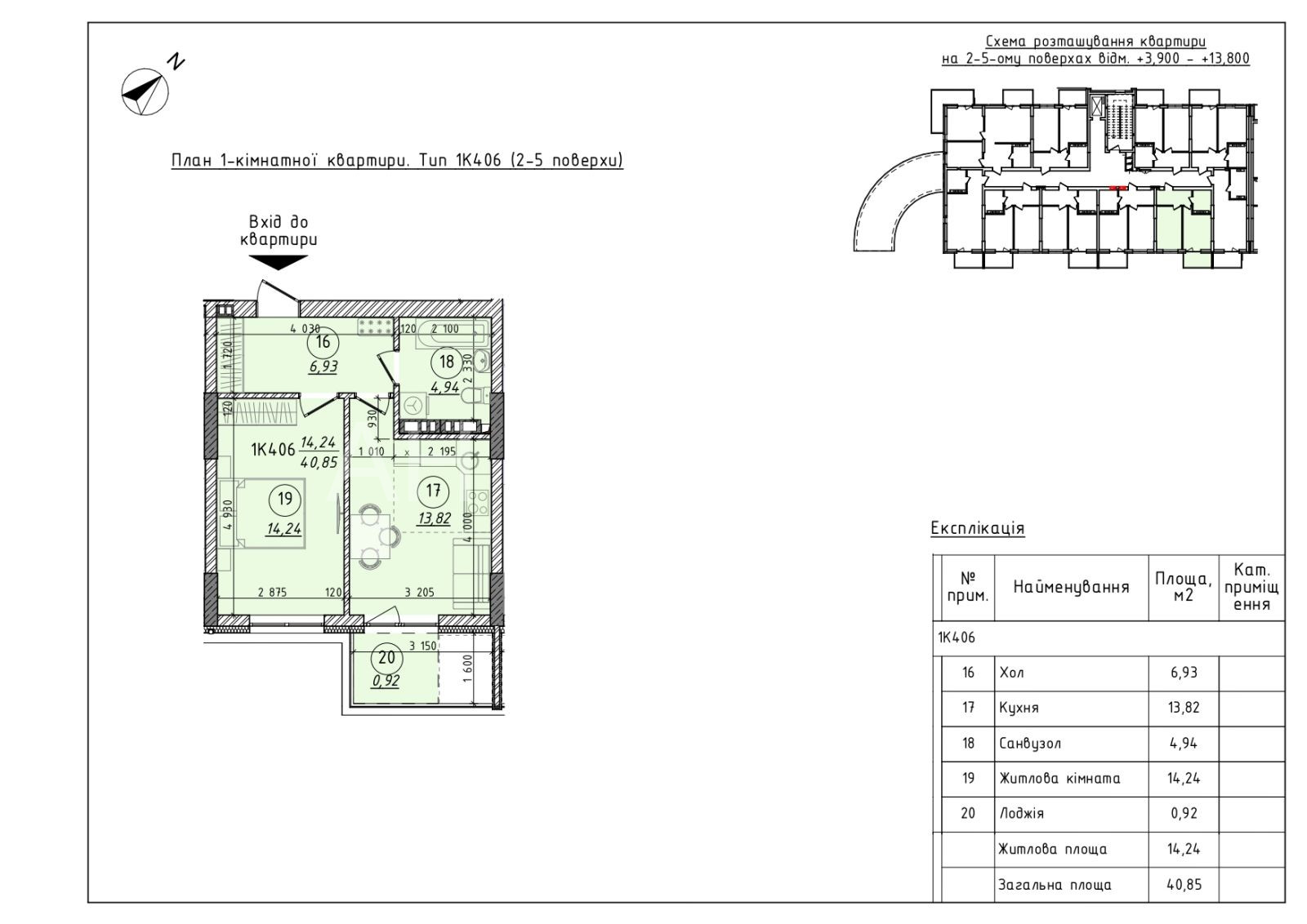
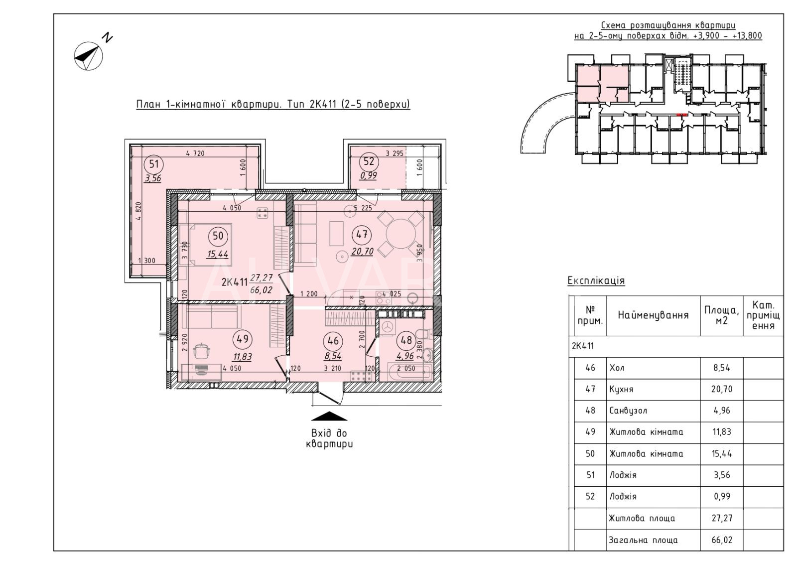
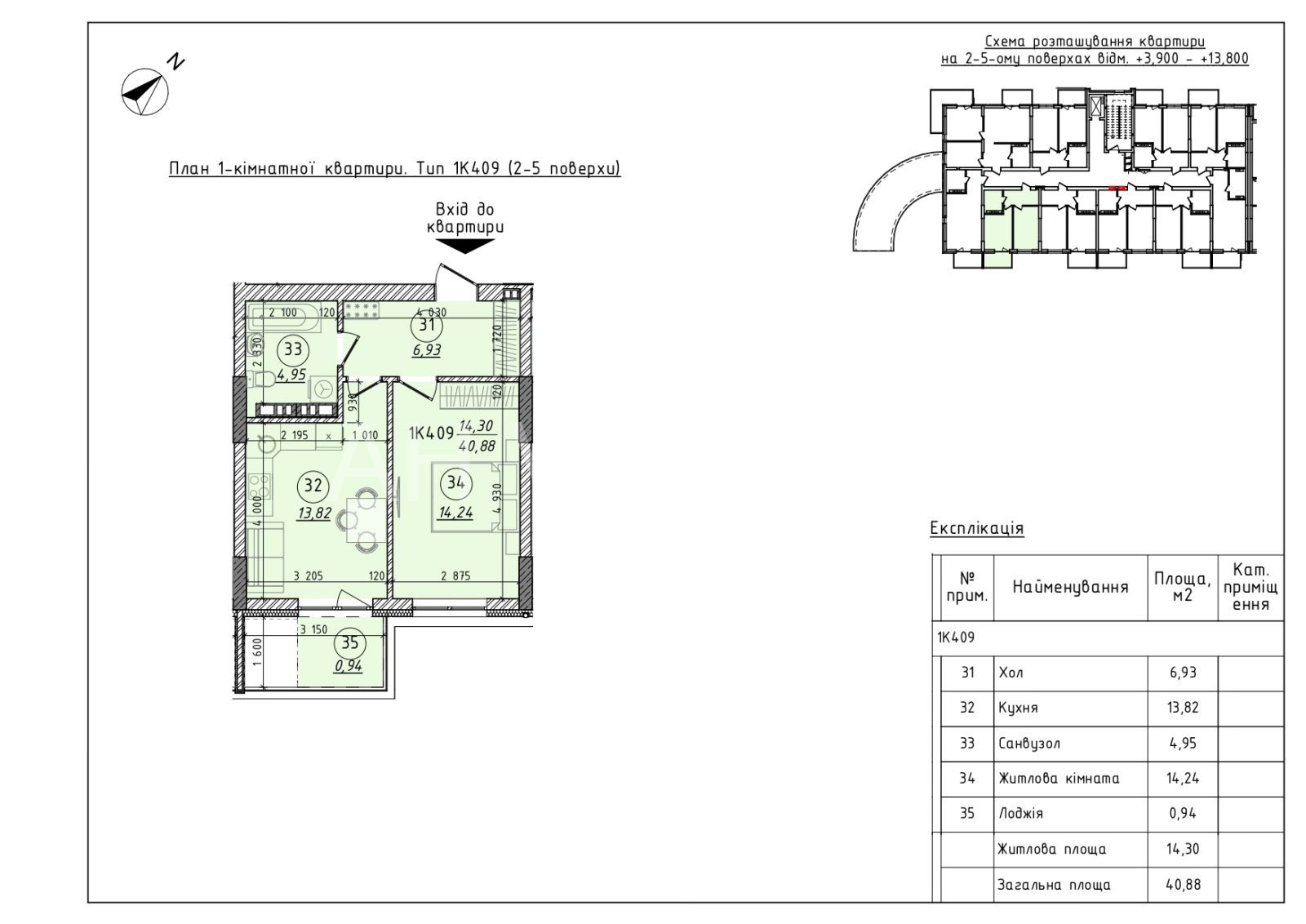
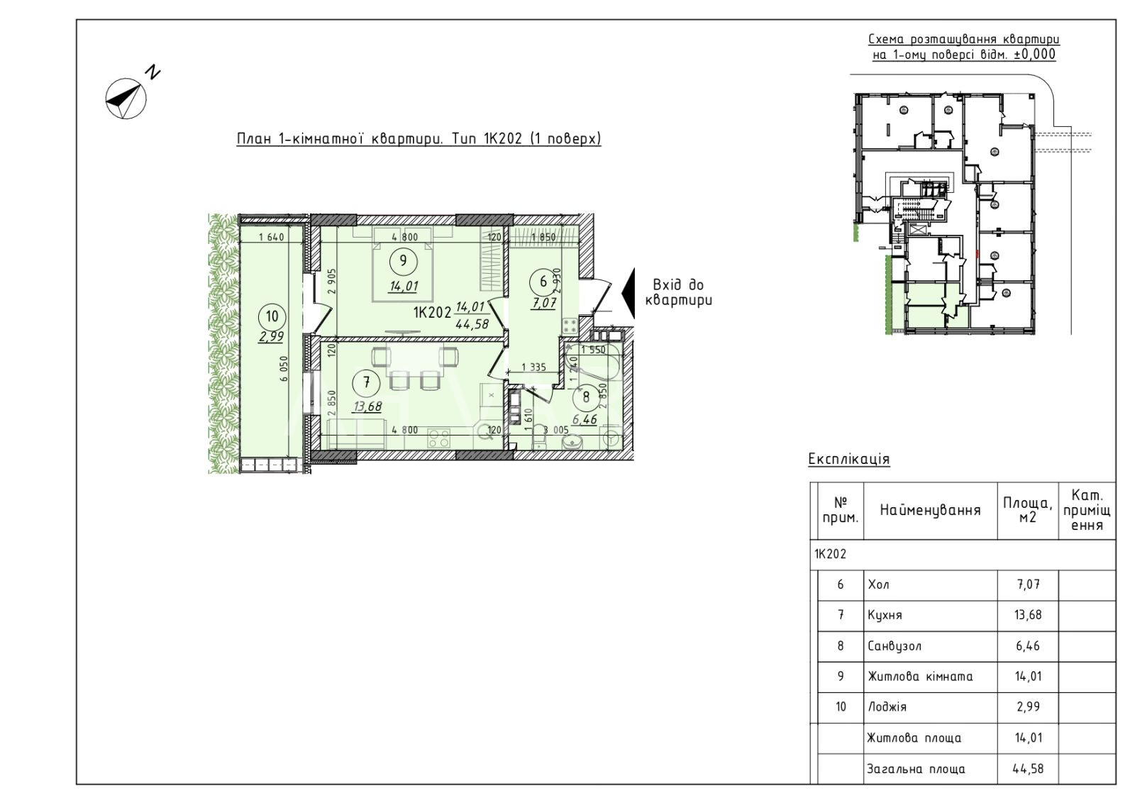
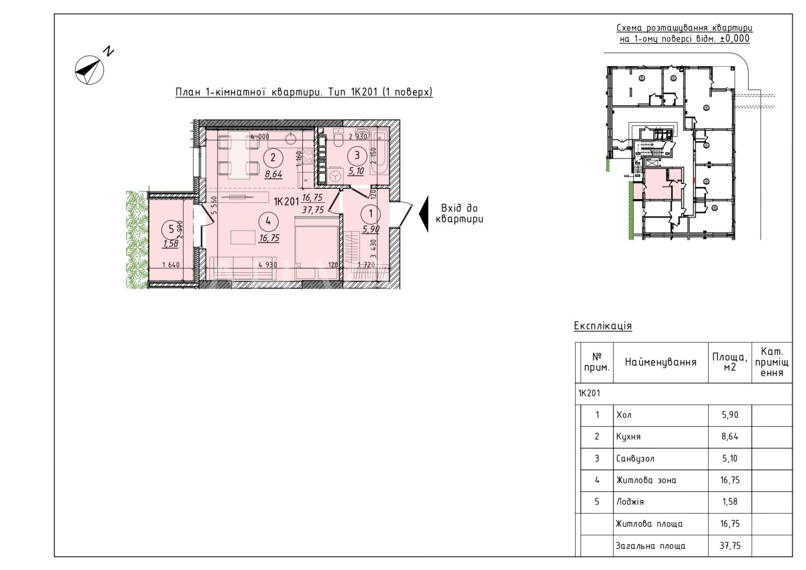
До вашої уваги пропонуємо такі квартири:
-однокімнатні;
-двокімнатні:
-трикімнатні.
Також під час будівництва є можливість змінити планування.
Ціна при 100% оплаті 1100 $/м.кв.
Ціна при 50% оплаті 1150 $/м.кв.
Ціна при 30% оплаті 1200 $/м.кв.
Можна без внесення задатку.
Розтермінування надається до здачі об’єкту в експлуатацію.
Код: 35724
Тел.: (068)-131-57-88 ОФІС
Тел.: (050)-131-57-88 Михайло
Тел.: (066)-307-53-43 Христина
Iнші оголошення на сайті variant.in.ua ->>
Обери найкращий варіант – АН “Variant”








































































