
Продається торгово-офісне приміщення, вул. Андрія Палая
Продається торгово-офісне приміщення в м. Ужгород, вул. Андрія Палая (ринок нива).
Продаж від забудовника без комісії агентству.
Будівництво розпочато. Здача об’єкту в експлуатацію 4 квартал 2025 р.
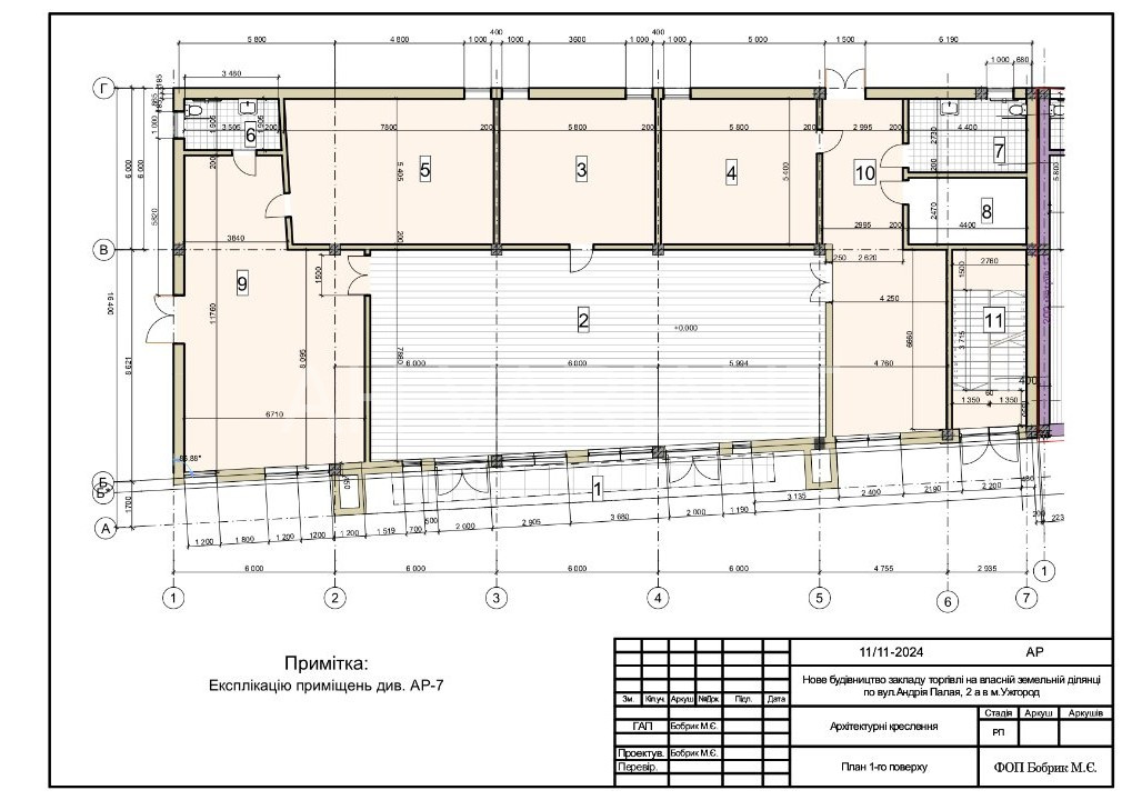
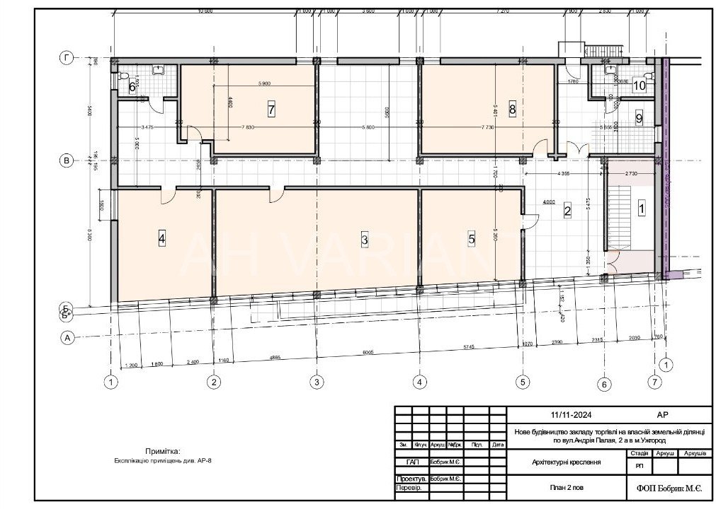
Загальна площа будівлі 790 м.кв. Розділена на перший та другий поверх.
Земельна ділянка 4.5 сот.
Характеристика будівництва:
– Зовні будується по монолітно каркасній технології, стіни заповнені цеглою та додатково утеплені 10 см пінопластом, вікна панорамні- алюмінієві, дах плоский, утеплений та покритий мембраною.
– Всередині буде вільне планування, підлога (промислова).
– Комунікації міські: світло три фази (55 кіловат), центральна вода та каналізація, газ знаходиться поряд.
Об’єкт знаходиться при центральній дорозі з ідеальним трафіком машин та людей.
Підходить під різний вид діяльності. Хороша інвестиція як для оренди так і для власного бізнесу.
Ціна 980 тис дол.
Оренда першого поверху 12 Дол м.кв.
Оренда другого поверху 8 Дол м.кв.
В даний момент, заключений договір оренди з експрес-епіцентром на перший поверх.
Код: 36076
Тел.: (068)-131-57-88 ОФІС
Тел.: (050)-131-57-88 Михайло
Тел.: (066)-307-53-43 Христина
Iнші оголошення на сайті variant.in.ua ->>
Обери найкращий варіант – АН “Variant”









