
Продається однокімнатна квартира, ЖК For Life
Продається однокімнатна квартира в м. Ужгород, вул. Баб’яка 60, ЖК For Life.
Секція-6 та об’єкт здається в експлуатацію – 4 квартал 2026 р.
Хороша інвестиція, це заощадження ваших коштів.
Будинок дев’ятиповерховий- будується по монолітно каркасній технології, заповнений цеглою та додатково утеплений 15 см мінватою, монтуються енергозберігаючі вікна. Територія буде озеленена, викладена бруківкою, облаштована дитячими майданчиками, парковою та підземним паркінгом, під відеонаглядом , закритого типу.
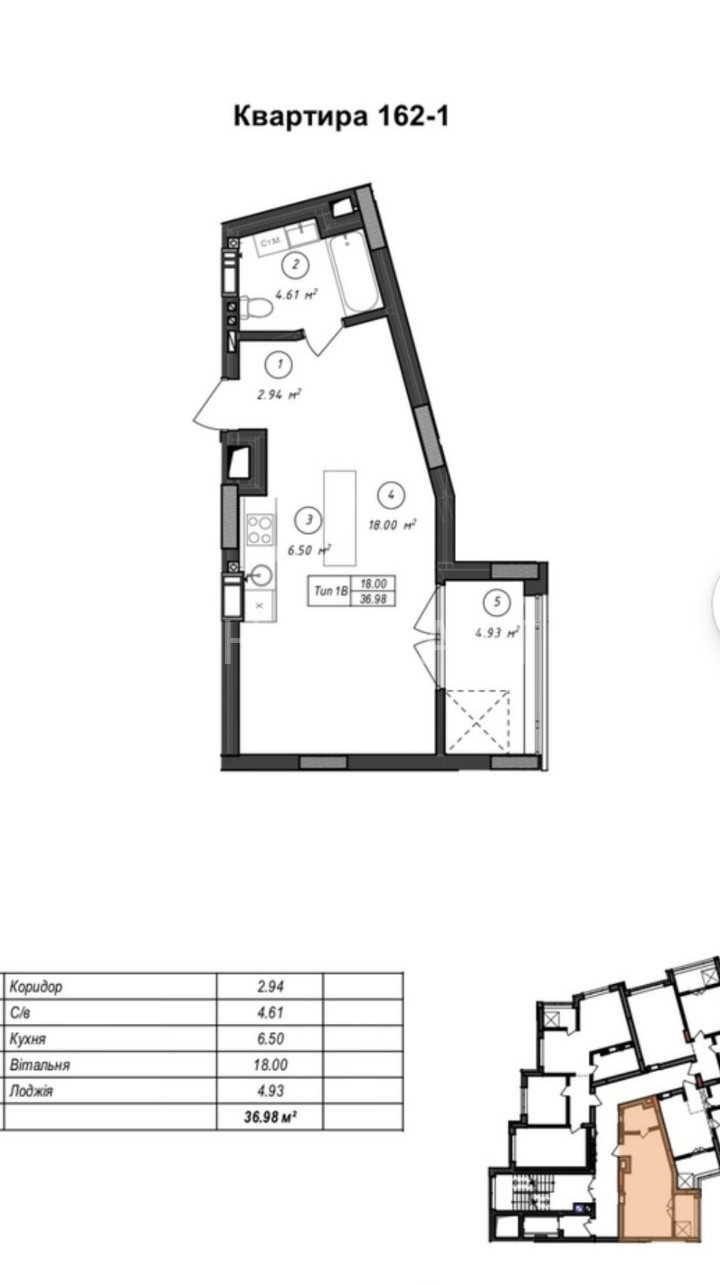
До вашої уваги пропонуємо квартиру на четвертому поверсі, площею 36.98 м.кв.
Забудовником надається таке наповнення: якісні вхідні двері, заведений силовий кабель без розводки, розведена сантехніка, міжкімнатні перестінки з цегли та поштукатурені, залита чистова стяжка, встановлений електрокотел та батареї, підключені лічильники на ( воду та світло).
Зручне планування : суміжний санвузол, кухня, вітальня, балкон.
Опалення автономне водяне електричне.
Хороша локація: поряд знаходиться парк, зупинка, 5 хв їзди до ТЦ Токіо, ТЦ Дастор, та багато іншого.
Переуступка.
Ціна 1050 Дол м.кв.
Код: 41956
Тел.: (068)-131-57-88 ОФІС
Тел.: (050)-131-57-88 Михайло
Тел.: (066)-307-53-43 Христина
Iнші оголошення на сайті variant.in.ua ->>
Обери найкращий варіант – АН “Variant”









