
Продається півторашка з євроремонтом, вул. Тихого 11
Продається півторашка 1.5 квартира з євроремонтом в м. Ужгород, вул. Тихого 11.
Здача будинку: жовтень- листопад 2025 р.
Будинок клубного типу – чотириповерховий, побудований з цегли, додатково утеплений 10 см пінопластом, вікна енергозберігаючі – шестикамерні. Територія оздоблена, озеленена та викладене бруківкою, по периметру зручна парковка.
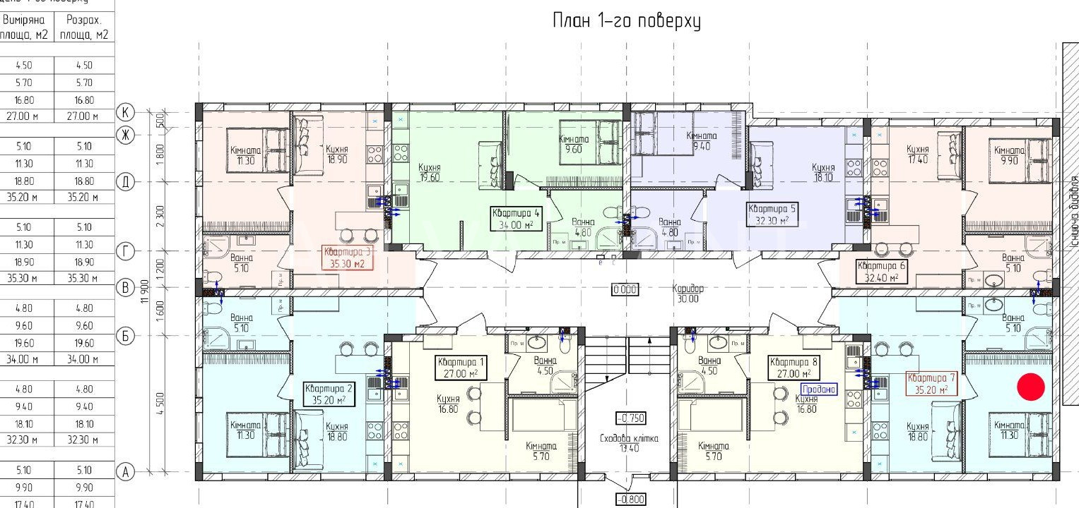
До вашої уваги пропонуємо квартиру на першому поверсі площею 35.2 м.кв.
Всередині квартири власниками зроблено під ключ стильний євроремонт, встановлені міжкімнатні двері, облаштований санвузол з душовою, інсталяцією, умивальником та змішувачами, вмикачі, світильники, встановлений електрокотел, електробойлер, інверторний кондиціонер.
Залишається новим власникам встановити кухню, м’яку частину, побутову техніку.
Опалення автономне водяне електричне, + тепла підлога по всій квартирі.
Хороша локація: поряд знаходиться школа, садочок, коледж, АТБ, вокзал, 10 хв пішої ходьби до площі Петефі, та багато іншого.
Дана пропозиція добре підходить як для проживання так і для оренди.
Ціна 56700 дол.
Є торг.
Код: 37062
Тел.: (068)-131-57-88 ОФІС
Тел.: (050)-131-57-88 Михайло
Тел.: (066)-307-53-43 Христина
Iнші оголошення на сайті variant.in.ua ->>
Обери найкращий варіант – АН “Variant”



















