
Продається комерційна нерухомість, вул. Льва Толстого 31
Продається комерційна нерухомість в м. Ужгород, вул. Льва Толстого 31.
До вашої уваги пропонуємо фасадне приміщення яке знаходиться на першій лінії від центральної дороги. Великий трафік людей та автомобілів.
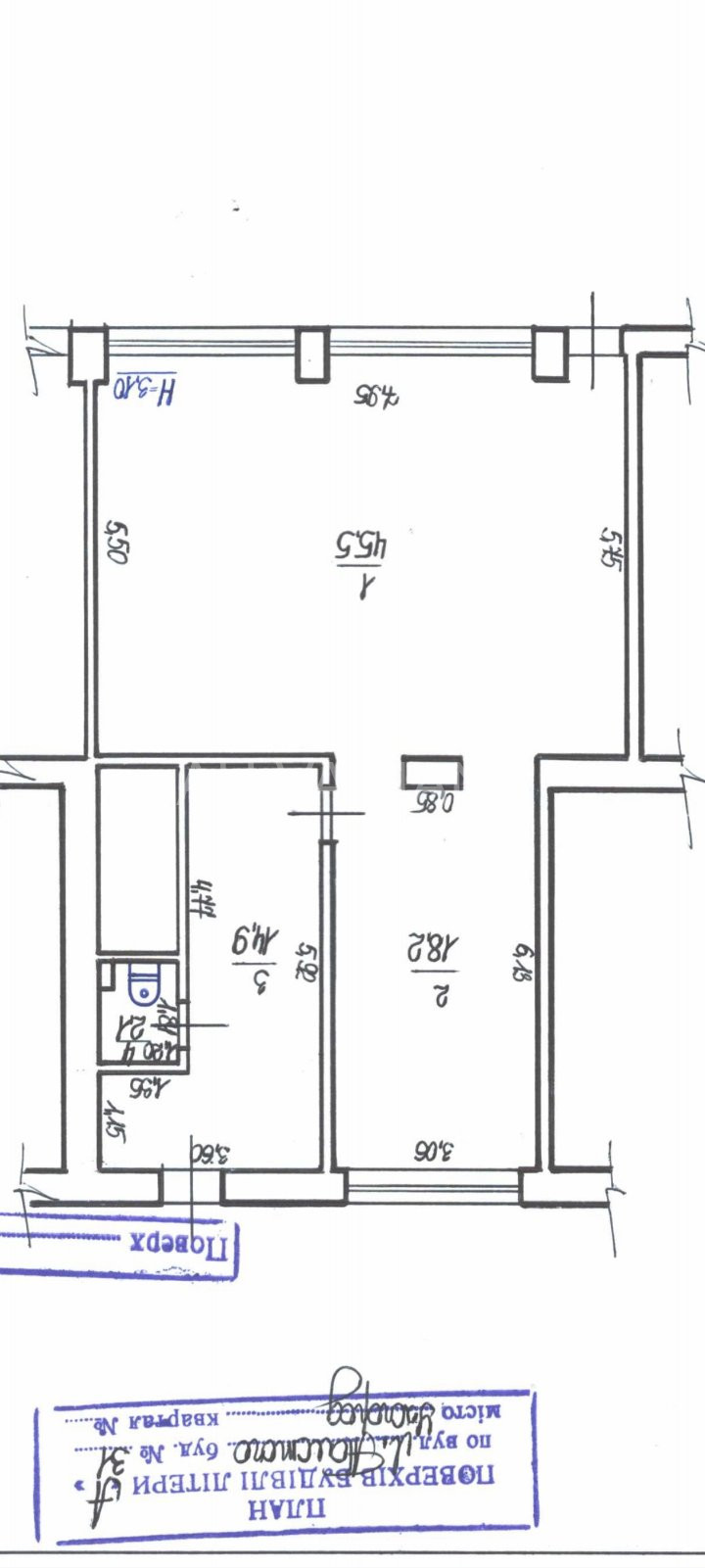
Площа 80.7 м.кв.
Зручне планування: два зали, кабінет для персоналу, суміжний санвузол, підвал.
Всередині зроблено євроремонт, два входи (центральний та грузовий), панорамні вітрини.
Опалення автономне електричне.
Будинок цегляний- п’ятиповерховий, перший поверх – комерція, другий – п’ятий житловий, є ОСББ та парковка.
Хороша локація, практично центральна частина міста, підходить під різний вид діяльності.
Вданий момент знаходиться в оренді.
Ціна 115 тис дол.
Код: 40877
Тел.: (068)-131-57-88 ОФІС
Тел.: (050)-131-57-88 Михайло
Тел.: (066)-307-53-43 Христина
Iнші оголошення на сайті variant.in.ua ->>
Обери найкращий варіант – АН “Variant”

















